Найти в Дзене
Филдс

Кровать-подиум и панорамные окна: как в студии 32 м² уместили функционал двушки для молодой пары

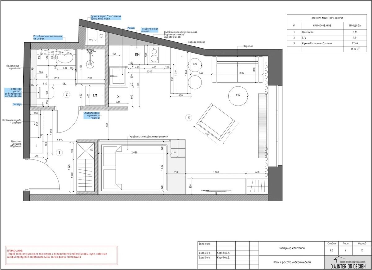
Дизайнеры Анна и Дмитрий Коробко оформили московскую студию площадью 32 м² для молодой пары. Хозяева постоянно живут в другом городе, но часто бывают в столице по работе. Они просили создать практичный и минималистичный интерьер с деревянными и другими натуральными фактурами, а также обилием света и воздуха. Планировка Перед дизайнерами стояла задача организовать небольшую кухню, гостиную зону и полноценное спальное место. Благодаря грамотному зонированию удалось обеспечить весь необходимый функционал. Мини-спальню обустроили на подиуме — приватное пространство отделили стеклянной перегородкой. Гостиная Панорамные окна пропускают много естественного освещения. Ощущение простора поддержали спокойной светлой отделкой. Пол во всей квартире, за исключением санузла, уложили инженерной доской. Стены выкрасили в нейтральный серый оттенок. Похожие товары: журнальный столик AIM Ковер собрал воедино мягкую группу, которую дополнили лаконичным журнальным столиком. Мебель подбирали простых форм.
Оглавление

Дизайнеры Анна и Дмитрий Коробко оформили московскую студию площадью 32 м² для молодой пары. Хозяева постоянно живут в другом городе, но часто бывают в столице по работе. Они просили создать практичный и минималистичный интерьер с деревянными и другими натуральными фактурами, а также обилием света и воздуха.

Планировка

Перед дизайнерами стояла задача организовать небольшую кухню, гостиную зону и полноценное спальное место. Благодаря грамотному зонированию удалось обеспечить весь необходимый функционал. Мини-спальню обустроили на подиуме — приватное пространство отделили стеклянной перегородкой.

Гостиная

Панорамные окна пропускают много естественного освещения. Ощущение простора поддержали спокойной светлой отделкой. Пол во всей квартире, за исключением санузла, уложили инженерной доской. Стены выкрасили в нейтральный серый оттенок.

-2

Похожие товары: журнальный столик AIM

Журнальный столик AIM Эко мини серый высотой 48,5 сантиметров — купить в интернет-магазине по низкой цене на Яндекс Маркете

Ковер собрал воедино мягкую группу, которую дополнили лаконичным журнальным столиком. Мебель подбирали простых форм. Диван в серо-голубой обивке создает умеренный акцент.

Кресло вносит в интерьер фактуру уютной ворсистой ткани. Также оформление разнообразили ротанговыми фасадами шкафа и тумбы, которые расположили напротив зоны отдыха. Спокойную основу оживили растением и броским декором — картинами и пятнистым абажуром лампы. Место телевизора заняло яркое полотно художницы Аси Новиковой.

-4

Похожие товары: Тумба под ТВ Gerald

Тумба под ТВ Gerald 120x50 манго, La Forma (ex Julia Grup) — купить

Кухня

Гарнитур спроектировали буквой П. Барная стойка является продолжением столешницы и зонирует кухню и гостиную. Фасады подобрали в привычном скандинавском сочетании белого цвета и дерева. Неглубокий верхний ярус предусмотрели только на одной стене, чтобы не перегружать компактное пространство. Холодильник встроили в шкаф-пенал. Фартук отделали белым кабанчиком.

Спальня

Прозрачная перегородка не загромождает пространство и не мешает распространяться свету. Черный профиль соотносится со светильниками, с опорами стульев и барной стойки, обеспечивая графичные штрихи в светлом интерьере.

-6

Решение организовать подиум обеспечило дополнительные секции для хранения внутри кровати, которая располагает подъемным механизмом. Участок за изголовьем покрыли той же инженерной доской, что и пол. В стену интегрировали бра и розетки для зарядки гаджетов.

Прихожая

Прихожую спроектировали так, что она является частью общей зоны. Это позволило впустить свет в удаленное от окон помещение. Дополнительно рассеять его помогло зеркало в конце прохода.

Санузел

В санузле обустроили просторную душевую зону. Чтобы оживить светлую базу, стену в зоне раковины выкрасили в серо-голубой, а пол уложили плиткой в стиле пэчворк. Контрастом служат графичные черные профили, розетки и сантехника.

Интересные мнения в комментариях приветствуются. Если материал понравился — ставь лайк!

Читать Филдс в телеграме ещё удобнее.