Добавить в корзинуПозвонить
Найти в Дзене

Дизайн двухкомнатной квартиры 110 кв.м. в ЖК City Park

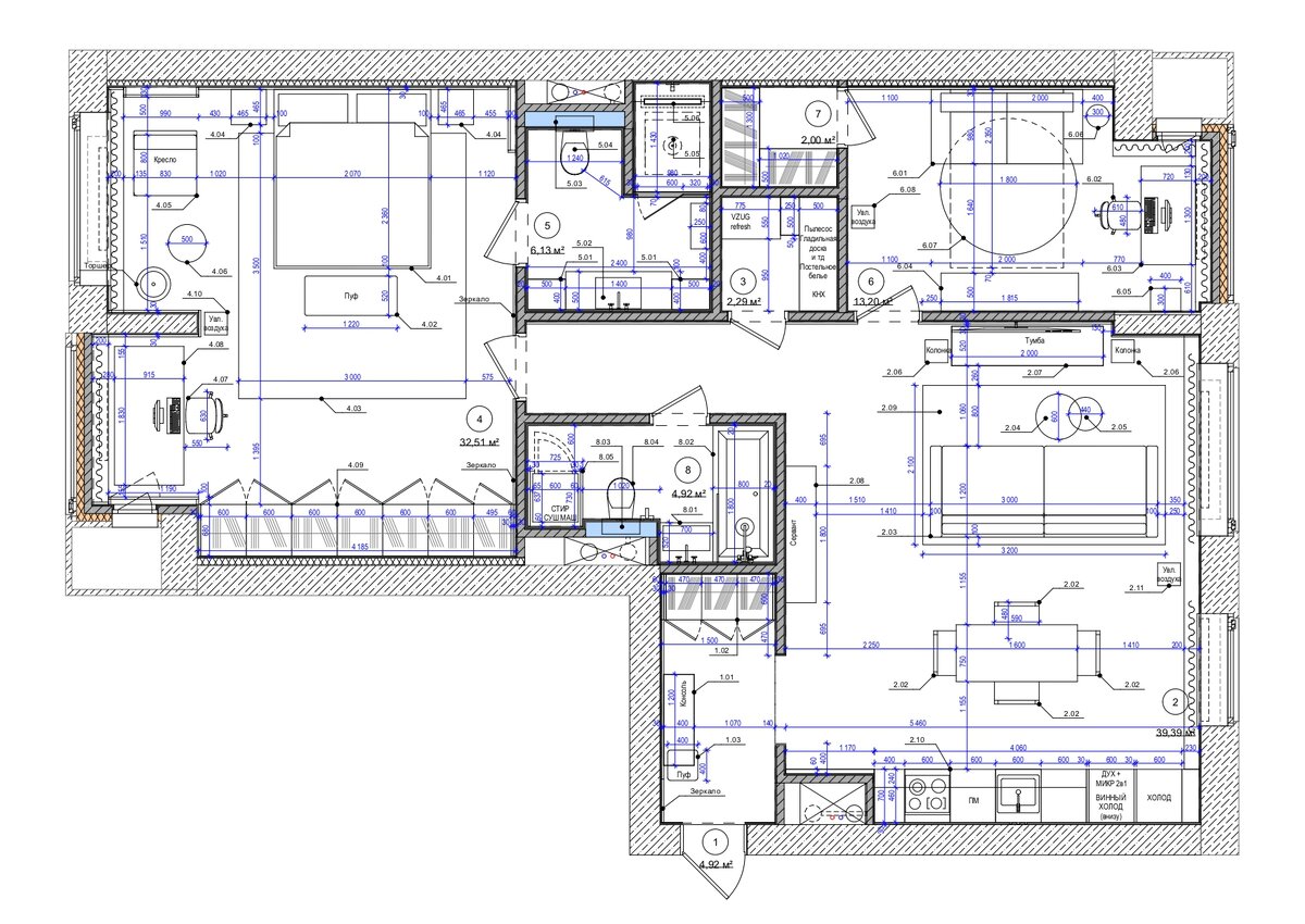
По техническому заданию заказчика необходимо было разместить большую спальню и просторную кухню-гостиную. заказчик сам не готовит и не часто бывает дома, но все же удивить гостей стейком под бутылочку белого вина было бы здорово. Поэтому мы остановились на такой планировке. Она оказалась самая удобная: при входе у нас есть есть обособленный коридор, с консолью и шкафом для верхней одежды. Просторная кухня-гостиная с большими окнами. Так же в квартире имеется кладовая-серверная, общий санузел с функцией постирочной, гостевая комната с раскладным диваном и гардеробной при ней. И большая мастер-спальня с рабочим столом, проектором для кино и с мастер-санузлом В коридоре мы использовали систему хранения Poliform. Модульная структура предназначена для создания индивидуальных решений, идеально подходящих для любой архитектуры. Отделку дверей выбрали в коридоре в коже, а так же кожей отделаны ящики и вешалки для одежды. В гостиной стена за телевизором выполнена из шпонированных фигурн

По техническому заданию заказчика необходимо было разместить большую спальню и просторную кухню-гостиную. заказчик сам не готовит и не часто бывает дома, но все же удивить гостей стейком под бутылочку белого вина было бы здорово. Поэтому мы остановились на такой планировке.

Планировка квартиры 110 кв. м.
Планировка квартиры 110 кв. м.

Она оказалась самая удобная: при входе у нас есть есть обособленный коридор, с консолью и шкафом для верхней одежды. Просторная кухня-гостиная с большими окнами.

Так же в квартире имеется кладовая-серверная, общий санузел с функцией постирочной, гостевая комната с раскладным диваном и гардеробной при ней. И большая мастер-спальня с рабочим столом, проектором для кино и с мастер-санузлом

-3

В коридоре мы использовали систему хранения Poliform. Модульная структура предназначена для создания индивидуальных решений, идеально подходящих для любой архитектуры. Отделку дверей выбрали в коридоре в коже, а так же кожей отделаны ящики и вешалки для одежды.

Система хранения в спальне.
Система хранения в спальне.

В гостиной стена за телевизором выполнена из шпонированных фигурных панелей, на полу паркет уложенный елочкой с латунной вставкой и мрамором по периметру.

-5

Диван премиальной марки Baxter (Италия) специализируется на мягкой мебели из кожи в основном, не случайно мы выбрали диван именно этой марки, так как они считаются одними из самых удобных. А мужчины любят их за столь брутальный вид и качество 😎

-6

Мы выбрали Кухню премиальной фабрики Dada cucine, которая входит в концерн мебельный Molteni.

Нижняя база под мойку и варочную поверхность увеличенная и выполнена из камня полностью вместе с ящиками верхние фасады стеклянные с рейками, чтобы облегчить всю композицию, но все же не показать содержимое шкафов.

кухня Finalista | 2021, NYCxDesign Awards, Kitchen Cabinetry Category
кухня Finalista | 2021, NYCxDesign Awards, Kitchen Cabinetry Category

Cтол и стулья марки Bontempi.

Столовая зона
Столовая зона

Как видите, жилье можно сделать не только красивым, но и функциональным. Больше фото данного проекта вы найдете на нашем сайте в разделе "Проекты".

Поделитесь впечатлениями в комментариях - понравился ли вам такой дизайн?

И не забывайте подписываться на наш канал и соцсети, чтобы всегда оставаться в курсе новых проектов:

Instagram: @august.buro
Pinterest: @august_buro

#augustburo #дизайнинтерьеров #дизайнквартиры #архитектура #ремонт #дизайнинтерьерамосква #дизайнпроект