Добавить в корзинуПозвонить
Найти в Дзене
Ландшафтный гуру

"Как живет семья в уютном доме в лесу?" — Внутри просто, но со вкусом

Наши герои построили этот дом в Ленинградской области. Здесь они планируют жить со своей семьей. Изначально, был построен лишь каркас дома, без планировки. Поэтому, чтобы создать грамотную планировку с функциональным интерьером, они на этапе проектирования обратились к дизайнеру. Проект Прихожая Стены в прихожей имеют светлый оттенок. Напольное покрытие выложено крупноформатным керамогранитом. Благодаря большому окну возле входной двери, здесь всегда много естественного света, что является редкостью для прихожей. Слева разместили обувницу с пуфом, а справа организовали просторную гардеробную за сдвижной дверью. Кухня-гостиная Основную площадь первого этажа отдали под кухню с гостиной. Напольное покрытие тоже из керамогранита. Стены обшиты деревом и имеют нейтральный цвет. Кухонный гарнитур напоминает букву П. Фасады серые. В функциональных колонах находится бытовая техника и дополнительные секции для хранения. Между кухней и гостиной расположилась обеденная группа. Обеденный стол допол
Оглавление

Наши герои построили этот дом в Ленинградской области. Здесь они планируют жить со своей семьей. Изначально, был построен лишь каркас дома, без планировки. Поэтому, чтобы создать грамотную планировку с функциональным интерьером, они на этапе проектирования обратились к дизайнеру.

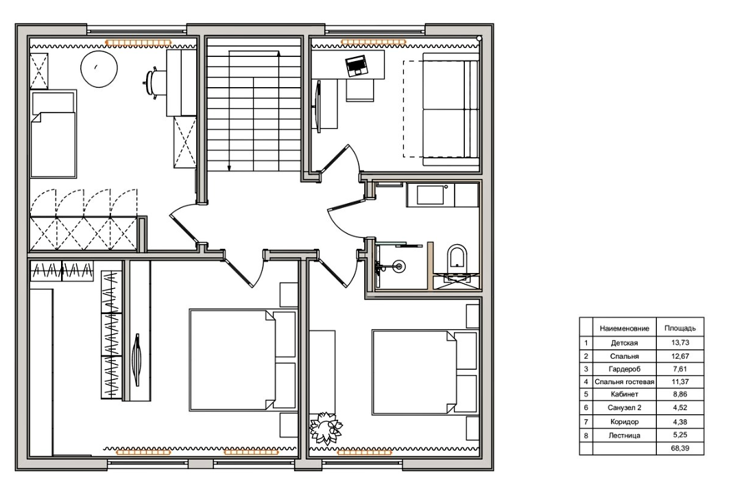
Проект

  • Местонахождение: Ленинградская область
  • Площадь дома: 136 кв. метров
  • Владельцы: семья

Прихожая

Стены в прихожей имеют светлый оттенок. Напольное покрытие выложено крупноформатным керамогранитом. Благодаря большому окну возле входной двери, здесь всегда много естественного света, что является редкостью для прихожей. Слева разместили обувницу с пуфом, а справа организовали просторную гардеробную за сдвижной дверью.

-2

Кухня-гостиная

Основную площадь первого этажа отдали под кухню с гостиной. Напольное покрытие тоже из керамогранита. Стены обшиты деревом и имеют нейтральный цвет. Кухонный гарнитур напоминает букву П. Фасады серые. В функциональных колонах находится бытовая техника и дополнительные секции для хранения.

Между кухней и гостиной расположилась обеденная группа. Обеденный стол дополнительно выделили светильниками.

В зоне гостиной поставили угловой диван с журнальными столиками, изготовленных из цельного дерева. Напротив установили ТВ-зону с креслом.

Ванная комната

В отделке ванной комнаты использовали плитку с узорами, классическую белую плитку "кабанчик" и плитку, которая имитирует дерево. Помимо стандартных атрибутов ванной комнаты, здесь еще имеется вход в постирочную зону. Помимо этого, здесь удалось организовать парную.

Спальня

На полу в спальне уложили ламинат. В центре появилась двуспальная кровать. Стену за кроватью и стену, которая находится напротив, покрасили в синий цвет. Напротив кровати имеются длинные секции для хранения и телевизор. Так же здесь организовали полноценную гардеробную, которая находится за телевизором.

Гостевая

Одна комната является гостевой. Стены и потолок выкрасили в нейтральный оттенок. Посередине установлена кровать.

Детская

Детская комната тоже находится на втором этаже. Цветовая палитра светлая с яркими желтыми акцентами. Слева от входа установили встроенные шкафы для вещей. Рядом у стены поставили кровать в виде домика. Напротив имеется рабочее место.

Кабинет

В доме имеется отдельный кабинет для хозяина, так как время от времени он работает на дому. Здесь нет ничего лишнего: у окна организовали рабочее место, на стене повесили телевизор, а напротив телевизора встал небольшой диван, который при необходимости можно разложить.

Санузел

Санузел на втором этаже было решено сделать в темной цветовой гамме. Пол и стены облицованы керамогранитом. Так как ванна в доме уже есть на первом этаже, здесь решили установить душевую кабину со стеклянными перегородками.

-11

Если вам понравилась статья, то не забудьте поставить лайк и подписаться, чтобы не пропустить новый материал!

Делитесь своим мнением в комментариях)