Найти в Дзене

Современный и удобный проект дома для базы отдыха

На моем канале уже много проектов для круглогодичного проживания. Сегодня решил показать другой вариант - проект дома для размещения на базе отдыха. Симпатичные, небольшие домики с простой планировкой и несложные в реализации. Каждый домик имеет: 1. СУ, площадью 4,25м2 - здесь удачно впишется все, что необходимо - ванная, унитаз, раковина, шкафчики для химии и полотенец. 2. Гостиная - кухня, площадью 11,22м2 - площадь небольшая, но и сюда входит все необходимое - спальное место - диван или кровать, пару шкафов, кухонный гарнитур, обеденный стол. Для отдыха - достаточно и удобно. Данные модули возможно доработать по ваши пожелания. Самое главное - панорамное окно должно иметь красивый вид - учтите это при расстановке домиков на территории. По нашему проекту вы сможете построить самостоятельно или отдать рабочие чертежи строителям- им они будут более, чем понятны. Состав проекта: 1. КР (конструктивный проект) + ЭП (эскизный проект) = рабочие чертежи - все конструктивы на отдельных листах

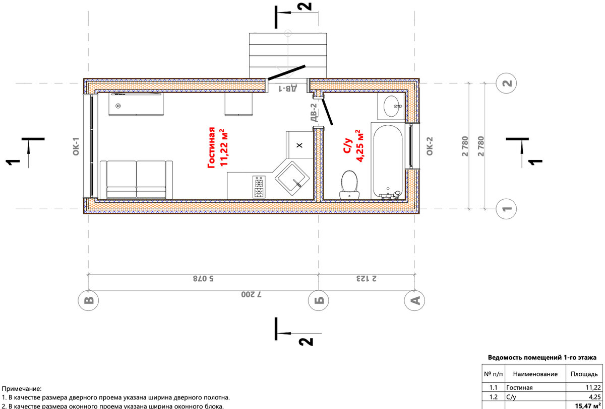
На моем канале уже много проектов для круглогодичного проживания. Сегодня решил показать другой вариант - проект дома для размещения на базе отдыха.

Симпатичные, небольшие домики с простой планировкой и несложные в реализации.

-2

Каждый домик имеет:

1. СУ, площадью 4,25м2 - здесь удачно впишется все, что необходимо - ванная, унитаз, раковина, шкафчики для химии и полотенец.

2. Гостиная - кухня, площадью 11,22м2 - площадь небольшая, но и сюда входит все необходимое - спальное место - диван или кровать, пару шкафов, кухонный гарнитур, обеденный стол.

Для отдыха - достаточно и удобно. Данные модули возможно доработать по ваши пожелания.

один из возможных вариантов- соединить два блока, сделать террасу перед панормаными окнами или балкончики на втором этаже
один из возможных вариантов- соединить два блока, сделать террасу перед панормаными окнами или балкончики на втором этаже
-4

Самое главное - панорамное окно должно иметь красивый вид - учтите это при расстановке домиков на территории.

По нашему проекту вы сможете построить самостоятельно или отдать рабочие чертежи строителям- им они будут более, чем понятны.

Состав проекта:

1. КР (конструктивный проект) + ЭП (эскизный проект) = рабочие чертежи - все конструктивы на отдельных листах и планировочные решения, все необходимые размеры

-5
-6

2. 3д модели в формате bimx. (Архикад) и skp. (Скетчап)

3. Файлы распиловки

-7

На мой взгляд достаточно))

Итак, самое интересное - стоимость реализации данного проекта:

1. фундамент - 8 свай х 4тр = 32тр

2. материалы отделки внутри и снаружи - 1млн.р

3. работа строителей - от 500тр

Итого начало отсчета стоимости реализации начинается от 1,6млн.р "под ключ" - и это примерная цифра, она может быть меньше, а может быть намного больше - все зависит от материалов отделки - это нужно понимать.

Подробнее о проекте можно прочитать на нашем сайте Domokea.ru вот здесь.

Как вам этот проект?) Все ли так?

А может быть его нужно доработать? Если да- то как?

Море вопросов к вам, мои дорогие читатели - буду ждать ответов))

Всем удачи!