Добавить в корзинуПозвонить
Найти в Дзене
СИПТЕХ.РФ

Мансардный дом по проекту «КАШТАН»

Шикарный СИП дом с мансардой получится по проекту «Каштан». И здесь даже речь не столько о внешнем виде. Хотя дизайн дома просто идеально впишется в любой уголок относительно дикой природы. Да и в коттеджных поселках этот дом оценят по достоинству.
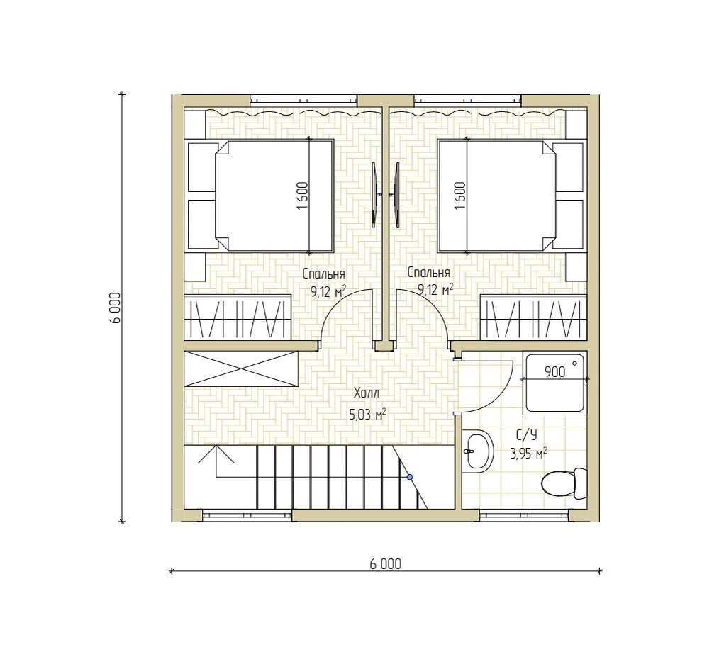
Площадь дома чуть больше 90 м2, в нем есть буквально всё что нужно для комфортной жизни. Проект «Каштан» - это дом мечты. В такой уютный, красивый, светлый дом хочется побыстрее вернуться. Мы строим энергоэффективные и теплые дома для круглогодичного проживания.

Шикарный СИП дом с мансардой получится по проекту «Каштан». И здесь даже речь не столько о внешнем виде. Хотя дизайн дома просто идеально впишется в любой уголок относительно дикой природы. Да и в коттеджных поселках этот дом оценят по достоинству.

Площадь дома чуть больше 90 м2, в нем есть буквально всё что нужно для комфортной жизни.

-2
-3

Проект «Каштан» - это дом мечты. В такой уютный, красивый, светлый дом хочется побыстрее вернуться.

-4

Мы строим энергоэффективные и теплые дома для круглогодичного проживания.

Проект Каштан – дом из СИП панелей с мансардой, две спальни, терраса, крыльцо, панорамные окна – компания СИПТЕХ