Добавить в корзинуПозвонить
Найти в Дзене
Внутри дома

Эффектная студия с необычной планировкой и ярким дизайном

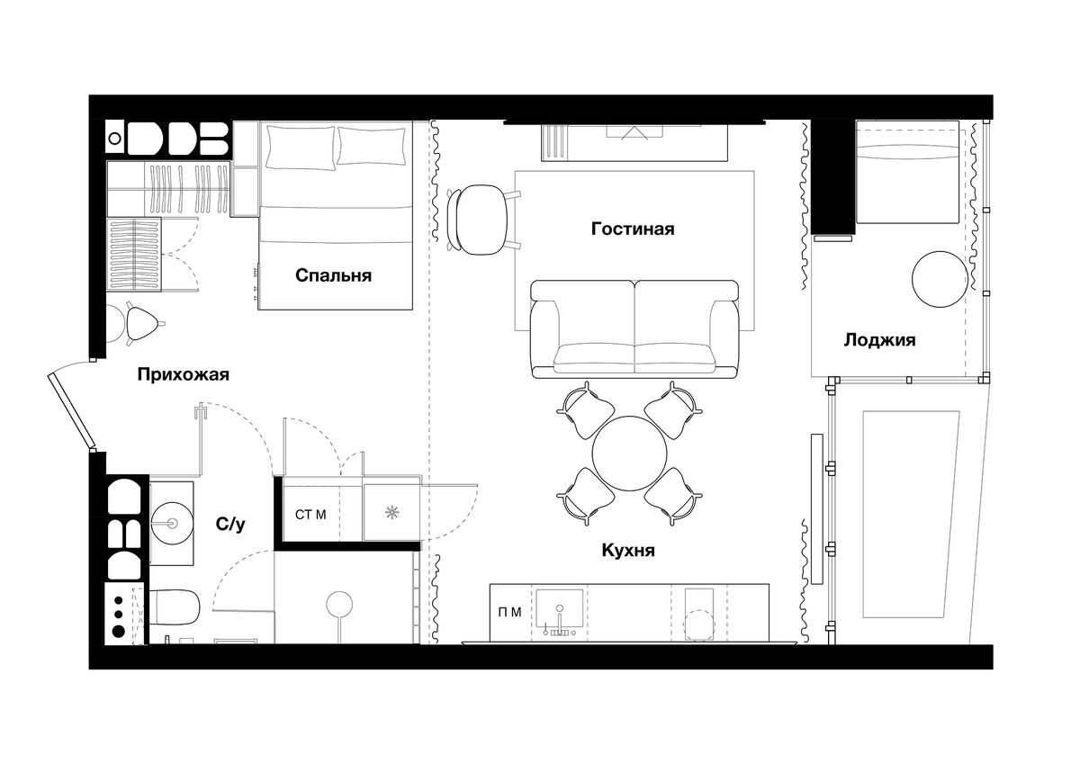
Такие проекты с первого взгляда вызывают недоумение. А не слишком ярко? А почему спальня возле прихожей? Где верхние шкафы на кухне? Как это просто бетонный потолок? Но стоит рассмотреть реализацию поближе и сомнения пропадут. Что я вижу: сочетание цветов как по учебнику, оригинальная мебель и лаконичность во всём. Характер квартиры дерзкий, молодой и модный. Такой же как и заказчики — молодая пара работающая в сфере IT и графического дизайна. Когда узнаёшь о профессии клиентов, то всё сразу встаёт на свои места. Мне кажется, идеальное жильё для таких ребят. Серый — универсальный цвет, который служит прекрасным холстом для белого, чёрного и красного. Такая классическая комбинация подойдёт для любой комнаты, поэтому союз цветов в одном большом пространстве студии 46 кв.м смотрится гармонично. Заметьте, в планировке есть лишь одна г-образная блочная стена. Остальное зонирование выполнено с помощью мебели, стекла и ткани. Спальня отделена зеркалом в прихожей, кухня и ванная — стеклом, а

Такие проекты с первого взгляда вызывают недоумение. А не слишком ярко? А почему спальня возле прихожей? Где верхние шкафы на кухне? Как это просто бетонный потолок? Но стоит рассмотреть реализацию поближе и сомнения пропадут.

План студии
План студии

Что я вижу: сочетание цветов как по учебнику, оригинальная мебель и лаконичность во всём. Характер квартиры дерзкий, молодой и модный. Такой же как и заказчики — молодая пара работающая в сфере IT и графического дизайна. Когда узнаёшь о профессии клиентов, то всё сразу встаёт на свои места. Мне кажется, идеальное жильё для таких ребят.

Серый — универсальный цвет, который служит прекрасным холстом для белого, чёрного и красного. Такая классическая комбинация подойдёт для любой комнаты, поэтому союз цветов в одном большом пространстве студии 46 кв.м смотрится гармонично.

Заметьте, в планировке есть лишь одна г-образная блочная стена. Остальное зонирование выполнено с помощью мебели, стекла и ткани. Спальня отделена зеркалом в прихожей, кухня и ванная — стеклом, а зона гостиной — драпировкой.

Динамичный и свободолюбивый темперамент пространства также подчёркивает бетонный потолок. Он не обременён ничем, кроме проводов, которые также проходят по кухонному фартуку для создания мягкой вечерней подсветки.

Интересно, что квартира располагается на 22-ом этаже и урбанистический пейзаж за окном находится в абсолютном согласии с интерьером.

Прихожая. Фото Сергей Пилипович
Прихожая. Фото Сергей Пилипович
Прихожая. Фото Сергей Пилипович
Прихожая. Фото Сергей Пилипович
Прихожая. Фото Сергей Пилипович
Прихожая. Фото Сергей Пилипович
Кухня. Фото Сергей Пилипович
Кухня. Фото Сергей Пилипович
Кухня. Фото Сергей Пилипович
Кухня. Фото Сергей Пилипович
Кухня. Фото Сергей Пилипович
Кухня. Фото Сергей Пилипович
Вид от балкона. Фото Сергей Пилипович
Вид от балкона. Фото Сергей Пилипович
Вид от балкона при закрытых шторах. Фото Сергей Пилипович
Вид от балкона при закрытых шторах. Фото Сергей Пилипович
Вид от прихожей. Фото Сергей Пилипович
Вид от прихожей. Фото Сергей Пилипович
Балкон. Фото Сергей Пилипович
Балкон. Фото Сергей Пилипович
Фото Сергей Пилипович
Фото Сергей Пилипович
Фото Сергей Пилипович
Фото Сергей Пилипович
Фото Сергей Пилипович
Фото Сергей Пилипович
Ванная комната. Фото Сергей Пилипович
Ванная комната. Фото Сергей Пилипович
Ванная комната. Фото Сергей Пилипович
Ванная комната. Фото Сергей Пилипович

Корпусная мебель выполнена на заказ по эскизам авторов проекта, Egger, Kronospan. Стулья, Calligaris. Ваза и настольная лампа, Qeeboo. Столик, кресло, ковер, табурет, все — ИКЕА. Сатиновое постельное белье, TAC. Покрывало, Maison D’or. Выключатели, Schneider Electric. Гипсовая розетка, DOF. Умывальник, Beton. Ваза, Seletti. Картины Сергея Савича. Плитка, Idalgo. Ламинат, Kaindl.

Авторы проекта Екатерина и Алексей Савицкие.

Все фото Сергей Пилипович.

__________________________________________

Спасибо, что досмотрели! 💖

Если вам понравилась статья, лучший способ отблагодарить — поставить лайк и подписаться на мой канал «Внутри», чтобы не пропустить следующие находки. До встречи!

Здесь больше реальных интерьеров, например:

  • 40 квадратов белого: однушка со спальней, кабинетом и гостиной для семейной пары
  • Интерьер "деревня в городе" или как сочетать историю и современность
  • Нескучная английская классика, в которую невозможно не влюбиться