Найти в Дзене
Ландшафтный гуру

"Зато уютно" — Приятный интерьер дачного дома, который выполнен без помпезности и шика

Этот дом в пригороде Стокгольма выполняет роль дачи. Хозяева давно хотели его переделать на новый лад, но в связи с финансовыми трудностями, откладывали эту затею. И вот настал момент, когда руки наконец-то дошли до преображения дачного домика. Получилось в меру современно и уютно, но без какой-либо помпезности. Проект Кухня-гостиная На первом этаже расположились общие зоны: кухня, гостиная, прихожая, гостевая комната и санузел. Весь интерьер выполнен в светлых тонах. Пол в кухонной зоне выложен плиткой. Благодаря большим окнам, в помещении всегда светло, из-за этого хозяева решили сделать черный гарнитур, чтобы он играл на контрасте со всем остальным помещением. От верхнего яруса отказались из-за ненадобности. Ближе к гостиной расположилась столовая зона с большим деревянным столом. Некоторые стены хозяева оставили в родном кирпиче, чтобы добавить нотку брутальности и лофта. В гостиной появился большой светлый диван и ТВ-зона. Гостевая комната Распашные двери ведут в гостевую комнат
Оглавление

Этот дом в пригороде Стокгольма выполняет роль дачи. Хозяева давно хотели его переделать на новый лад, но в связи с финансовыми трудностями, откладывали эту затею. И вот настал момент, когда руки наконец-то дошли до преображения дачного домика. Получилось в меру современно и уютно, но без какой-либо помпезности.

Проект

  • Местонахождение: пригород Стокгольма
  • Площадь дома: 98 кв. м
  • Владельцы: семья

Кухня-гостиная

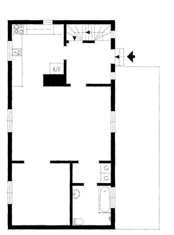
На первом этаже расположились общие зоны: кухня, гостиная, прихожая, гостевая комната и санузел. Весь интерьер выполнен в светлых тонах. Пол в кухонной зоне выложен плиткой. Благодаря большим окнам, в помещении всегда светло, из-за этого хозяева решили сделать черный гарнитур, чтобы он играл на контрасте со всем остальным помещением. От верхнего яруса отказались из-за ненадобности.

Ближе к гостиной расположилась столовая зона с большим деревянным столом. Некоторые стены хозяева оставили в родном кирпиче, чтобы добавить нотку брутальности и лофта. В гостиной появился большой светлый диван и ТВ-зона.

Гостевая комната

Распашные двери ведут в гостевую комнату. Здесь всё оформлено в спокойных и нейтральных тонах. В углу разместилось спальное место, а напротив повесили небольшой телевизор.

-4

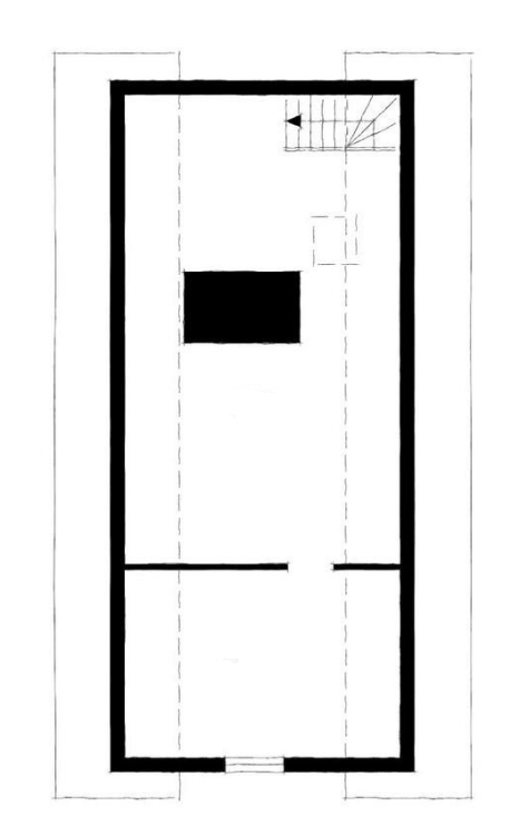
Спальня

Спальня расположилась на втором этаже. Здесь так же основной цвет является белый, чтобы сделать пространство более светлым и воздушным. В спальне разместили: двуспальную кровать, места для хранения и рабочее место.

Детская

Соседнюю комнату от спальни отдали под детскую. Весь интерьер так же белоснежный с добавлением ярких акцентов в декоре и мебели.

Санузел

Ванная комната совмещенная. Отделка выполнена белой плиткой. Благодаря приличной площади санузла, здесь удалось расположить полноценную ванну возле окна и полноценный душ.

Подвал

Подвал теперь является столярной мастерской для хозяина дома. И так же его используют, как просторный склад для стройматериалов, одежды, картошки, старой мебели и тд.

-8

Придомовая территория

К дому пристроили небольшое патио. Здесь организовали полноценное место для отдыха всей семьей.

Если вам понравилась статья, то не забудьте поставить лайк и подписаться, чтобы не пропустить новый материал!

Делитесь своим мнением в комментариях)