Найти в Дзене

Как изменить проект дома для увеличения площади - пять примеров.

Наступила весна, и всё пустилось в рост. 🌱🌱🌱 В том числе и проекты домов ИНВАПОЛИС :) Приглашаем вас заглянуть на нашу проектную "кухню" Сегодня предлагаем рассмотреть 5 проектов домов, которые сейчас присматривают для себя наши потенциальные заказчики. Но не в типовом виде присматривают, а творчески, с намерением несколько увеличить. Изменить проект, увеличив площадь помещений - один из самых частых запросов на корректировку проекта. Чаще встречается только замена материала стен... В некоторых случаях дом легко поддаётся увеличению, в некоторых - совсем никак не может трансформироваться. Иногда конструктив мешает увеличить размер, меняясь настолько сильно, что изменения уже невозможно выполнить в режиме корректировки, и нужно проектировать дом заново, в индивидуальном порядке. Но в большинстве случаев в некоторой мере увеличить дом можно. Самый простой способ - растянуть план вдоль конька кровли в тех местах, где это наименее травматично для фасадов и конструктива. А вообще, реко
Оглавление

Наступила весна, и всё пустилось в рост. 🌱🌱🌱

В том числе и проекты домов ИНВАПОЛИС :)
Приглашаем вас заглянуть на нашу проектную "кухню"

Сегодня предлагаем рассмотреть 5 проектов домов, которые сейчас присматривают для себя наши потенциальные заказчики. Но не в типовом виде присматривают, а творчески, с намерением несколько увеличить.

Изменить проект, увеличив площадь помещений - один из самых частых запросов на корректировку проекта. Чаще встречается только замена материала стен...

В некоторых случаях дом легко поддаётся увеличению, в некоторых - совсем никак не может трансформироваться. Иногда конструктив мешает увеличить размер, меняясь настолько сильно, что изменения уже невозможно выполнить в режиме корректировки, и нужно проектировать дом заново, в индивидуальном порядке.
Но в большинстве случаев в некоторой мере увеличить дом можно. Самый простой способ - растянуть план вдоль конька кровли в тех местах, где это наименее травматично для фасадов и конструктива.
А вообще, реконструктивные возможности проектов различны, и оптимальный способ трансформации дома подскажет автор.

Представленные сегодня проекты планируем менять именно так - увеличивая размер вдоль конька кровли.

Все 5 проектов пока в стадии переговоров, поэтому помещаем только планировки пар домов было/станет, больше подробностей будет только если идеи окончательно оформятся в заказы.

А вообще, последние год-два мы заметили тенденцию к небольшому увеличению площади домов. Наш фирменный и сверх-рациональный эконом-класс, конечно, остается популярен, но чуть более просторные дома сейчас лидируют.

👇 Статья об оптимальной площади дома. Сведения 2020 :)

1. Армавир ➡ Волгоград

👇 Исходный дом АРМАВИР - компактный одноэтажник площадью примерно 100 м2 с экономичным строительством.

АРМАВИР 97 м2 - проект одноэтажного дома 10х12 с 3 спальнями
Инваполис - проекты рациональных домов 2 января 2022

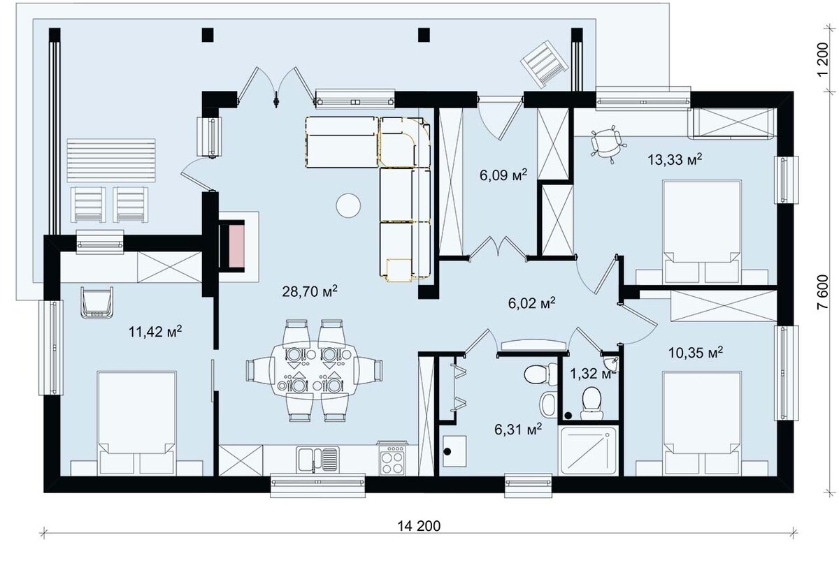
Запрос: увеличить примерно на 10-15% все помещения. Просто чтобы было попросторнее. Пойдя по пути наименьшего сопротивления, увеличили ширину дома. Армавир превратился в Волгоград :)

Стало просторнее, появились встроенные шкафы в спальнях и прихожей. Растянули план в стороны. Пришлось добавить пару несущих столбов, чтобы не увеличивать сечение потолочных балок.

2. Хуторок Губерния

👇 Исходный дом ХУТОРОК - компактный одноэтажник площадью примерно 100 м2 с экономичным строительством.

ХУТОРОК 77 м2 - проект одноэтажного дома 9х14 с 3 спальнями, террасой-гульбищем, из газобетона с двухскатной крышей.
Инваполис - проекты рациональных домов 10 сентября 2022

Запрос: увеличить метраж, добавить комфорта и простора, сделать котельную под газ, убрать боковые окна в сторону соседей. И увеличить ширину дома. Его планируют использовать, поставив в начале участка длинной стороной к дороге, а террасой - назад на участок. Таким образом можно полностью отгородиться от взглядов и шумов извне.

Сделали: Вот всё это и сделали. Даже мастер-спальню организовали с собственным санузлом и выходом на террасу, и кладовки в прихожей. Конструктивно - добавим два деревянных столбика для поддержки чердачного перекрытия и кровли. Площадь стала 99 метров вместо 77. магия симметричных чисел 🧙‍♂️

3. Мезонин Зарайск

👇 Исходный дом МЕЗОНИН - романтичный и уютный

Запрос: увеличить метраж личных комнат первого этажа и устроить много мест для хранения обширной научной библиотеки.

Сделали: не нарушая габаритов и внешнего вида средней части с колоннами, удлинили крылья дома по метру влево и вправо, и увеличили ширину постройки на метр. Тот случай, когда дом можно раздвинуть в обе стороны. Увеличили комнаты, добавили шкафных мест.

4. Цимлянск Лиман

👇 Исходный дом ЦИМЛЯНСК - большой одноэтажник с хозблоком

ЦИМЛЯНСК 148 м2- проект одноэтажного дома с 4 спальнями и хозблоком
Инваполис - проекты рациональных домов 20 июля 2022

Запрос: ещё больше увеличить и так большой дом. Нужно добавить постирочную и общую зону попросторнее.

Сделано: дом вытянули вперёд на полтора метра. Всё стало как надо. Даже мастер-спальня появилась.

5. Плёс Городец

👇 Исходный дом Плёс - маленький классический особняк

ПЛЁС 110 м2 - проект классического особнячка на 3 спальни
Инваполис - проекты рациональных домов 13 марта 2022

Запрос: что-то сделать, чтобы увеличить зону кухни и прикрыть немного кухонную мебель (но не совсем). Заказчица думала расширить среднюю часть дома. Но это проблематично, - в середине красивый классический портик, пропорции которого не хочется нарушать. Мы нашли другое решение...

Стало: как и в доме Мезонин, удлинили левую и правую части, не трогая серединку. Поскольку в доме, как всегда у нас, нет несущих стен, вопрос увеличения центрального пространства рашили переносом перегородок. В результате кухня и камин оказались в красивых нишах, а средняя часть общей комнаты с парными колоннами ещё больше выделилась. Пространство тало просто необыкновенно эффектным. Вот проект доделаем - увидите :)

Бонусом увеличилась спальня, прихожая и кабинет.

Но мы не только увеличиваем малое. Мы ещё иногда умаляем большое. Но это - в след раз...

► Чтобы не пропускать наши публикации, реагируйте лайком 👍, подписывайтесь на канал, пишите комментарии, тогда нейросети будут показывать нас вам чаще :)

► Получать обзоры наших проектов и следить за новостями ИНВАПОЛИС и можно также в ТЕЛЕГРАММ или в группе ВКонтакте – подписывайтесь, содержание немного отличается 😊

👀 полный каталог готовых проектов домов и коттеджей ИНВАПОЛИС