Найти в Дзене
Истории

Еще раз про электрику дома

Знаете кто самый счастливый человек? Тот, у кого есть розетка рядом с кроватью. И, в общем, по секрету, разработка электрики — это почти половина моей работы, как дизайнера интерьера. Потому что главное — это эргономика (удобство пользования) и эстетика помещения (рулит которой, в основном, как ни странно, именно освещение). Так что платите вы большей частью за розетки и выключатели )) И электровыводы. И слаботочные сети. И потолочные-настенные-настольные-напольные светильники. Смотрите, что нужно сделать, чтобы не было нужды заказывать дизайн-проект. 1. Выкиньте на время мысли о том, какого цвета кафель или паркет вы хотите. 2. Определитесь с расстановкой мебели. Где стоит диван, стол, кухня, кухонная техника, шкафы, телек, рабочее место, кровать, унитаз, ванна. Кухню и санузлы продумайте особенно тщательно. 3. И подсветите каждую зону. Можно вообще обойтись без верхних общих люстр (ну типа, когда в каждой комнате по люстре). Например, по бокам от кровати можно поставить прикроватны

Знаете кто самый счастливый человек? Тот, у кого есть розетка рядом с кроватью.

И, в общем, по секрету, разработка электрики — это почти половина моей работы, как дизайнера интерьера. Потому что главное — это эргономика (удобство пользования) и эстетика помещения (рулит которой, в основном, как ни странно, именно освещение).

Так что платите вы большей частью за розетки и выключатели )) И электровыводы. И слаботочные сети. И потолочные-настенные-настольные-напольные светильники.

Смотрите, что нужно сделать, чтобы не было нужды заказывать дизайн-проект.

1. Выкиньте на время мысли о том, какого цвета кафель или паркет вы хотите.

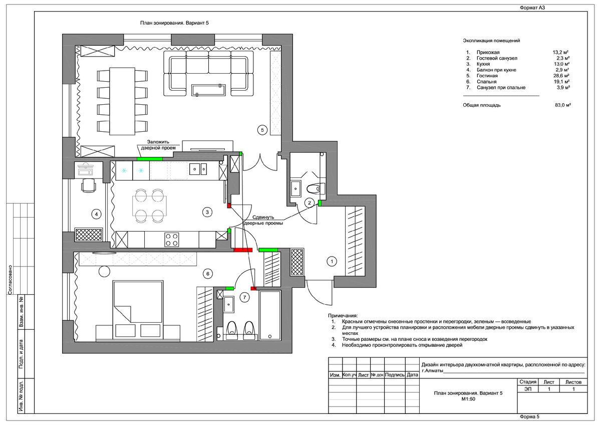
2. Определитесь с расстановкой мебели. Где стоит диван, стол, кухня, кухонная техника, шкафы, телек, рабочее место, кровать, унитаз, ванна. Кухню и санузлы продумайте особенно тщательно.

План зонирования с расстановкой мебели
План зонирования с расстановкой мебели

3. И подсветите каждую зону. Можно вообще обойтись без верхних общих люстр (ну типа, когда в каждой комнате по люстре). Например, по бокам от кровати можно поставить прикроватные лампы или повесить бра. Рядом с диваном поставить торшер. Над шкафом расположить ряд спотов. Зеркало умывальника купить с подстветкой. Над обеденным столом повесить парадную люстру. Под навесными шкафчиками кухни сделать освещение светодиодной лентой - так, чтобы освещалась столешница.

4. После того как определились со светильниками, пройдитесь по квартире и подумайте, где сделать выключатели от этих светильников так, чтобы это было удобно. Например, выключатель парадной люстры - при входе в комнату, а выключатели прикроватных брашек - по бокам от кровати, причем у каждого прикроватного светильника свой выключатель. И тоже не экономьте. Пусть у каждой функциональной группы светильников будет свой выключатель. И да. Не забудьте про выключатели вентиляторов в санузлах.

5. Обязательно продумайте цвет освещения. Лучше всего сочетать холодные и теплые цвета ламп, чем брать всюду просто белые. Оттенок лампы пишется на коробочке. 2800-4200 - это теплый оранжевый спектр. 6000-7500 - это голубой холодный спектр. Между ними (от 4200 до 6000) - лампы от нейтрального светло-желтого до почти белого цвета.

6. Не экономьте на количестве лампочек. Сейчас лампочки энергосберегающие, не жрут электричества так уж много, а вот жить в полутемном пространстве - верный путь к депрессии.

7. Когда разобрались со светильниками и выключателями, обязательно продумайте розетки. Во-первых, сосчитайте всю электробытовую технику (это особенно актуально на кухне, причем не только стационарная техника, а и мелкая тоже - хлебопечки, миксеры, мультиварки, электрочайники и тд), рядом с телевизором (не забудьте про игровую приставку), рядом с письменным столом и по бокам от кровати, рядом с выключателями брашек, ну и не забудьте про кондиционеры - их лучше подключать напрямую без розеток). Во-вторых, не забудьте розетки для торшеров и настольных ламп. В-третьих, обязательно сделайте так называемые пылесосные розетки - при входе в каждую комнату под основным выключателем. В-четвертых, обязательно сделайте розетки для бытовых нужд, проще говоря, розетки для зарядки телефона или лаптя.

8. После электророзеток — последний этап. Разберитесь со слаботочными розетками. Это розетки телеантенны (за телеком), сетевая розетка (за телеком и рядом с домашним кабинетом или письменным столом — потому что, по опыту, стационарные компы подключать лучше через шнур к интернету, чем через вайфай), телефонная розетка, при условии что у вас есть городской телефон (кстати, не забудьте про элетророзетку для телефонной базы)

9. Определитесь, где будет стоять всякая техническая шелуха типа роутера, телеоборудования, электрощитка. Это все либо в центре квартиры, либо в шкафу прихожей на верхней полке.

10. Когда продумаете всю расстановку мебели и всю электрику, вот тогда можете приступать к выбору кафеля и цвета кухни. Но при хорошо продуманном освещении даже простой белый интерьер (белые стены и фасады мебели, белый кафель и светлый паркет) будет выглядеть очень хорошо и нескучно.

Ну и картиночек с разными сценариями освещения вам

Потом еще чего-нибудь напишу из увлекательной жизни чертежей, схем и спецификаций.

Еще почитать:
Сколько розеток надо в хрущевку
Дизайн интерьера хрущевки
Почему замужней женщине лучше работать, чем не работать

Если вам понравилась статья, не забудьте про лайк