Добавить в корзинуПозвонить
Найти в Дзене
Ар-Деко́

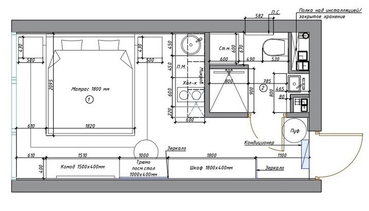
Может ли квартира быть еще меньше и очаровательней? Гостевая студия на 18м² с продуманным функционалом.

Добро пожаловать на канал Ар-Деко́ здесь вы можете вдохновляться идеями для вашего ремонта, дизайнерскими лайфхаками, а также простыми решениями бытовых неурядиц. Как вы себе представляете гостевой номер? Скромный и неуютный с минимумом вещей, мебели и техники. В принципе, так оно в большей степени и есть. Но не обязательно каждой квартире быть таковой. Сегодня мы рассмотрим интерьер небольшой гостевой студии на 18м² со всеми удобствами и приятным интерьером. Конечно, назвать эту квартиру полноценным жилищем на долгий срок очень сложно, тем не менее дизайнер постарался обустроить её максимально комфортно и уютно. Итак, начнём с визуального оформления, а дальше рассмотрим функционал каждой зоны по отдельности. Стены, начиная с прихожей и заканчивая жилой комнатой оформлены в белый цвет в сочетании с тёмным деревом. Из дерева также выполнена большая часть мебели. В качестве напольного покрытия выступает кафельная плитка в светло-коричневом оттенке. Далее предлагаю рассмотреть прихожую. Н
Оглавление

Добро пожаловать на канал Ар-Деко́ здесь вы можете вдохновляться идеями для вашего ремонта, дизайнерскими лайфхаками, а также простыми решениями бытовых неурядиц.

Как вы себе представляете гостевой номер? Скромный и неуютный с минимумом вещей, мебели и техники. В принципе, так оно в большей степени и есть. Но не обязательно каждой квартире быть таковой.

Сегодня мы рассмотрим интерьер небольшой гостевой студии на 18м² со всеми удобствами и приятным интерьером. Конечно, назвать эту квартиру полноценным жилищем на долгий срок очень сложно, тем не менее дизайнер постарался обустроить её максимально комфортно и уютно.

Источник: https://vk.com/kvartirastudio
Источник: https://vk.com/kvartirastudio

Итак, начнём с визуального оформления, а дальше рассмотрим функционал каждой зоны по отдельности. Стены, начиная с прихожей и заканчивая жилой комнатой оформлены в белый цвет в сочетании с тёмным деревом. Из дерева также выполнена большая часть мебели.

В качестве напольного покрытия выступает кафельная плитка в светло-коричневом оттенке.

Далее предлагаю рассмотреть прихожую. Несмотря на скромные размеры квартиры, даже в прихожей получилось кое-что уместить для комфортного проживания. Напротив входа установлена подвесная консоль и зеркало, а также ряд крючков для верхней одежды. Справа от входа поставили коричневый пуф, чтобы было удобно надевать обувь.

Источник: https://vk.com/kvartirastudio
Источник: https://vk.com/kvartirastudio

Чуть далее, при переходе в жилую зону, установлен большой шкаф, который является основной системой хранения квартиры.

Рядом с ним установлен косметический столик с зеркалом и бежевый пуф.

Источник: https://vk.com/kvartirastudio
Источник: https://vk.com/kvartirastudio

Далее располагается ТВ-зона, состоящая из подвесной тумбы из тёмного дерева и самого телевизора.

Источник: https://vk.com/kvartirastudio
Источник: https://vk.com/kvartirastudio

С обратной стороны установлена большая двуспальная кровать в бежевом цвете.

Источник: https://vk.com/kvartirastudio
Источник: https://vk.com/kvartirastudio

Отдельно хочется выделить большое окно, которое привносит в интерьер особую атмосферу. Также стоит отметить элементы декора, такие как текстиль, картина и прочее.

Источник: https://vk.com/kvartirastudio
Источник: https://vk.com/kvartirastudio

Квартира также оснащена кухней. Конечно, назвать данную кухню полноценной было бы ошибочно. Тем не менее в ней есть практически всё для элементарной готовки. Также стоит отметить небольшую систему хранения и место для приготовления.

Источник: https://vk.com/kvartirastudio
Источник: https://vk.com/kvartirastudio
Источник: https://vk.com/kvartirastudio
Источник: https://vk.com/kvartirastudio

Ванная комната опять же повторяет ранее описанный интерьер.

Источник: https://vk.com/kvartirastudio
Источник: https://vk.com/kvartirastudio

Внутри мы видим все самые важные системы: душевая зона, унитаз с гигиеническим душем, небольшая раковина и даже стиральная машинка.

Источник: https://vk.com/kvartirastudio
Источник: https://vk.com/kvartirastudio
Подведём итоги. Если уесть, что это гостевая квартира для временного проживания, то лучше и представить сложно. Есть все нужные зоны, мебель техника и прочие радости.

На этом у меня все, ставьте лайки и подписывайтесь на канал.