Добавить в корзинуПозвонить
Найти в Дзене
INMYROOM

Семейная квартира со светлой отделкой и деревянными акцентами

Дизайнер Юлия Люблянова оформила четырехкомнатную квартиру площадью 107 кв. м в Долгопрудном для семьи с двумя сыновьями. Основной задачей было сделать стильный, современный и качественный интерьер в рамках согласованного бюджета. Заказчица доверилась вкусу дизайнера и предоставила ей полную свободу творчества. Планировка Планировка в квартире особо не менялась, немного передвинули стену в прихожей на 20 см, чтобы увеличить игровую комнату. Из функциональных зон есть все необходимое для комфортной жизни: кухня-гостиная, спальня, детская комната, два санузла. Также нашлось место для кладовой и игровой комнаты. Кухня-гостиная Кухня сочетает в себе функцию кухни и гостиной. В ней много места, используется каждый сантиметр. Здесь можно готовить, есть, принимать гостей, отдыхать. Кухня изготавливалась на заказ в столярной мастерской. Столешница выполнена из акрилового камня. Стол и стулья заказчица нашла сама: они отлично вписались в интерьер. Стол раскладывается на случай, если придут
Оглавление

Дизайнер Юлия Люблянова оформила четырехкомнатную квартиру площадью 107 кв. м в Долгопрудном для семьи с двумя сыновьями. Основной задачей было сделать стильный, современный и качественный интерьер в рамках согласованного бюджета. Заказчица доверилась вкусу дизайнера и предоставила ей полную свободу творчества.

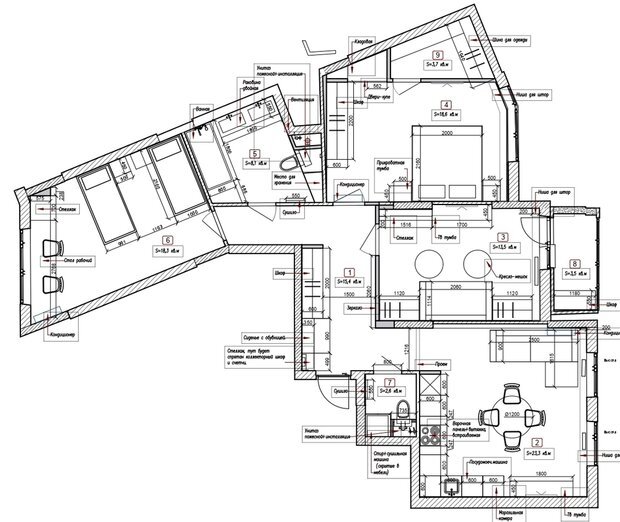
Планировка

Планировка в квартире особо не менялась, немного передвинули стену в прихожей на 20 см, чтобы увеличить игровую комнату. Из функциональных зон есть все необходимое для комфортной жизни: кухня-гостиная, спальня, детская комната, два санузла. Также нашлось место для кладовой и игровой комнаты.

 📷
📷

Кухня-гостиная

Кухня сочетает в себе функцию кухни и гостиной. В ней много места, используется каждый сантиметр. Здесь можно готовить, есть, принимать гостей, отдыхать.

 📷
📷

Кухня изготавливалась на заказ в столярной мастерской. Столешница выполнена из акрилового камня.

Стол и стулья заказчица нашла сама: они отлично вписались в интерьер. Стол раскладывается на случай, если придут гости.

 📷
📷

«Очень давно нравится эта люстра, часто ее примеряла в проектах, но ее не утверждали. В этот раз она понравилась заказчикам», — рассказывает дизайнер.

 📷
📷

Шпонированный МДФ используется во всей квартире в качестве акцента — поддерживает единую идею и концепцию проекта.

 📷
📷

 📷
📷

Спальня

Интерьер во всей квартире получился светлым, с применением акцентного дерева в мебели и отделке. Также добавили элементы стиля джапанди.

 📷
📷

Зеркальное полотно расширяет пространство, увеличивает количество света в спальне. К тому же оно смотрится очень стильно.

 📷
📷

На стенах во всей квартире использованы краска и декоративная штукатурка. На полу во всей квартире, исключая ванную комнату, кварцвинил. Это было решением и пожеланием заказчицы, она хотела единое покрытие.

 📷
📷

Детская

Детская предназначена для того, чтобы делать уроки и спать. За кроватями разместили рейки из шпонированного МДФ и добавили подсветку.

 📷
📷

Для учебы предусмотрели большой стол вдоль окна, тумбы под столом, стеллаж. Радиатор под столом не заметен, он скрыт панелью с прорезями для того, чтобы воздух нормально циркулировал.

 📷
📷

Комната оформлена в спокойных пастельных тонах. Два светильника, сделанные на заказ, делают интерьер интереснее.

 📷
📷

Игровая

Комната площадью 13,5 кв. м служит как игровой, так и гардеробной, а также гостевой комнатой. Здесь есть диван, который можно разложить на случай, если придут гости.

Пожелание заказчиков — предусмотреть удобное место для просмотра фильмов и компьютерных игр, поэтому здесь появились зона ТВ и мягкие кресла.

Часть стены с ТВ выделили цветом и добавили картину, подходящую по цветам. Предусмотрели также графичный стеллаж, куда можно поставить разные игрушки, книги, декор.

Санузлы

В квартире есть ванная комната и гостевой санузел. Планировка в ванной комнате сложной формы — чтобы ее скорректировать, дизайнер решила сделать в углах помещения шкафы.

Площадь ванной 8 кв. м. Она просторная: есть большая раковина с двумя смесителями — это удобно для семьи с двумя детьми, особенно когда утром все собираются в школу и на работу. Прямоугольное зеркало визуально расширяет пространство. А подсветка добавляет уюта.

В гостевом санузле предусмотрели подвесной унитаз, небольшую раковину и системы хранения.

Больше фото тут:

Семейная квартира со светлой отделкой и деревянными акцентами