Найти в Дзене
TESSER interior design

Дизайн интерьера бесплатно.

Дизайн интерьера бесплатно или как самому создать квартиру своей мечты Содержание статьи 1. Полезное и удобное для создания планировки 2. 3 плана для начала ремонта 3. Список курсов по дизайну интерьера: лучшие онлайн школы и курсы в России 2023 году 4. Топ 5 программ 2023 года для самостоятельной перепланировки и создания интерьера 5. Профессиональные 3d программы и сервисы для дизайнеров интерьера 2023 6. Актуальные цены на дизайн-проект 2023 Полезное и удобное для создания планировки самому Первое что необходимо сделать- это аудит планировки. Всегда помним золотое правило эргономики: симметрия, габариты и размеры.         3 плана для начала ремонта 1 ОБМЕРНЫЙ ПЛАН  Обмерный план нужен, чтобы точно знать, как сейчас выглядит квартира. Важны мельчайшие детали: • глубина, ширина, все выступы подоконников; • высоты всех проемов, окон и потолка ( ширину все и так замеряют- про высоту забывают); • расположение и привязки всех труб и стояков ( всегда есть ограничения с их расположение

Дизайн интерьера бесплатно или как самому создать квартиру своей мечты

Содержание статьи

1. Полезное и удобное для создания планировки

2. 3 плана для начала ремонта

3. Список курсов по дизайну интерьера: лучшие онлайн школы и курсы в России 2023 году

4. Топ 5 программ 2023 года для самостоятельной

перепланировки и создания интерьера

5. Профессиональные 3d программы и сервисы для дизайнеров интерьера 2023

6. Актуальные цены на дизайн-проект 2023

Полезное и удобное для создания планировки самому

Первое что необходимо сделать- это аудит планировки. Всегда помним золотое правило эргономики: симметрия, габариты и размеры.

      

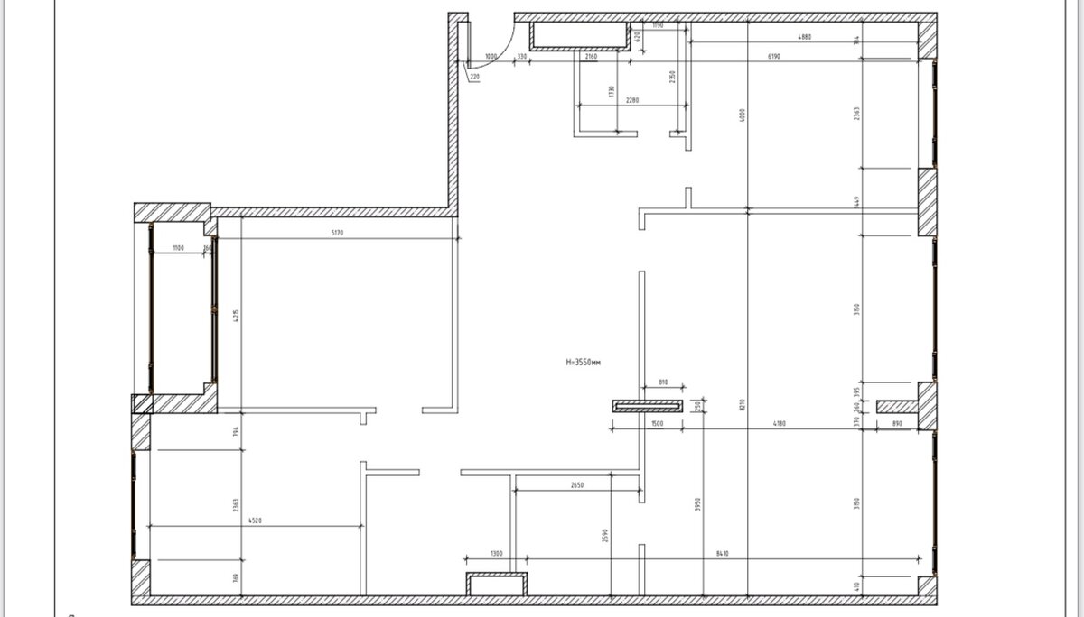
 3 плана для начала ремонта 1 ОБМЕРНЫЙ ПЛАН

-2

 Обмерный план нужен, чтобы точно знать, как сейчас выглядит квартира. Важны мельчайшие детали:

• глубина, ширина, все выступы подоконников;

• высоты всех проемов, окон и потолка ( ширину все и так замеряют- про высоту

забывают);

• расположение и привязки всех труб и стояков ( всегда есть ограничения с их

расположением);

• счетчики, все вводы электрики и слабых токов;

• И еще много нюансов;

Профессиональные замеры делают электронным сканированием.

2 ПЛАН ДЕМОНТАЖА И МОНТАЖА

-3
-4

  

 Если все не обошлось расстановкой мебели и подбором обоев, то для перепланировки вам понадобится этот план ( а чаще 2).

Для разговора со строителями это очень важно. С этим планом сразу будет ясно:

• законная перепланировка или нет;

• можно понять объем сносимых и вновь возводимых перегородок;

• объем работ и черновых материалов;

Чем более конкретные У ВАС ЦИФРЫ, тем менее расплывчатые У НИХ ОБЕЩАНИЯ по срокам и ценам. «Начнем работу- будет видно» не пройдет.

3 ПЛАН РАССТАНОВКИ МЕБЕЛИ

-5

 Тут вроде все и так ясно.

Сделайте обмеры мебели и сравните их со своим планом монтажа. Диван, какой бы он не был дорогой и красивый, не сможет втянуть подлокотники. Дверцы кухни не смогут открыться, если им мешает потолочный молдинг.

У сантехники тоже есть свои особенности. Берите расстояние стен для ванны, встроенной стандартной раковины с запасом на пару сантиметров, учитывая что там будет еще и штукатурка, и плитка.

С кухнями и встроенной мебелью проще, потому что часть полномочий можно переложить на консультанта в магазине. Но помните, что лучше иметь ровные значения, например для шкафа, чтобы все дверцы были одного размера. ( не 1876 мм , а 1800 мм, чтобы три двери были по 600 мм)

 Список курсов по дизайну интерьера: лучшие онлайн школы, курсы и мастер классы в России 2023 году.

место В рейтинге ТОП 5 лучших онлайн-курсов занимает короткий мастер класс от дизайнера Михаила Шапошникова. Миша- дизайнер интерьера с 8 летним стажем. Он записал два однодневных мастер класса «Планировки» и

«Современный стиль». Цена: 999 руб (Планировки)

999 руб (Современный стиль) Длительность: 2ч 40 мин

Ознакомиться подробнее можно здесь https://mishades.ru/? utm_medium=affiliate&utm_source=hotwalls

место занимает онлайн-школа дизайн интерьера atmosphere.school Анны Юдиной. Она создала курс продолжительностью 10 месяцев, после которого можно получить диплом дизайнера интерьера.

Цена: 150 000 руб Длительность: 10 месяцев

Ознакомиться подробнее можно здесь https://atmosphere.school/

место занимает Российская Академия Дизайна (РАД) — это достаточно новый образовательный проект, который призван оставить в прошлом классическое образование. Вместе с преподавателями вы реализуете проект интерьера загородного дома.

Цена: 30 000 руб Длительность: 40 часов online

Ознакомиться подробнее можно https://study.onlinerad.ru/#curs

место занимает Онлайн-школа и студия 3D визуализации SPACE SCHOOL. Сможете сами научиться моделированию интерьеров в 3DS Max Corona render. Больше подойдет для тех, кто хочет стать визуализатором.

Цена: от 16 990 руб

Длительность: 37 уроков записи, доступ к урокам 24 часа в сутки.

Ознакомиться подробнее можно здесь https://space-school.ru/

Наш рейтинг закрывает и становится на 1 место он-лайн курс от Skillbox «Дизайн интерьера с нуля». Вы будете работать с чертежами, создавать концепции интерьера и научитесь использовать отделочные материалы.

Освоите ArchiCad и 3ds Max, сможете выстраивать долгосрочные отношения с клиентами и получать интересные заказы.

Цена: 59 658 руб Длительность: 8 месяцев

Ознакомиться подробнее можно здесь https://skillbox.ru/course/interiordesign-pro/ оп 5 бесплатных программ 2023 для самостоятельной перепланировки и создания интерьера

1. Pro100 https://www.ecru.pl/ru

• можно редактировать любые элементы под себя

• можно по размерам моделировать кухни и любую

встроенную мебель

• нужно немного потратить время на изучение

• демо-версия ограничена.

2. Homestyler https://www.homestyler.com/int/home?lang=ru_RU

• много вариантов мебели и отделки

• приятный визуал проекта

• до трех месяцев бесплатно по специальной подписке

• от создателей 3ds Max и AutoCad

• нет русской версии

3. IKEA Home Planer https://www.ikea.com/jp/en/planners/

• очень понятная и легкая программа

• реальная мебель с производства

• есть отдельно подраздел для кухни

4. SweetHome3d http://www.sweethome3d.com/ru/

• достаточно простая программа для обычного пользователя.

• есть на русском языке

 • можно скачивать дополнительные модели мебели • мало элементов в стандартном виде

• посредственная визуализация

5. Floorplan 3D https://amssoft.ru/repair/floorplan3D.php

• есть демо-версия

• русскоязычный интерфейс

• много весит и обладает высокими системными

требованиями

• очень похожа на проф.программу, так как можно детально

проектировать дома и квартиры

рофессиональные 3d программы и сервисы для дизайнеров интерьера 2021

Начнем с профессиональных чертежных программ, которые совмещаются с BIM моделями.

PS. Сейчас AutoCad в большинстве случаев пользуются 40+ и он начинает уходить в закат, так как эта одна из первых чертежных программ для профессионалов. На нем нельзя построить в 3д, а значит это уже устаревше и неинтрересно.

1. ArchiCad https://graphisoft.com/ru/solutions/products/archicad

Это базовая программа, которую должен иметь и знать каждый дизайнер интерьера и архитектор. Набор мощных инструментов и понятный интерфейс делают программу с удобным BIM-решением, подходящим для любого архитектурного проектирования.

• Автоматическое создание документации;

• простой обмен данными;

• функции анализа;

• 3d визуализация;

• совместная работа над проектом.

  

 2. Revit https://www.autodesk.ru/products/revit

Сейчас очень много дизайн-студий и архитектурных бюро начали переучивать и переводить своих сотрудников именно на эту программу. Новые и улучшенные возможности программного обеспечения поддерживают комплексное моделирование для междисциплинарных проектов, включая детализацию и строительство.

• генеративное проектирование

• реалистичные виды в реальном времени

• совместная работа над проектом

• спецификации

• надстройки

• параметрические компоненты.

Далее по списку 3D программы для профессиональных дизайнеров.

1. 3Ds Max https://www.autodesk.ru/products/3ds-max/

Предоставляет обширный гибкий инструментарий для создания первоклассных проектов с полным контролем художественного замысла. Лучшие дизайн-проекты созданы именно в этой программе.

• Визуализация высококачественных архитектурных проектов

• Моделирование интерьеров и объектов с высокой степенью детализации

• Оживление персонажей и объектов с помощью анимации и визуальных эффектов

 • Рендеринг, свет и материалы

2. Unreal Engine https://www.unrealengine.com/en-US/download

Программа с полным набором инструментов для разработки виртуальной реальности. От визуализации дизайна и кинематографических впечатлений до высококачественных игр для ПК и мобильных устройств. Поможет вам выделиться из всех, кто есть на рынке, это нереально крутая программа.

• Трубопроводная интерграция

• Мировое строительство

• Анимация

• Рендеринг, свет и материалы

• Симуляция и эффекты

И завершают наш список рейтинга - сервисы для дизайнеров интерьеров. Здесь несколько популярных сервисов, которые вы должны регулярно просматривать и пользоваться, смотреть и выделять что-то новое для себя и своих проектов.

1. 3ddd https://3ddd.ru/

Это единая платформа для визуализаторов интерьера. Там огромная база 3d моделей. Обычно для работы с визуализаторами требуется подборка с ссылками именно с этого сайта.

2. Pinterest https://www.pinterest.ru/

Свежие идеи для вашей работы. Достаточно одного взгляда, чтобы распознать прекрасную идею. Листайте в день по 10-15 минут, ведь дизайнер должен быть прежде всего насмотренным. В поиске лучше вбивать на английском языке, также можно картинкой.

3. Let’s enhance https://letsenhance.io/

Мощный онлайн сервис для увеличения разрешения изображения без потери качества. 100% автоматический и быстрый. Загружаете любой рендер или фотографию, выбираете во сколько раз хотите увеличить или улучшить изображение и нажимаете пуск.

4. ActiveCollab https://activecollab.com/

Это программное обеспечение для управления проектами, которое дает вам полный контроль над вашей работой. Вы можете добавлять своих коллег, сотрудников, клиентов, писать задачи, назначать время и встречи, вести бюджет и все это в одной программе.

5. Slack https://slack.com/intl/en-ru/

Тоже он-лайн платформа для работы в команде. Есть интеграция с Google диском, календарем, платежной системой , Dropbox и многим другим. Выбирайте какой платформой удобнее пользоваться именно вам.

Актуальные цены на дизайн-проект 2023

Сколько стоит дизайн-проект квартиры в Москве?

По Москве средняя цена за квадратный метр варьируется от 2500 руб/м2- 5000 руб/м2. Ниже 2000 руб. - это либо дизайн- студии, которые работают быстро и на количество, либо новички.Стоимость проектирования прямо пропорциональна площади объекта.

Цена за квадратный метр дизайн-проекта в Москве зависит на прямую от выбранного пакета услуг:

1. Планировочное решение

2. Планировочное решение + визуализация + рабочие чертежи

3. Планировочное решение + визуализация + рабочие

чертежи+спецификации

 4. Планировочное решение + визуализация + рабочие чертежи+спецификации+ авторский надзор+комплектующие

Подробнее с актуальными ценами можно ознакомиться здесь

Tesser Interior design