Добавить в корзинуПозвонить
Найти в Дзене

Пожарная сигнализация тепловоза ТЭМ18ДМ

Всем привет! Сегодня я расскажу о важной части устройства тепловоза ТЭМ18ДМ - системе пожаротушения тепловоза. Тепловоз оборудован тремя огнетушителями типа ОП-4 и установкой пожарной сигнализации для тягового подвижного состава УПС-ТПС. Установка пожарной сигнализации УПС-ТПС предназначена для обнаружения пожара в помещениях тепловоза и выдачи внешней звуковой и световой сигнализации с указанием места загорания. Основным элементом установки является прибор ППКП. К взаимонезависимым линиям сигнализации ППКП подключается пожарный извещатель ИПК-ТУ и датчики ДТК. Установка обеспечивает выдачу сигналов «Норма»; «Пожар» (при срабатывании извещателей). При возникновении неисправности установка выдает световой и звуковой сигналы «Неисправность» с указанием неисправной линии сигнализации и вида неисправности: «Обрыв», «Короткое замыкание». Питающее напряжение – бортовая сеть тепловоза 75 В +30%. Общая схема подключений установки приведена в электрической схеме тепловоза. Два огнетушителя ус

Всем привет! Сегодня я расскажу о важной части устройства тепловоза ТЭМ18ДМ - системе пожаротушения тепловоза.

Тепловоз оборудован тремя огнетушителями типа ОП-4 и установкой пожарной сигнализации для тягового подвижного состава УПС-ТПС.

Установка пожарной сигнализации УПС-ТПС предназначена для обнаружения пожара в помещениях тепловоза и выдачи внешней звуковой и световой сигнализации с указанием места загорания. Основным элементом установки является прибор ППКП. К взаимонезависимым линиям сигнализации ППКП подключается пожарный извещатель ИПК-ТУ и датчики ДТК. Установка обеспечивает выдачу сигналов «Норма»; «Пожар» (при срабатывании извещателей).

При возникновении неисправности установка выдает световой и звуковой сигналы «Неисправность» с указанием неисправной линии сигнализации и вида неисправности: «Обрыв», «Короткое замыкание». Питающее напряжение – бортовая сеть тепловоза 75 В +30%. Общая схема подключений установки приведена в электрической схеме тепловоза. Два огнетушителя установлены в дизельном помещении и один – в кабине машиниста.

Устройство и работа УПС-ТПС.

Основным элементом установки является прибор ППКП. К взаимонезависимым линиям сигнализации ППКП подключается пожарный извещатель ИПК-ТУ и датчики ДТК.

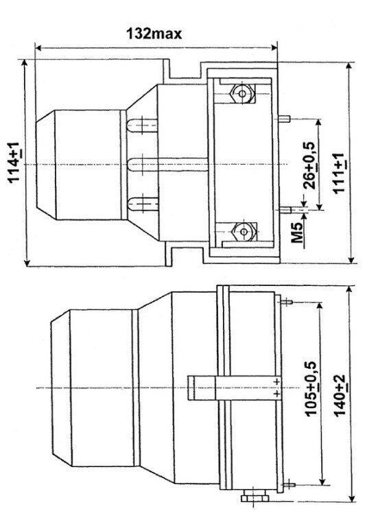
Извещатель пожарный комбинированный ИПК-ТУ
Извещатель пожарный комбинированный ИПК-ТУ
Датчик тепловой контактный ДТК
Датчик тепловой контактный ДТК

Общая схема подключений установки приведена в электрической схеме тепловоза.

На передней панели прибора приемно-контрольного пожарного ППКП

размещены органы управления и световые индикаторы. На нижней панели прибора размещены электрические разъемы, к которым подключаются линии сигнализации и питания установки.

Включение установки производится при включении тумблера СЕТЬ на

передней панели прибора. В процессе эксплуатации установки допускается тумблер СЕТЬ не отключать, если это не требуется при обслуживании самой установки.

Друзья, спасибо за уделенное время! Благодарю вас за прочтение данной статьи, пишите ваши комментарии!