Добавить в корзинуПозвонить
Найти в Дзене

4 фактора, от которых нужно отталкиваться, при выборе идеального проекта частного дома. Разбираем каждый.

Упрощенно выбор проекта включает в себя несколько фильтров: ваши потребности, ваши желания, ваши финансовые возможности. Последний, как правило, влияет на наши желания, а совокупность этих факторов и приводит к возведению домов: начиная с самых маленьких, заканчивая трехэтажными коттеджами. В рамках данной статьи предлагаю рассмотреть все факторы, с которыми поочередно придется столкнуться человеку при выборе проекта дома мечты. Давайте разбираться. 1. Правильный выбор участка Если у вас уже есть участок - очень важно учитывать его размеры и отталкиваться от пятна застройки, то есть той площади участка, на котором строительство допустимо по нормам. Если площадь участка небольшая - это однозначно малогабаритный проект с двумя полноценными этажами, либо первым этажом и мансардой. 2. Определяем этажность дома Если пятно застройки вашего дома позволяет выбрать и одноэтажный проект, который займет больше площади на участке - рекомендую строить одноэтажный дом. Месяц назад на канале была вып
Оглавление

Упрощенно выбор проекта включает в себя несколько фильтров: ваши потребности, ваши желания, ваши финансовые возможности. Последний, как правило, влияет на наши желания, а совокупность этих факторов и приводит к возведению домов: начиная с самых маленьких, заканчивая трехэтажными коттеджами.

В рамках данной статьи предлагаю рассмотреть все факторы, с которыми поочередно придется столкнуться человеку при выборе проекта дома мечты. Давайте разбираться.

1. Правильный выбор участка

Если у вас уже есть участок - очень важно учитывать его размеры и отталкиваться от пятна застройки, то есть той площади участка, на котором строительство допустимо по нормам. Если площадь участка небольшая - это однозначно малогабаритный проект с двумя полноценными этажами, либо первым этажом и мансардой.

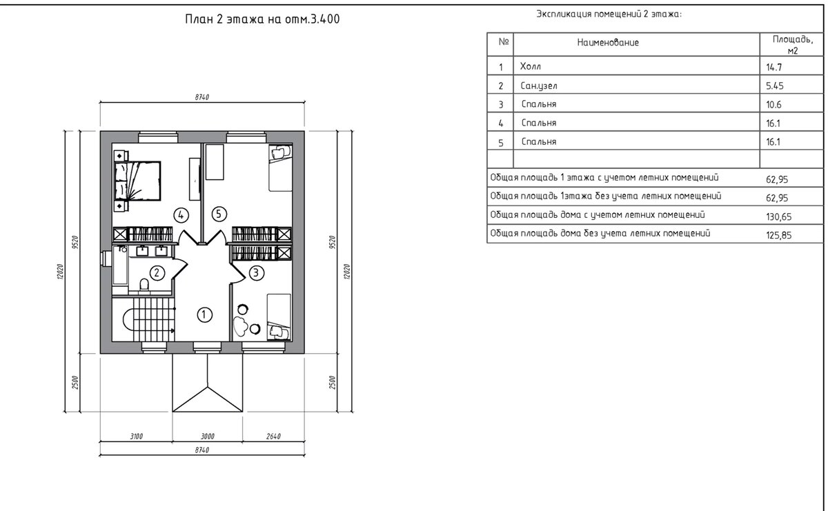
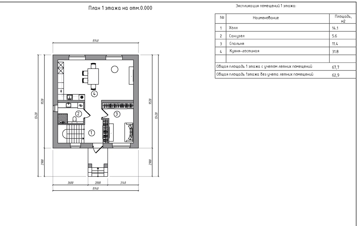
  • К примеру, в нашей компании, если у клиента площадь участка не очень большая, но хочется построить полноценный семейным дом, ге площади хватит на всех - выбирают проект Грата 130.
  • 2 санузла, 4 спальни, кухня-гостиная на 32 кв.м. - планировка этого проекта, на мой взгляд, просто идеальная, с точки зрения соотношения используемой площади и планировочных решений.

2. Определяем этажность дома

Если пятно застройки вашего дома позволяет выбрать и одноэтажный проект, который займет больше площади на участке - рекомендую строить одноэтажный дом.

Месяц назад на канале была выпущена статья, в которой мы подробно разобрали основные мифы об одноэтажном доме, в том числе и по стоимости строительства. Ознакомиться с ней можно по ссылке.

3. Определяемся с типом помещений будущего дома

-3

Для ответа на этот вопрос, рекомендую провести анализ по 2 критериям:

1) Проанализируйте, каких помещений не хватает вам для жизни в вашем нынешнем доме. Обратную связь, по возможности, соберите со всех своих домочадцев.
2) Проанализируйте типовые проекты. Возможно, что ваши желания и предпочтения найдут свою реализацию в готовом проекте, что существенно упростит вам жизнь.

4. Планирование расположения комнат

С примерами наиболее удачной и рациональной планировки домов можете ознакомиться на нашем сайте. В целом, если вы подошли к процессу выбора планировки, то стоит учитывать следующее:

  • располагайте санузлы в доме по одному стояку;
  • встроенный гараж в доме будет стоить дороже, чем отдельное помещение (но будет удобнее);
  • жилые комнаты лучше размещать с южной стороны, а хозяйственные помещения на северной: так будет более эффективно расходоваться тепло;
  • в двухэтажном доме постарайтесь интегрировать дополнительную комнату, которая точно пригодится в будущем детям/для гостей с ночевкой/для пожилых родителей, которые захотят пожить с вами.
-4

Если вы хотите, чтобы на всех этапах, начиная с выбора участка и заканчивая сдачей и приемом готового объекта в эксплуатацию вас сопровождали профессионалы своего дела, которые построят вам дом-мечты - переходите на сайт нашей строительной компании "Грата".

Всем спасибо за внимание и до новых встреч!