Добавить в корзинуПозвонить
Найти в Дзене
DESIGNER

Изящный и нежный интерьер квартиры-студии на 27м² для молодой девушки.

Здравствуйте и добро пожаловать на канал DESIGNER. Подписывайтесь и ставьте лайки - это очень помогает развитию канала. Много ли нужно современному человеку в квартире для комфортно проживания? В целом, довольно много. Начиная с базовых зон, таких как кухня и ванная комната и заканчивая рабочей зоной и гардеробом. Но можно ли организовать такую квартиру, если площадь твоего жилища всего 25м²? Сегодня мы рассмотрим очаровательный интерьер квартиры на 27м², который, скорее всего подойдёт исключительно для молодой девушки. Связано это со спецификой не только визуального оформления, но также и с особенностью организации пространства. Начнём с прихожей зоны. Стены, как и в большей части квартиры, покрашены в светло-серый оттенок, а в качестве напольного покрытия используется кафель с имитацией мрамора. Отдельно также хочется отметить широкие плинтуса и молдинги, которые придают помещению особый антураж. Что касаемо наполненности прихожей зоны, здесь мы имеем консоль белого цвета в классичес
Оглавление

Здравствуйте и добро пожаловать на канал DESIGNER. Подписывайтесь и ставьте лайки - это очень помогает развитию канала.

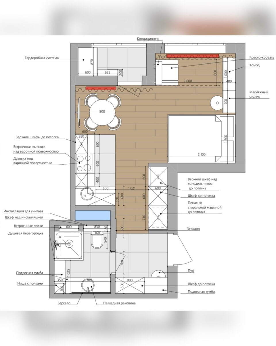
Много ли нужно современному человеку в квартире для комфортно проживания? В целом, довольно много. Начиная с базовых зон, таких как кухня и ванная комната и заканчивая рабочей зоной и гардеробом. Но можно ли организовать такую квартиру, если площадь твоего жилища всего 25м²?

Сегодня мы рассмотрим очаровательный интерьер квартиры на 27м², который, скорее всего подойдёт исключительно для молодой девушки. Связано это со спецификой не только визуального оформления, но также и с особенностью организации пространства.

Взято из: https://vk.com/club211296694
Взято из: https://vk.com/club211296694

Начнём с прихожей зоны. Стены, как и в большей части квартиры, покрашены в светло-серый оттенок, а в качестве напольного покрытия используется кафель с имитацией мрамора. Отдельно также хочется отметить широкие плинтуса и молдинги, которые придают помещению особый антураж.

Взято из: https://vk.com/club211296694
Взято из: https://vk.com/club211296694
Взято из: https://vk.com/club211296694
Взято из: https://vk.com/club211296694

Что касаемо наполненности прихожей зоны, здесь мы имеем консоль белого цвета в классическом оформлении, бордовый пуф и встроенный шкаф. Смотрится аккуратно и стильно.

Взято из: https://vk.com/club211296694
Взято из: https://vk.com/club211296694
Взято из: https://vk.com/club211296694
Взято из: https://vk.com/club211296694

Далее мы переходим в ванную комнату. Несмотря на некоторую схожесть материалов и оформления, данная комната выглядит более красочной и «празднично». В большей степени это обеспечено отделкой из голубого кафеля с имитацией мрамора, а также «золотых» элементов и подсветки.

Взято из: https://vk.com/club211296694
Взято из: https://vk.com/club211296694

Слева от входа установлена подвесная тумба серого цвета с накладной раковиной круглой формы и зеркало. Также стоит отметить ряд полочек с различной атрибутикой.

Справа от входа установлен подвесной унитаз с инсталляцией.

Чуть далее находится душевая зона, которая является вишенкой на торте дизайна ванной комнаты.

Взято из: https://vk.com/club211296694
Взято из: https://vk.com/club211296694

Далее мы проходим небольшой коридорчик, заполненный некоторой техникой и системой хранения.

Взято из: https://vk.com/club211296694
Взято из: https://vk.com/club211296694

Кухня оформлена в сочетании белого и серого оттенков. Ярким акцентом выступает фартук в розовом цвете.

Взято из: https://vk.com/club211296694
Взято из: https://vk.com/club211296694

Кухня получилась небольшой, но более-менее функциональной. Имеется вся необходимая техника, которую вполне грамотно и разумно распределили по кухне. Рабочего пространства крайне мало, чего не скажешь про систему хранения.

Взято из: https://vk.com/club211296694
Взято из: https://vk.com/club211296694

Совсем рядом располагается обеденная зона. Она представлена круглым белым столом и несколькими стульями зелёного цвета в мягкой обивке. Довольно странно видеть такой небольшой стол и аж четыре сидячих места.

Взято из: https://vk.com/club211296694
Взято из: https://vk.com/club211296694

Далее мы переходим в спальню. Дизайн остаётся неизменным, но дизайнер решил его разнообразить некоторыми нововведениями. Так, например, помимо большого количества лепнины, мы можем наблюдать расписную стену в золотом цвете.

Взято из: https://vk.com/club211296694
Взято из: https://vk.com/club211296694

Спальным местом выступает серая кровать с мягким изголовьем.

Взято из: https://vk.com/club211296694
Взято из: https://vk.com/club211296694
Взято из: https://vk.com/club211296694
Взято из: https://vk.com/club211296694

Чуть левее находится зона ухода или рабочая зона, по желанию. Она представлена белым подвесным столиком и креслом.

Взято из: https://vk.com/club211296694
Взято из: https://vk.com/club211296694

Здесь же располагается голубая софа. Правда, не совсем понятно почему именно в этой зоне. Возможно, дизайнер таким образом организовал лаунж-место для отдыха.

Взято из: https://vk.com/club211296694
Взято из: https://vk.com/club211296694

Квартира также оснащена балконом, который, как мне кажется, используется крайне разумно. Здесь организована полноценная гардеробная зона.

Взято из: https://vk.com/club211296694
Взято из: https://vk.com/club211296694
Взято из: https://vk.com/club211296694
Взято из: https://vk.com/club211296694

Отдельно хочется выделить элементы декора и просто атрибуты, которые дополняют и делают интерьер более целостным, как, например, шторы, люстры и текстиль.

Что в итоге?

Интерьер получился нежным, ярким, но утончённым. Если же говорить про организацию пространства, то дизайнеру удалось грамотно и продуманно обставить столь малую площадь.

На этом у меня всё, не забывайте подписываться на канал и ставить лайки. До новых встреч.