Найти в Дзене
DESIGNER

Комфортная и уютная студия на 30м² с большим функционалом и очаровательным оформлением.

Здравствуйте и добро пожаловать на канал DESIGNER. Подписывайтесь и ставьте лайки - это очень помогает развитию канала. Отдельная спальня или гостиная? Кончено хочется и то и другое, но как это реализовать, если общая площадь квартиры, например, 25м²? Довольно сложно, но вполне реально. Сегодня мы рассмотрим интерьер небольшой квартиры на 30м² с качественной организацией пространства и крайне стильным оформлением. Итак, начнём с прихожей зоны. Стены было решено оформить в белом цвете, а пол при этом выложить светлым ламинатом. Вполне стандартное и стильное решение. В качестве основной мебели выступает система хранения в виде шкафов из светлого дерева с нишей для верхней одежды и сиденьем. Далее эти же шкафы плавно перетекают в кухонный гарнитур, на ходу добавляя бежевый оттенок. Несмотря на скромные размеры квартиры, кухня имеет вполне достойные размеры. При этом организована она довольно грамотно. Техника имеется в полном объеме, есть небольшая зона для готовки, а также отличная систе
Оглавление

Здравствуйте и добро пожаловать на канал DESIGNER. Подписывайтесь и ставьте лайки - это очень помогает развитию канала.

Отдельная спальня или гостиная? Кончено хочется и то и другое, но как это реализовать, если общая площадь квартиры, например, 25м²? Довольно сложно, но вполне реально.

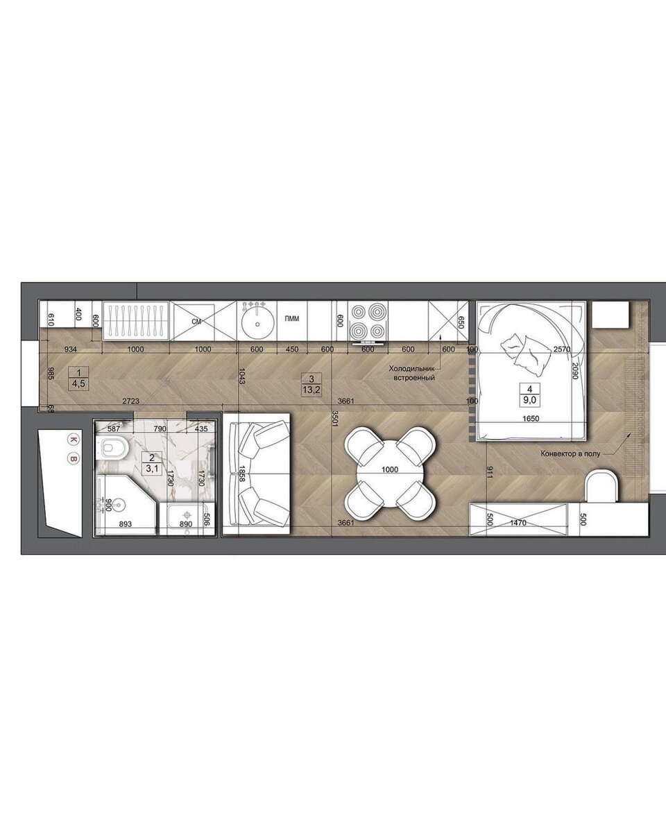
Сегодня мы рассмотрим интерьер небольшой квартиры на 30м² с качественной организацией пространства и крайне стильным оформлением.

Взято из: https://vk.com/malenkayakvartira1
Взято из: https://vk.com/malenkayakvartira1

Итак, начнём с прихожей зоны. Стены было решено оформить в белом цвете, а пол при этом выложить светлым ламинатом. Вполне стандартное и стильное решение.

В качестве основной мебели выступает система хранения в виде шкафов из светлого дерева с нишей для верхней одежды и сиденьем.

Взято из: https://vk.com/malenkayakvartira1
Взято из: https://vk.com/malenkayakvartira1

Далее эти же шкафы плавно перетекают в кухонный гарнитур, на ходу добавляя бежевый оттенок. Несмотря на скромные размеры квартиры, кухня имеет вполне достойные размеры. При этом организована она довольно грамотно. Техника имеется в полном объеме, есть небольшая зона для готовки, а также отличная система хранения.

Взято из: https://vk.com/malenkayakvartira1
Взято из: https://vk.com/malenkayakvartira1

Напротив кухни располагается гостиная и обеденная зона.

Гостиная представлена коричневым диваном и пластиковым прозрачным столиком. Смотрится слегка несуразно, но ситуацию исправляет картина, добавляющая ярких акцентов. Отдельно также хочется отметить молдинги, которыми оформлена большая часть комнаты.

Взято из: https://vk.com/malenkayakvartira1
Взято из: https://vk.com/malenkayakvartira1

Обеденная зона состоит из пары кресел в мягкой обивке с оригинальной формой, а также круглого столика с прозрачной столешницей. Выглядит очень стильно, но размер стола может вызывать дискомфорт.

Взято из: https://vk.com/malenkayakvartira1
Взято из: https://vk.com/malenkayakvartira1

Далее мы переходим в спальную зону. Но сначала стоит выделить «стеклянные» рейки, которые отделяют её от остальной квартиры.

Взято из: https://vk.com/malenkayakvartira1
Взято из: https://vk.com/malenkayakvartira1

Внутри мы видим двуспальную кровать с мягким изголовьем и прикроватную тумбу.

Взято из: https://vk.com/malenkayakvartira1
Взято из: https://vk.com/malenkayakvartira1

Помимо этого в спальне имеется небольшая система хранения и рабочая зона. Оттенок мебели подобран в том же цвете, что и кухонный гарнитур, а сиденьем служит ранее виденное нами кресло.

Взято из: https://vk.com/malenkayakvartira1
Взято из: https://vk.com/malenkayakvartira1
Взято из: https://vk.com/malenkayakvartira1
Взято из: https://vk.com/malenkayakvartira1

Отдельно также хочется отметить обилие декора, который благоприятно влияет на светлый интерьер, разбавляя его разными красками.

Ванная комната в свою очередь копирует визуальное оформление квартиры. Стены и пол выполнены в белом кафеле, имитирующем мрамор, а контраста задаёт некоторая мебель из светлого дерева.

Сразу напротив входа установлена подвесная тумба с накладной раковиной и округлое зеркало.

Справа же находится угловая душевая зона и унитаз.

Взято из: https://vk.com/malenkayakvartira1
Взято из: https://vk.com/malenkayakvartira1

Что в итоге?

Интерьер получился вполне сдержанным, но стильным и утончённым, а организация пространства позволила уместить в столь скромную по размеру квартиру все необходимые зоны.

На этом у меня всё, не забывайте подписываться на канал и ставить лайки. До новых встреч.