Добавить в корзинуПозвонить
Найти в Дзене
Ландшафтный гуру

"В таком доме сразу хочется жить" — нежный и уютный интерьер одноэтажного дома в Челябинске

В данном доме проживают семейная пара с дочкой-подростком. Дом сдавался без внутренней отделки, поэтому для создания грамотного, красивого и функционального пространства прибегли к помощи профессионального дизайнера. Проект Прихожая Прихожая выполнена в светлых тонах. На полу уложена плитка с геометрическим узором, а стены покрашены краской. Слева от входа появилась мягкая банкетка и большой шкаф для одежды. Кухня-гостиная При входе в помещение, с правой стороны, расположилась зона кухни. Для стен выбрали нейтральный серый оттенок. На полу уложили ламинат. Кухонный гарнитур установили буквой Г. Верхний ярус шкафов установили только по одной стене, так как места для хранения здесь предостаточно, и не было смысла утяжелять пространство. Фасады имеют молочный оттенок. Мойку установили возле окна. В центре кухни появилась столовая группа с пудровыми стульями. На противоположной стороне от кухни разместили зону гостиной. Здесь преобладают светлые и пастельные тона в сочетании с яркими ак
Оглавление

В данном доме проживают семейная пара с дочкой-подростком. Дом сдавался без внутренней отделки, поэтому для создания грамотного, красивого и функционального пространства прибегли к помощи профессионального дизайнера.

Проект

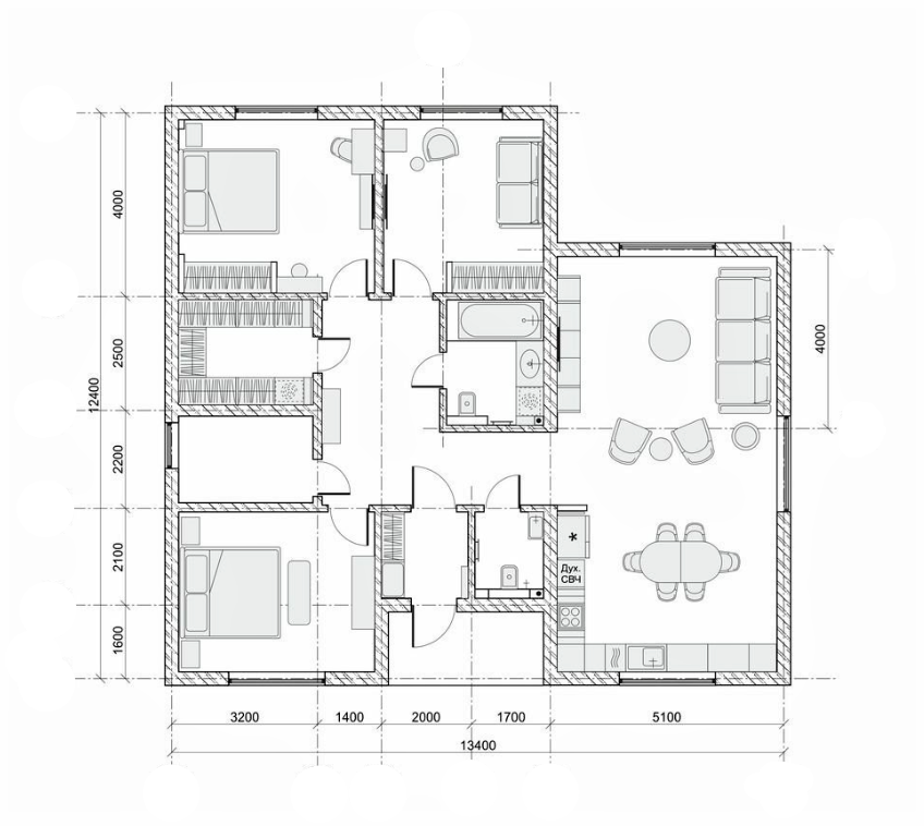
  • Местонахождение: г. Челябинск
  • Площадь дома: 124 кв. метров
  • Владельцы: семейная пара с дочкой

Прихожая

Прихожая выполнена в светлых тонах. На полу уложена плитка с геометрическим узором, а стены покрашены краской. Слева от входа появилась мягкая банкетка и большой шкаф для одежды.

-2

Кухня-гостиная

При входе в помещение, с правой стороны, расположилась зона кухни. Для стен выбрали нейтральный серый оттенок. На полу уложили ламинат. Кухонный гарнитур установили буквой Г.

Верхний ярус шкафов установили только по одной стене, так как места для хранения здесь предостаточно, и не было смысла утяжелять пространство. Фасады имеют молочный оттенок. Мойку установили возле окна. В центре кухни появилась столовая группа с пудровыми стульями.

На противоположной стороне от кухни разместили зону гостиной. Здесь преобладают светлые и пастельные тона в сочетании с яркими акцентами. У стены появился большой диван с дизайнерским светильником. Напротив него установлена телевизионная стенка с телевизором — это основное место хранения в гостиной.

Спальня

Спальня тоже выполнена в пастельных тонах. Здесь минимум мест для хранения, так как в коридоре организовали гардеробную. В центре комнаты поставили большую кровать, а напротив неё появился белоснежный комод. Возле прикроватных тумбочек появились зеркальные вставки на стене, которые визуально изменяют геометрию пространства.

Комната дочери

В комнате дочки тоже преобладают пастельные цвета, но в сочетании с яркими акцентами. Слева от входа в комнату расположился туалетный столик и встроенная система хранения. В центре разместили двуспальную кровать. Изголовье оформлено зеркальными панелями и зеркальными вставками. Напротив кровати появился телевизор и рабочее место.

Ванная комната

Вся ванная комната облицована керамогранитом нейтрального оттенка. Слева встала полноразмерная ванна со стеклянной перегородкой. Чтобы привнести ритм в помещение, здесь добавили ковер с геометрическим орнаментом.

Санузел

Стены в гостевой санузле оформили двумя видами плитки. Напольное покрытие — керамогранит. Слева от инсталляции поставили раковину с тумбой.

-9

Если вам понравилась статья, то не забудьте поставить лайк и подписаться, чтобы не пропустить новый материал!

Делитесь своим мнением в комментариях)