Добавить в корзинуПозвонить
Найти в Дзене

Можно ли внести изменения в типовой проект?

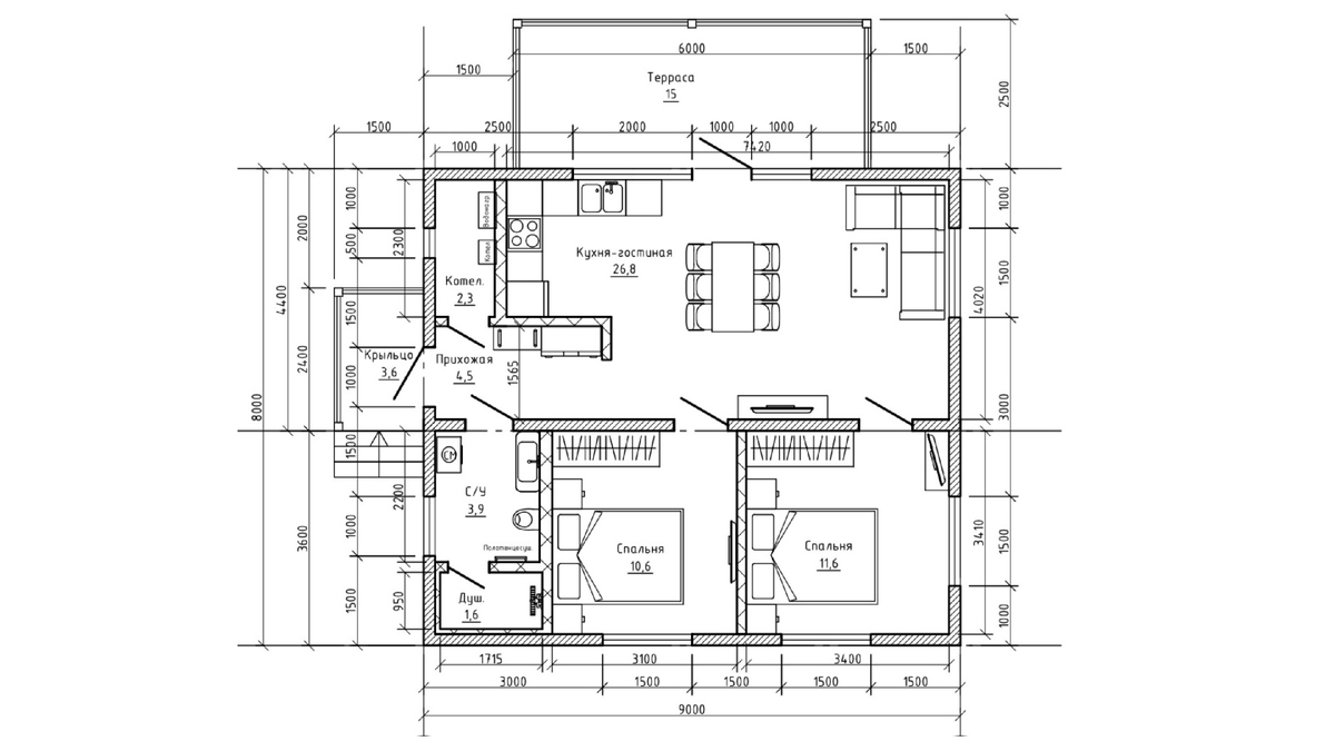
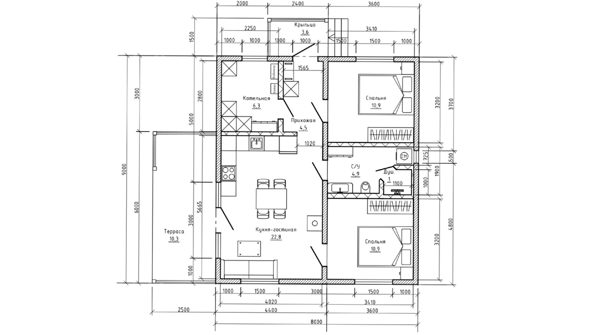
Да, но, как всегда, есть нюансы 🙂 Перед вами три изображения: на первом типовой проект «Юлия», а на втором и третьем — она же, но с изменениями. И с первого взгляда кажется, что изменения эти значительные. Что же можно изменить в проекте и как это повлияет ли на стоимость? ✅ Можно отзеркалить проект. Мы всегда сначала «приземляем» проект на участок, ориентируясь на стороны света, пожелания заказчика и видовую точку участка. ✅ Можно сделать перепланировку — изменить размеры помещений и их расположение. На чертежах вы можете увидеть, что стены обозначены по-разному: одни несущие брусовые, другие — каркасные. Каркасные перегородки мы можем двигать практически как угодно, заботясь лишь о технической стороне инженерных коммуникаций. Например, можно перенести санузел или за счёт уменьшения котельной увеличить размеры комнаты. ✅ Можно изменить размеры оконных и дверных проёмов и перенести их, учитывая технические возможности. Например, расстояние между проёмами не должно быть слишком маленьк

Да, но, как всегда, есть нюансы 🙂

Перед вами три изображения: на первом типовой проект «Юлия», а на втором и третьем — она же, но с изменениями. И с первого взгляда кажется, что изменения эти значительные.

Что же можно изменить в проекте и как это повлияет ли на стоимость?

Можно отзеркалить проект. Мы всегда сначала «приземляем» проект на участок, ориентируясь на стороны света, пожелания заказчика и видовую точку участка.

Можно сделать перепланировку — изменить размеры помещений и их расположение. На чертежах вы можете увидеть, что стены обозначены по-разному: одни несущие брусовые, другие — каркасные. Каркасные перегородки мы можем двигать практически как угодно, заботясь лишь о технической стороне инженерных коммуникаций. Например, можно перенести санузел или за счёт уменьшения котельной увеличить размеры комнаты.

Можно изменить размеры оконных и дверных проёмов и перенести их, учитывая технические возможности. Например, расстояние между проёмами не должно быть слишком маленьким.

Можно внести изменения в террасу: увеличить, уменьшить и даже вообще от неё отказаться.

Это самые распространенные изменения, которые заказчики вносят в типовые проекты. Все эти вопросы обсуждаются с проектировщиком. Он подскажет, как лучше сделать и, конечно, скажет, какие изменения реальны, а какие — нет.

За такие изменения мы не берём дополнительной оплаты. Мы строим дома для вас. И нам действительно важно, чтобы вам было комфортно в вашем доме.

Так что, если вам нравится какой-то проект, но есть сомнения и хочется что-то в нём поменять — мы поможем!