Добавить в корзинуПозвонить
Найти в Дзене

Проект загородного коттеджа в стиле хай-тек — «Финес»

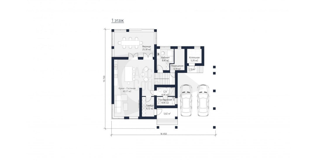
Проект загородного коттеджа в стиле хай-тек — «Финес» Представляем вашему вниманию загородный коттедж «Финес» — дом, в котором гармонично сочетаются стиль, комфорт и современные технологии. Наши архитекторы разработали пространство, где минимализм не лишает уюта, а панорамные окна, тщательно продуманная планировка и природные материалы делают его идеальным для жизни. Основные характеристики проекта: ✔️ Общая площадь: 190,64 м² ✔️ Спальни: 4 ✔️ Санузлы: 4 ✔️ Просторная гостиная с панорамными окнами и выходом на теплую веранду ✔️ Гараж: навесной, примыкающий к котельной ✔️ Бассейн во дворе, создающий атмосферу уединенного курорта Архитекторы сделали акцент на чистых линиях, панорамном остеклении и легких конструкциях, что визуально увеличивает пространство и наполняет его естественным светом. Высокие потолки и открытые планировки создают ощущение свободы и бесконечных возможностей. Дизайн прилегающей территории Особое внимание уделено ландшафтному дизайну. Придомовая территория оформлена

Проект загородного коттеджа в стиле хай-тек — «Финес»

Представляем вашему вниманию загородный коттедж «Финес» — дом, в котором гармонично сочетаются стиль, комфорт и современные технологии. Наши архитекторы разработали пространство, где минимализм не лишает уюта, а панорамные окна, тщательно продуманная планировка и природные материалы делают его идеальным для жизни.

Основные характеристики проекта:

✔️ Общая площадь: 190,64 м²

✔️ Спальни: 4

✔️ Санузлы: 4

✔️ Просторная гостиная с панорамными окнами и выходом на теплую веранду

✔️ Гараж: навесной, примыкающий к котельной

✔️ Бассейн во дворе, создающий атмосферу уединенного курорта

Архитекторы сделали акцент на чистых линиях, панорамном остеклении и легких конструкциях, что визуально увеличивает пространство и наполняет его естественным светом. Высокие потолки и открытые планировки создают ощущение свободы и бесконечных возможностей.

Дизайн прилегающей территории

Особое внимание уделено ландшафтному дизайну. Придомовая территория оформлена в стиле эко-минимализма, где акцент сделан на использование натуральных материалов, интеграцию зелени и грамотное освещение.

Главной изюминкой проекта стал задний двор, полностью отведенный под бассейн. Это не просто водоем, а настоящая зона для отдыха и релаксации. В сочетании с лаунж-зоной и удобной террасой создается атмосфера элитного загородного курорта.

Понравился проект? Заказать проект или выбрать подобный можно по телефону: +79323212510. Звоните или пишите. Заявки принимаются по вотцап, телеграмм. Готовы рассчитать для вас смету!

Как построить дом в Тюмени?

Как построить дом в Москве?

Готовые дома в Тюмени

Готовые дома в Москве

Земельные участки в Тюмени

Задать вопрос в ТГ

И подписывайтесь на наш канал, чтобы не пропустить новые интересные проекты.

#проектдома #проектдвухэтажногодома #построитьдом #купитьдом

#двухэтажныйдом #лучшиедвухэтажныедома #дом #новыедома