Добавить в корзинуПозвонить
Найти в Дзене

НАРЦИСС 115 м2 - проект одноэтажного дома в классическом стиле, тремя спальнями, баней и террасой, с балконом в мезонине

Это проект милого уютного одноэтажного дома с мезонином и баней для узкого участка, в классическом стиле. Дом можно построить с террасой или без неё. ✅ Проект готовый, условия заказа чертежей - на основном сайте В зонировании 1-го этажа применен прием совмещения кухни-столовой и гостиной, это экономит площадь и визуально расширяет и увеличивает пространство небольшого дома. От входа раскрывается вид на гостиную с камином и кухню-столовую. Вокруг пространства гостиной с камином скомпонованы остальные помещения этажа. ✔ Почитать о преимуществах совмещенной гостиной можно в статье блога ИНВАПОЛИС на сайте Слева от входа - котельная с лестницей в мезонин и две спальни. Справа - ванная и помещения маленькой баньки. Из кухни можно выйти на террасу с летней столовой и камином, и далее на участок. В мезонине расположена еще одна спальня со своей гардеробной, ванной комнатой и балконом. Вообще, этот проект - версия нашего старинного РИО-87 или РИО с мезонином, выполненная в классическом стиле.

Это проект милого уютного одноэтажного дома с мезонином и баней для узкого участка, в классическом стиле. Дом можно построить с террасой или без неё.

✅ Проект готовый, условия заказа чертежей - на основном сайте

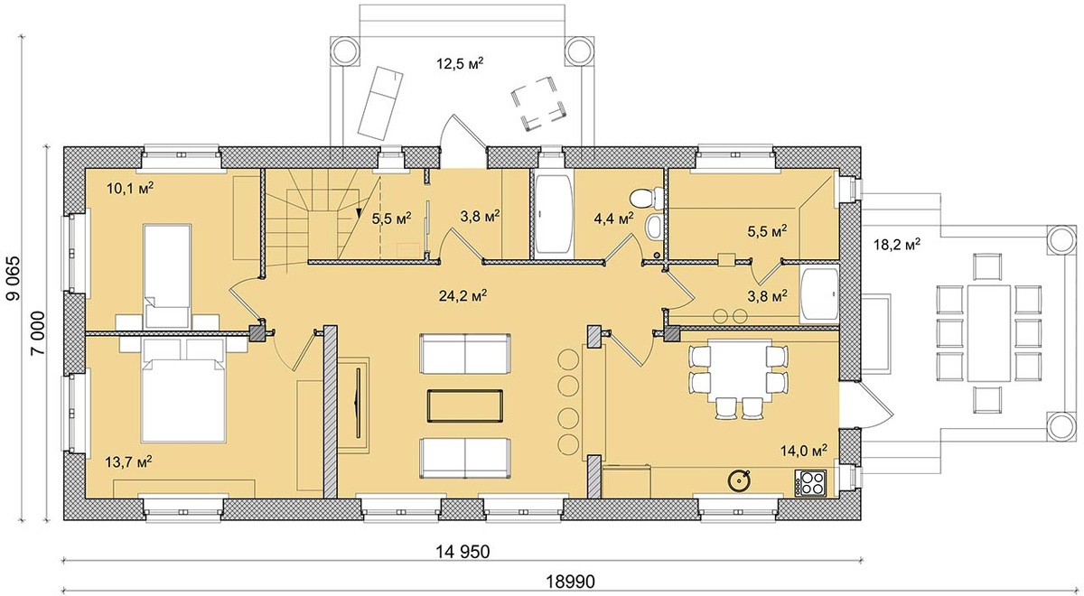
ПЛАНЫ.

В зонировании 1-го этажа применен прием совмещения кухни-столовой и гостиной, это экономит площадь и визуально расширяет и увеличивает пространство небольшого дома.

Все тонкие стенки можно двигать
Все тонкие стенки можно двигать

От входа раскрывается вид на гостиную с камином и кухню-столовую. Вокруг пространства гостиной с камином скомпонованы остальные помещения этажа.

✔ Почитать о преимуществах совмещенной гостиной можно в статье блога ИНВАПОЛИС на сайте

Слева от входа - котельная с лестницей в мезонин и две спальни. Справа - ванная и помещения маленькой баньки. Из кухни можно выйти на террасу с летней столовой и камином, и далее на участок.

В мезонине расположена еще одна спальня со своей гардеробной, ванной комнатой и балконом.

Здесь можно не делать никаких перегородок, оставить студию. Для девицы.
Здесь можно не делать никаких перегородок, оставить студию. Для девицы.

Вообще, этот проект - версия нашего старинного РИО-87 или РИО с мезонином, выполненная в классическом стиле. Так что если вам нравится план, но не нравится классика, можете обратить на них внимание.

Вилла РИО с мезонином 147 м2 - проект необычного дома для нестандартных участков
Инваполис - проекты рациональных домов 19 мая 2021
РИО 87 м2 - проект длинного одноэтажного дома 8х15 метров с навесами по бокам.
Инваполис - проекты рациональных домов 30 января 2022

► Чтобы не пропускать публикации, палец 👍, и подписывайтесь на канал :)