Добавить в корзинуПозвонить
Найти в Дзене
ДОМ с умом

Проект "Аврора" - классический дом со вторым светом

Это просторный дом для семьи из 4-5 человек. Проект выдержан в классическом стиле, со сложной кровлей, панорамными окнами и вторым светом. Второй этаж - полумансардный. Общая площадь: 218,3 кв.м
Жилая площадь: 206,6 кв.м
Габариты: 15,6 х 16,2 м
Фундамент: монолитная железобетонная плита
Стены: керамзитоблок 390 мм, утеплитель - 100 мм
Отделка фасада: кирпич и декоративная штукатурка
Крыша - из гибкой черепицы по деревянной стропильной системе
Межэтажное перекрытие - сборные железобетонные плиты перекрытия, чердачное - по стропильной системе На первом этаже расположились уютная кухня-гостиная с выходом на террасу, гостевая комната или комната для пожилого члена семьи, санузел, кладовая, гардеробная, а также гараж и изолированная котельная. На втором этаже три спальни: мастер-спальня, две детские, большая ванная комната и гардеробная. 📌Жилая площадь – 206,6 кв.м
📌Кухня-гостиная – 60,7 кв.м
📌Спальни – 4 шт.
📌Терраса – 11,4 кв.м
📌Гараж – на 1 авто
Оглавление

Это просторный дом для семьи из 4-5 человек. Проект выдержан в классическом стиле, со сложной кровлей, панорамными окнами и вторым светом. Второй этаж - полумансардный.

Характеристики:

Общая площадь: 218,3 кв.м
Жилая площадь: 206,6 кв.м
Габариты: 15,6 х 16,2 м
Фундамент: монолитная железобетонная плита
Стены: керамзитоблок 390 мм, утеплитель - 100 мм
Отделка фасада: кирпич и декоративная штукатурка
Крыша - из гибкой черепицы по деревянной стропильной системе
Межэтажное перекрытие - сборные железобетонные плиты перекрытия, чердачное - по стропильной системе

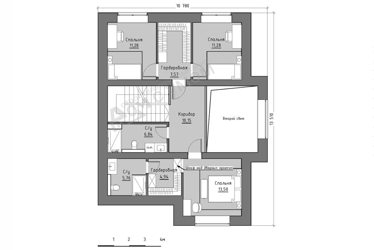
Планировка:

На первом этаже расположились уютная кухня-гостиная с выходом на террасу, гостевая комната или комната для пожилого члена семьи, санузел, кладовая, гардеробная, а также гараж и изолированная котельная. На втором этаже три спальни: мастер-спальня, две детские, большая ванная комната и гардеробная.

📌Жилая площадь – 206,6 кв.м
📌Кухня-гостиная – 60,7 кв.м
📌Спальни – 4 шт.
📌Терраса – 11,4 кв.м
📌Гараж – на 1 авто