Добавить в корзинуПозвонить
Найти в Дзене
KOGAN DESIGN STUDIO

Как спланировать квартиру

Статья для тех, кто задумывается о капитальном ремонте квартиры. С примерами, рекомендациями и пошаговой инструкцией Ремонт — это всегда комплекс больших и маленьких задач. И даже профессиональному дизайнеру невозможно удержать в голове все детали: количество и расстановку розеток, выключателей и их привязки, высоту потолков, раскладку плитки, количество строительных материалов, эргономику, итд.
Поэтому я всегда начинаю с планировки и вам настоятельно рекомендую, если хотите сэкономить и получить ожидаемый результат.
На примере двухкомнатной квартиры разберем ремонт со сносом стен, возведением новых перегородок, проведением электропроводки, монтажом потолочных конструкций. Для этого изучаем план БТИ.
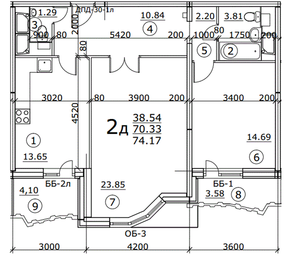
План БТИ двухкомнатной квартиры в панельном доме Мысленно «сносим» все не несущие перегородки и отстраняемся от изначальной планировки. Помним про то, что мокрые зоны не должны оказаться в жилых. То есть, санузел может увеличиться за счет коридора, но его нельзя увеличить за счет спальни
Оглавление

Статья для тех, кто задумывается о капитальном ремонте квартиры. С примерами, рекомендациями и пошаговой инструкцией

Ремонт — это всегда комплекс больших и маленьких задач. И даже профессиональному дизайнеру невозможно удержать в голове все детали: количество и расстановку розеток, выключателей и их привязки, высоту потолков, раскладку плитки, количество строительных материалов, эргономику, итд.

Поэтому я всегда начинаю с планировки и вам настоятельно рекомендую, если хотите сэкономить и получить ожидаемый результат.

На примере двухкомнатной квартиры разберем ремонт со сносом стен, возведением новых перегородок, проведением электропроводки, монтажом потолочных конструкций.

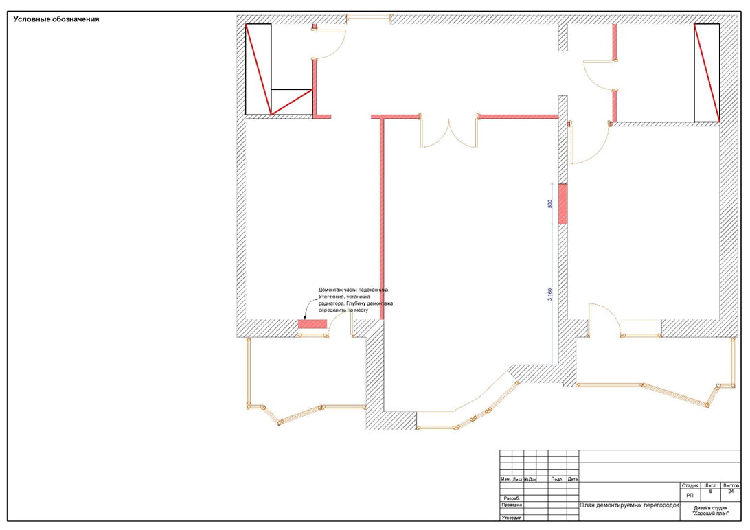
Шаг первый: определяем несущие и не несущие конструкции

Для этого изучаем план БТИ.
План БТИ двухкомнатной квартиры в панельном доме

Шаг второй: абстрагируемся от начальной планировки

Мысленно «сносим» все не несущие перегородки и отстраняемся от изначальной планировки. Помним про то, что мокрые зоны не должны оказаться в жилых. То есть, санузел может увеличиться за счет коридора, но его нельзя увеличить за счет спальни, гостиной.

Из каждого правила есть исключения, но будем придерживаться большинства случаев.

-2

Шаг третий: максимально используем имеющееся пространство

Я стараюсь избавляться от проходных площадей, таких как коридор, потому что они нефункциональны. Лучше присоединить эту площадь к санузлу, гостиной или кухне.

Шаг четвертый: делим площади на комнаты и рассчитываем размеры мебели

Начать следует с определения мебели, а не количества метров на комнату. Например, в спальне точно будет кровать. Хорошо бы поставить две прикроватные тумбы, шкаф для одежды, если нет гардероба. Часто клиенты просят разместить ТВ на стене, иногда комод и кресло. При этом надо заложить не только размеры каждого мебельного элемента, но и минимальные расстояния подхода к ним.

Так, если кровать имеет размер 1600 мм * 2000 мм, то минимальные расстояния подхода у кровати — 500 мм. Значит ближе 500 мм ничего поставить у кровати нельзя, кроме изголовья, где обычно стоят прикроватные тумбочки или обрамляющий кровать шкаф.

Шкаф обычно в глубину 600 мм. Рассчитываем ее так: вешалка занимает 500 мм, одежда на вешалке еще около 50 мм, а оставшиеся 50 мм — задние стенки и фасады. В крайнем случае можно сделать шкаф 500 — 550 мм, тогда одежда будет висеть немного под углом, но это не страшно. И даже и из этого есть исключения: системы хранения глубиной 450 мм и даже 300 мм. Там стоят выдвижные механизмы, а одежда вешается плашмя лицевой стороной к дверцам.

Теперь нам нужно посчитать длину шкафа, решить какого размера будут дверцы и не забыть о том, что они открываются.

С остальными комнатами поступаем так же. Определяем обязательную мебель, рассчитываем минимальные размеры и расстояния подхода.

Шаг пятый: определяем положение перегородок

Несущие конструкции не трогаем, но помним, что проемы в них возможны. Это зависит от нескольких основных факторов: этажность дома, этаж вашей квартиры, конструкция стен и потолочных перекрытий. Иногда бывают и второстепенные факторы: разрешение от строительной компании, возводившей дом, компетентность и дотошность проектировщика.

В итоге получается так:

-3

Помните про габариты и пропорции!

Иногда ко мне приходят клиенты уже со своими идеями и планировками. Они на листе бумаги показывают свои зарисовки и просят сделать примерно так, но в процессе расстановки оказывается, что масштаб мебели прорисован неправильно. Из-за этого в комнате 4 м2 вместились и кровать, и шкаф, и прикроватные тумбы, и даже банкетка у изножья кровати. Реальность не пропустит эти идеи.

Дьявол кроется в деталях
При планировании интерьера важно одновременно учитывать довольно много деталей. Это касается не только мебели, но и светильников, электропроводки, выключателей, напольных материалов, потолочных конструкций, канализации, приточной коммуникации и прочего. Все это нужно продумать до того, как строители приступят к своей работе. Потому что, если придумывать на ходу, последуют бесконечные переделки, а вместе с ними большие денежные потери.

Записаться на бесплатную консультацию

Студия дизайна Олега Когана - создаем интерьеры, в которых хочется жить и работать.

#дизайнинтерьера #дизайнстудия #дизайнерквартиры #дизайнпроектмосква