Добавить в корзинуПозвонить
Найти в Дзене
ЭТО ВАШ ИНТЕРЬЕР

Одинокая женщина в возрасте приобрела "однушку" и сделала в ней замечательный ремонт за 3 месяца. Фотографии «до» и «после» вам понравятся

В жизни каждого человека наступает момент, когда хочется изменить обстановку и создать пространство, в котором будет комфортно и уютно. Для нашей сегодняшней героини этот момент настал, когда она решилась на покупку квартиры. Денег на покупку жилья было немного, поэтому она рассматривала только однокомнатные квартиры. В итоге женщина остановила свой выбор на типичной однокомнатной квартире, которая была расположена в панельном доме, построенном в 60-х годах прошлого века. Однако после покупки планы на эту квартиру изменились в связи с определёнными жизненными обстоятельствами. Теперь она уже предназначалась для сдачи в аренду. Так как интерьер квартиры был в удручающем состоянии, хозяйка решила, что ей необходима помощь профессионала. Она пригласила к себе дизайнера — Надю Ященко. Перед дизайнером стояла непростая задача: создать стильный и функциональный интерьер в квартире, который будет удобен для проживания одного или двух человек. При этом бюджет был ограничен, а сроки на перед
Оглавление

В жизни каждого человека наступает момент, когда хочется изменить обстановку и создать пространство, в котором будет комфортно и уютно. Для нашей сегодняшней героини этот момент настал, когда она решилась на покупку квартиры. Денег на покупку жилья было немного, поэтому она рассматривала только однокомнатные квартиры.

В итоге женщина остановила свой выбор на типичной однокомнатной квартире, которая была расположена в панельном доме, построенном в 60-х годах прошлого века. Однако после покупки планы на эту квартиру изменились в связи с определёнными жизненными обстоятельствами. Теперь она уже предназначалась для сдачи в аренду.

Так как интерьер квартиры был в удручающем состоянии, хозяйка решила, что ей необходима помощь профессионала. Она пригласила к себе дизайнера — Надю Ященко.

Перед дизайнером стояла непростая задача: создать стильный и функциональный интерьер в квартире, который будет удобен для проживания одного или двух человек. При этом бюджет был ограничен, а сроки на переделку составляли не более 5 месяцев.

Проект

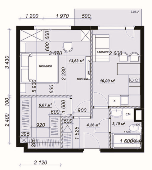
  • Местоположение: г. Москва
  • Площадь квартиры: 38 квадратных метров
  • Владельцы: женщина
  • Сроки ремонта: 3 месяца
-2

Прихожая

Входная зона получилась весьма классической: стены окрашены моющейся светло-серой краской, а для пола выбрали черно-белую плитку, которая придает пространству динамики. Входная дверь была заменена на новую модель с большим зеркальным полотном на внутренней части двери.

-3

Слева от входа расположили небольшую тубму и открытую систему хранения для верхней одежды. Над тумбой находится пробковая доска, за которой скрывается электрический щиток. Это удобное место для размещения фотографий и разных напоминаний.

Кухня

Кухня осталась в своих прежних границах. Дизайнер решила разделить её на две функциональные зоны: кухню и гостиную. Кухонная зона находится сразу при входе. Кухонный гарнитур имеет П-образную форму. Чтобы зрительно не утяжелять пространство, дизайнер расположила верхний ярус только на одной стене. Фасады выполнены в приятном зелёном оттенке.

Фартук кухни выполнен из закалённого стекла, которое легко моется. Вся техника, включая холодильник, встроенная. Рабочая столешница плавно переходит в барную стойку, которая служит не только основной столовой группой, но и выполняет зонирующую функцию.

-5

Что касается отделки, в интерьере квартиры преобладают светлые оттенки. В качестве отделки стен были выбраны обои под покраску. Поскольку квартира маленькая, было решено везде использовать серый оттенок. На полу уложили керамогранит с имитацией деревянной поверхности.

В зоне отдыха на одной из стен расположена фреска, цвет которой гармонирует с цветом фасадов кухонного гарнитура. Именно у этой акцентной стены располагается компактный диванчик, выполненный в синем цвете.

Спальня

В центре комнаты находится большая двуспальная кровать с мягким изголовьем и подъёмным механизмом. С двух сторон от неё установлены небольшие прикроватные тумбочки, а напротив — телевизор. Подоконник, выполненный из мебельного щита, был слегка увеличен и теперь выполняет функцию письменного стола.

Большую часть комнаты было решено превратить в гардеробную. Это позволило сократить количество шкафов и тумб в квартире до минимума.

-9

Ванная комната

Раньше ванная комната и туалет были раздельными, но дизайнер приняла решение об объединении этих двух помещений. В результате был создан функциональный санузел, где разместили полноценную душевую, унитаз, раковину и стиральную машину. Что касается отделки помещения, то здесь использовали два материала: водостойкую краску и керамогранит под мрамор.

-10

В санузле дизайнер искусно внедрила черные элементы, такие как смесители и стильные аксессуары, чтобы подчеркнуть современный стиль и создать выразительный контраст со светлыми стенами, придавая пространству уникальную атмосферу и элегантность.

-11

Если вам понравилась статья, то не забудьте поставить лайк и подписаться, чтобы не пропустить новый материал!

Так же пишите в комментариях, что вам понравилось в этом проекте, а что вызывает сомнения.