Добавить в корзинуПозвонить
Найти в Дзене

Как создать обмерный план в Архикаде, и для чего он нужен в дизайне интерьера

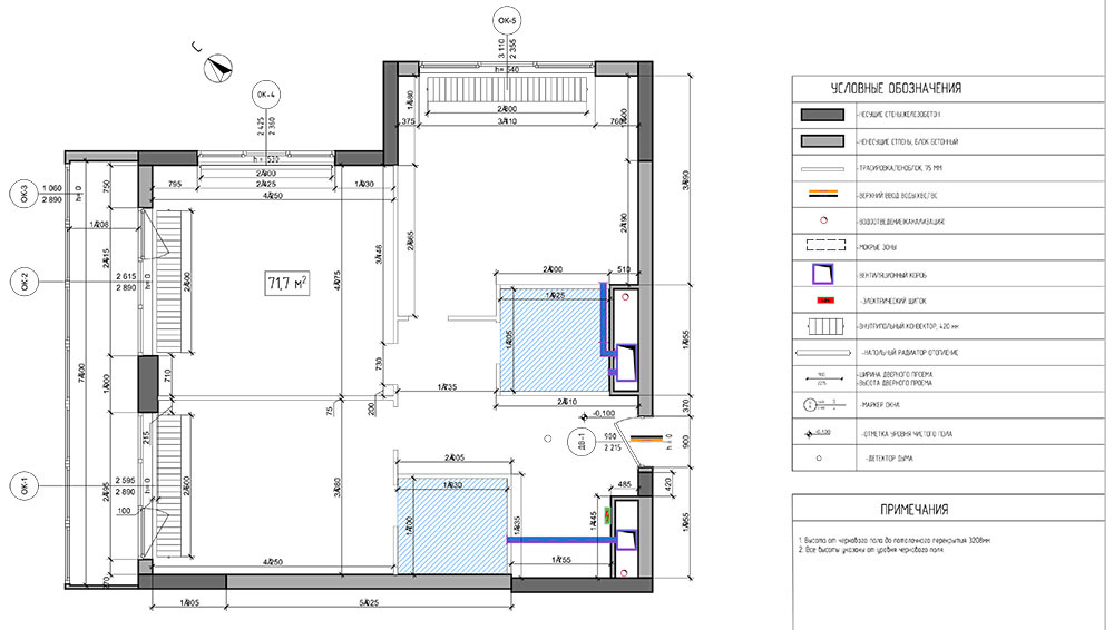
Создание интерьера в Архикад – это сложный и многогранный процесс, который начинается с правильных замеров помещения. Один из ключевых этапов подготовки к проектированию – составление обмерного плана. В программе ArchiCAD обмерный план помогает дизайнерам интерьеров структурировать данные о помещении и заложить прочный фундамент для будущих решений. В этой статье мы разберём, что такое обмерный план, как его создать в Архикаде и для чего он нужен. Обмерный план – это чертёж, на котором отражены все размеры и особенности помещения: длина и ширина стен, высота потолков, расположение дверных и оконных проёмов, колонн, ниш и других конструктивных элементов. Этот план служит основой для дальнейшего проектирования – без него невозможно приступить к созданию дизайн-проекта. На чертеже отображаются: Условные обозначения включают: Примечания: ArchiCAD – это мощный инструмент для создания архитектурных чертежей и 3D-моделей. Создать обмерный план в этой программе можно с помощью следующих шагов:
Оглавление
Курсы дихайна интерьера в Москве
Курсы дихайна интерьера в Москве

Создание интерьера в Архикад – это сложный и многогранный процесс, который начинается с правильных замеров помещения. Один из ключевых этапов подготовки к проектированию – составление обмерного плана. В программе ArchiCAD обмерный план помогает дизайнерам интерьеров структурировать данные о помещении и заложить прочный фундамент для будущих решений. В этой статье мы разберём, что такое обмерный план, как его создать в Архикаде и для чего он нужен.

Что такое обмерный план?

Обмерный план – это чертёж, на котором отражены все размеры и особенности помещения: длина и ширина стен, высота потолков, расположение дверных и оконных проёмов, колонн, ниш и других конструктивных элементов. Этот план служит основой для дальнейшего проектирования – без него невозможно приступить к созданию дизайн-проекта.

Зачем нужен обмерный план?

  1. Точность проекта
    Правильно выполненный обмерный план позволяет учесть реальные габариты помещения и избежать ошибок на этапе проектирования. Например, дизайнер сможет корректно расставить мебель и выбрать подходящие размеры встроенных элементов.
  2. Оптимизация пространства
    На основе обмерного плана можно оценить, как использовать каждый метр площади. Это особенно важно для небольших помещений, где важна каждая деталь.
  3. Расчёт материалов
    Точные замеры помогают правильно рассчитать количество отделочных материалов, что уменьшает риск перерасхода или нехватки.
  4. Координация с другими специалистами
    Обмерный план часто используют строители, сантехники, электрики и другие подрядчики. Он служит единым источником информации о помещении.

Состав обмерного плана

На чертеже отображаются:

  • Стены без учёта штукатурки.
  • Точные размеры стен с указанием толщины, которые позволяют построить полный план помещения.
  • Размеры и высоты дверных и оконных проёмов.
  • Окна с маркировкой, включая высоту от пола до подоконника, ширину и высоту проёма.
  • Мокрые зоны, выделенные штриховкой и с указанием их габаритов.
  • Радиаторы отопления.
  • Стояки водоснабжения и канализации.
  • Вентиляционные шахты.
  • Отметка уровня пола.
  • Общая площадь помещения, выделенная в рамке в центре чертежа.
  • Электрический щиток.
  • Указание направления севера.

Условные обозначения включают:

  • Несущие стены.
  • Межкомнатные перегородки или трассировку.
  • Стояки канализации, ХВС, ГВС.
  • Вентиляционные шахты.
  • Электрический щиток.
  • Мокрые зоны.
  • Отметки уровней пола.
  • Маркировку окон.
  • Радиаторы отопления.

Примечания:

  • Высота от чернового пола до потолочного перекрытия.
  • Высота от чистового пола до потолочного перекрытия.

Как создать обмерный план в Архикаде?

ArchiCAD – это мощный инструмент для создания архитектурных чертежей и 3D-моделей. Создать обмерный план в этой программе можно с помощью следующих шагов:

  1. Настройка проектаОткройте ArchiCAD и создайте новый проект.
    Задайте параметры проекта, такие как масштаб чертежа и высота этажей.
  2. Построение стенВключите инструмент «Стена» и начните строить контуры помещения, следуя реальным замерам.
    Учитывайте толщину стен и точное расположение углов.
  3. Добавление проёмовИспользуйте инструменты «Дверь» и «Окно» для вставки дверных и оконных проёмов. Задайте точные размеры и параметры, указанные в замерах.
  4. Отображение конструктивных элементовЕсли в помещении есть колонны, балки, ниши или другие архитектурные элементы, добавьте их на план. Для этого можно воспользоваться инструментами ArchiCAD или создать элементы вручную.
  5. Проставление размеровВключите инструмент «Размерная линия» и проставьте размеры между ключевыми элементами (например, между стенами, дверными проёмами и оконными блоками). Это сделает обмерный план более информативным.
  6. Создание легенды и обозначенийДобавьте на план условные обозначения (например, указание высоты потолков) и создайте легенду для пояснений.
  7. Финальная проверка и экспортПроверьте точность всех замеров и сохраните обмерный план. Вы можете экспортировать его в формат PDF или DWG для передачи другим специалистам.

Заключение

Обмерный план – это не просто чертёж с цифрами, а важный инструмент, который закладывает основу для успешного дизайн-проекта. С помощью ArchiCAD создание обмерного плана становится более простым и удобным, а проектирование интерьеров – более точным и эффективным.

Помните: чем качественнее будет выполнен обмерный план, тем меньше проблем возникнет на следующих этапах проектирования и ремонта.