Добавить в корзинуПозвонить
Найти в Дзене
DIVAN.RU

Евродвушка 46 кв.м для творческой натуры: много цвета и ретромотивы

Хозяйка этой квартиры — молодая девушка, работает в банковской сфере, увлекается йогой и танцами, любит путешествия. Этот насыщенный цветом интерьер отражает ее характер, активный образ жизни и внутренний мир. Объект: евродвушка 46,08 кв.м, ЖК «Дискавери», г. Екатеринбург Автор проекта: дизайнер Валерия Мироненко, автор съемки: Татьяна Ульянова Бюджет проекта: 2,5 млн рублей «Заказчица хотела получить атмосферу легкости, тепла и уюта: чтобы домой хотелось возвращаться после насыщенного дня, — рассказывает дизайнер. — Чтобы близким, приходящим в гости, было также уютно. Пожелания по цвету: насыщенные теплые оттенки и сочетания цветов, которые встречаются в природе: голубое небо, синее море, желтый песок, свежая зеленая трава, лес в солнечном свете, оранжевый закат». В квартире есть кухня-гостиная, изолированная спальня, лоджия, санузел и прихожая. Квартира сдавалась с отделкой застройщика: лежал ламинат, были наклеены обои, стояли двери и сантехника. Отделку поменяли только в санузле:
Оглавление

Хозяйка этой квартиры — молодая девушка, работает в банковской сфере, увлекается йогой и танцами, любит путешествия. Этот насыщенный цветом интерьер отражает ее характер, активный образ жизни и внутренний мир.

Автор проекта: дизайнер Валерия Мироненко, автор съемки: Татьяна Ульянова
Автор проекта: дизайнер Валерия Мироненко, автор съемки: Татьяна Ульянова

Объект: евродвушка 46,08 кв.м, ЖК «Дискавери», г. Екатеринбург

Автор проекта: дизайнер Валерия Мироненко, автор съемки: Татьяна Ульянова

Бюджет проекта: 2,5 млн рублей

Задачи проекта

«Заказчица хотела получить атмосферу легкости, тепла и уюта: чтобы домой хотелось возвращаться после насыщенного дня, — рассказывает дизайнер. — Чтобы близким, приходящим в гости, было также уютно. Пожелания по цвету: насыщенные теплые оттенки и сочетания цветов, которые встречаются в природе: голубое небо, синее море, желтый песок, свежая зеленая трава, лес в солнечном свете, оранжевый закат».

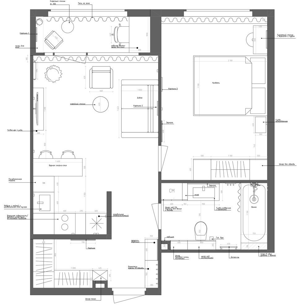
Планировочное решение

В квартире есть кухня-гостиная, изолированная спальня, лоджия, санузел и прихожая. Квартира сдавалась с отделкой застройщика: лежал ламинат, были наклеены обои, стояли двери и сантехника.

Отделку поменяли только в санузле: теперь там новые плитка, сантехника и освещение. В остальных комнатах пократсили стены и потолок, довели до ума электрику.

Планировочное решение и расстановка мебели
Планировочное решение и расстановка мебели

Кухня-гостиная

Зона готовки пестрит яркими цветами. Фасады верхнего яруса кухонного гарнитура заказали в оттенке спелой вишни. Полубарные стулья Меган от divan.ru заказали в насыщенном синем цвете. А в качестве базы — белый нижний ярус и фартук, а также длинная деревянная столешница.

Обратите внимание, как изразцовую плитку на фартуке изящно дополняют ретровыключатели.

Роль обеденного стола отдали барной стойке. Прямо над ней находится ящик для СВЧ-печи — прием освободил место на столешнице.

Гостиную украшает синий диван Нумо от divan.ru. Модель раскладная — хозяйке будет где оставить гостей. В качестве ретроакцентов ТВ-тумба Тайрон с модным принтом «Toile de Jouy» и кресло Гарди в терракотовой рогожке.

➡️Мебель бренда divan.ru в кадре

💥Когда, если не сейчас, воплощать свои мечты об уютном доме. Выбирайте мебель и аксессуары по выгодным ценам на распродаже в divan.ru

-5

Лоджия

Из гостиной есть выход на лоджию — здесь находятся мягкая зона для отдыха и рабочее место с видом на парк. На лоджии использовали зеркальный прием: у терракотовой стены расположили светлый письменный стол Дантон и стул Фентон от divan.ru. Напротив поставили яркую терракотовую кушетку и повесили полки Кливленд на фоне светлой стены.

Спальня

В спальне много «воздуха» и природных оттенков. Зеленые стены, персиковая полоса на стене напротив кровати, мебель и декор из дерева. Над кроватью повесили панно из текстиля и макраме в стиле бохо.

Подбирая мебель в эту комнату, я открыла для себя коллекцию Рошаль от divan.ru: комод и прикроватная тумба со вставками из ротанга “разбавляют” однотонный фон, добавляют фактуры, — рассказывает дизайнер.

➡️Мебель бренда divan.ru в кадре

Санузел

Санузел стал единственным местом в квартире, где полностью поменяли отделку от застройщика: плитку, сантехнику, освещение и электрику. Функционал ванной продумали до мелочей: много мест для хранения, зеркало с подсветкой, тропический душ, унитаз с инсталляцией и гигиеническим смесителем, полотенцесушитель. А также установили «секретный» шкаф, в котором спрятали стиральную машину и водонагреватель. На противоположной стене — шкаф с гладильной доской и бытовыми принадлежностями.

Прихожая

Небольшая, но вместительная прихожая в светлых тонах ежедневно встречает и провожает хозяйку. Ретроакцент в виде обувницы Тайрон дополняет группу мебели во входной зоне. Мягкую банкетку Аймо поставили прямо под вешалкой Кристэн от divan.ru.

==========

Оцените интерьер в комментариях, а если материал понравился — не забудьте поставить лайк👍

🖤divan.ru — не только блог про интерьеры, но и производитель доступной дизайнерской мебели. Ищите новые идеи и переходите на сайт, чтобы воплотить их в жизнь.