Добавить в корзинуПозвонить
Найти в Дзене

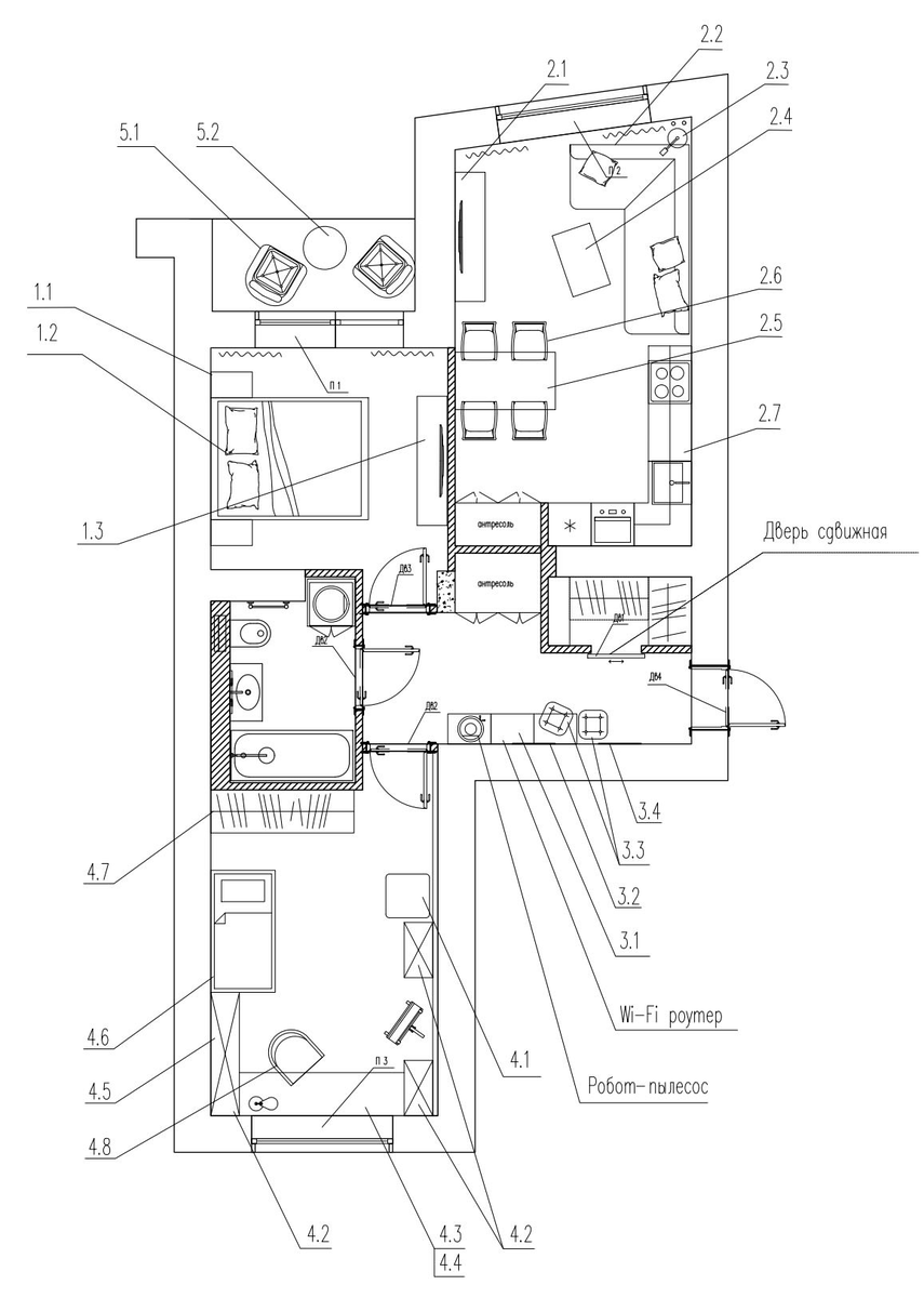
Как обустроить квартиру «распашонку»?

История о том, как, несмотря на ограничения планировки, можно реализовать все пожелания заказчика. Дано: квартира «распашонка», площадью 74 м², г. Ивантеевка (Подмосковье), ЖК «Хлебников». Условия: оставить 2 спальные — для родителей с малышом и для старшего ребёнка. Решение: Такой тип квартиры очень распространённый, и проблема в том, что радикально переделать планировку, чтобы это ещё и законно было, тут сложно из-за расположения санузла. Но есть и плюсы планировки: кухня-гостиная вполне приличных размеров позволила разместить саму кухню, обеденный стол и зону гостиной. — Санузел мы немного расширили за счёт коридора. В итоге там удобно расположилась вся сантехника, включая стиральную и сушильную машины. — Лоджию присоединять не стали. Заказчики хотели оставить там отдельную зону отдыха. — В прихожей предусмотрели зоны для хранения: гардеробную — кладовую, а над проходом в кухню разместили антресоль с доступом и из кухни, и из коридора. — В детской поставили шкаф, большую кровать,

История о том, как, несмотря на ограничения планировки, можно реализовать все пожелания заказчика.

Дано: квартира «распашонка», площадью 74 м², г. Ивантеевка (Подмосковье), ЖК «Хлебников».

Условия: оставить 2 спальные — для родителей с малышом и для старшего ребёнка.

Решение: Такой тип квартиры очень распространённый, и проблема в том, что радикально переделать планировку, чтобы это ещё и законно было, тут сложно из-за расположения санузла.

Но есть и плюсы планировки: кухня-гостиная вполне приличных размеров позволила разместить саму кухню, обеденный стол и зону гостиной.

Чертёж, площадью 74 м², г. Ивантеевка (Подмосковье), ЖК «Хлебников»
Чертёж, площадью 74 м², г. Ивантеевка (Подмосковье), ЖК «Хлебников»

— Санузел мы немного расширили за счёт коридора. В итоге там удобно расположилась вся сантехника, включая стиральную и сушильную машины.

— Лоджию присоединять не стали. Заказчики хотели оставить там отдельную зону отдыха.

— В прихожей предусмотрели зоны для хранения: гардеробную — кладовую, а над проходом в кухню разместили антресоль с доступом и из кухни, и из коридора.

— В детской поставили шкаф, большую кровать, а также просторное рабочее место и мольберт для юного художника. Кроме того, предусмотрели звукоизоляцию стены детской, чтобы не мешать соседям из смежной однушки и наоборот.

Рис.1
Рис.1
Рис.2
Рис.2
Рис.3
Рис.3

Ответ: Этот проект показывает, что даже в условиях ограниченных возможностей планировки можно создать гармоничное и удобное жилое пространство, которое отвечает всем запросам заказчика. 

Главное — не только детально продумать и расписать идею, но и реализовать её, учитывая потребности всех членов семьи. И мы в компании Proektor это умеем.