Добавить в корзинуПозвонить
Найти в Дзене

Эскизный, Архитектурный проект дома 600 м2

Объёмно-планировочное решение (ОПР) на первом этапе проектирования жилого дома направлено на создание комфортной и функциональной среды обитания. ОПР — это совокупность архитектурных и конструктивных решений, которые определяют внутреннее пространство и внешний вид здания . Они включают в себя: При разработке учитывают такие требования, как функциональность, эстетика, экономичность и безопасность. Например, каждое помещение должно иметь чёткое функциональное назначение, а планировка должна быть достаточно гибкой, чтобы адаптироваться к меняющимся потребностям. 3D Визуализация Фасада: Архитектурное Воплощение Замысла. 2 ЭТАП. 3D визуализация фасада – позволяет увидеть архитектурный проект в мельчайших деталях еще до начала строительства. Благодаря реалистичным изображениям, можно оценить сочетание материалов, цветовые решения и игру света и тени, что существенно снижает риск ошибок и непредвиденных расходов. 3D визуализация не просто демонстрирует внешний вид здания, она позволяет
Оглавление

Объёмно-планировочное решение (ОПР) 1 ЭТАП.

Объёмно-планировочное решение (ОПР)
Объёмно-планировочное решение (ОПР)

Объёмно-планировочное решение (ОПР) на первом этапе проектирования жилого дома направлено на создание комфортной и функциональной среды обитания.

План 1го и 2го этажей
План 1го и 2го этажей

ОПР — это совокупность архитектурных и конструктивных решений, которые определяют внутреннее пространство и внешний вид здания . Они включают в себя:

Объёмно-планировочное решение (ОПР)
Объёмно-планировочное решение (ОПР)
  • Планировку помещений: расположение комнат, коридоров, санузлов и других функциональных зон.
  • Форму и размеры помещений: их площадь, высота потолков, пропорции.
  • Связи между помещениями: как помещения связаны друг с другом (коридорами, проходами).
  • Объём здания: его высота, этажность, конфигурация.
Объёмно-планировочное решение (ОПР)
Объёмно-планировочное решение (ОПР)

При разработке учитывают такие требования, как функциональность, эстетика, экономичность и безопасность. Например, каждое помещение должно иметь чёткое функциональное назначение, а планировка должна быть достаточно гибкой, чтобы адаптироваться к меняющимся потребностям.

Объёмно-планировочное решение (ОПР)
Объёмно-планировочное решение (ОПР)

Объёмно-планировочное решение (ОПР)
Объёмно-планировочное решение (ОПР)

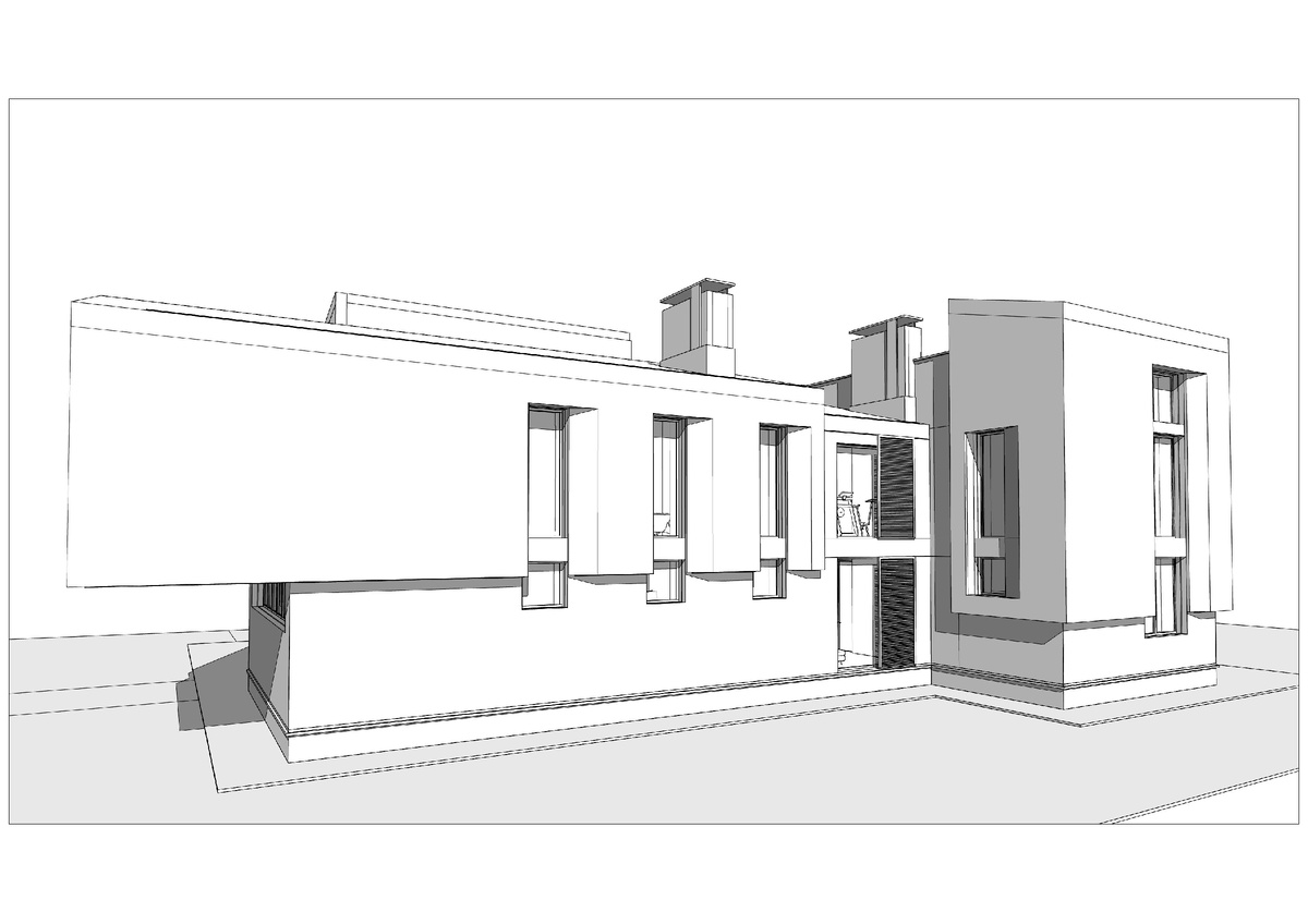
3D Визуализация Фасада: Архитектурное Воплощение Замысла. 2 ЭТАП.

3d  визуализация фасада
3d визуализация фасада

3D визуализация фасада – позволяет увидеть архитектурный проект в мельчайших деталях еще до начала строительства. Благодаря реалистичным изображениям, можно оценить сочетание материалов, цветовые решения и игру света и тени, что существенно снижает риск ошибок и непредвиденных расходов.

3d  визуализация фасада
3d визуализация фасада

3D визуализация не просто демонстрирует внешний вид здания, она позволяет увидеть, как фасад будет взаимодействовать с окружающей средой. Это особенно важно при проектировании в городской среде, где необходимо учитывать существующую архитектуру и ландшафт.

3d  визуализация фасада
3d визуализация фасада

3d  визуализация фасада
3d визуализация фасада
3d  визуализация фасада
3d визуализация фасада

3d  визуализация фасада
3d визуализация фасада

3d  визуализация фасада
3d визуализация фасада

-14

Планы, фасады, разрезы. 3 ЭТАП.

Эскизный проект представляет собой комплект чертежей, который даёт первоначальное представление о том, какой результат должен получиться в итоге строительства.

Некоторые документы, которые входят в ЭП комплект:

  • Пояснительная записка. В ней указывают основные характеристики объекта — размеры, используемые материалы, архитектурный облик здания и т. д..
  • Примерный план. На нём показано, как здание будет расположено на участке относительно уже имеющихся строений и инженерных коммуникаций. 
  • Чертежи фасадов. Они дают представление о будущем облике строения и используемых отделочных материалах.
  • Поэтажные планы. Показывают планировку и примерную площадь каждого помещения. 
  • Разрезы здания. Дают представление о толщине стен и межэтажных перекрытий, высоте помещений, конфигурации кровли.

Состав чертежей может варьироваться в зависимости от технического задания и сложности проектируемого объекта.  

Видео ролик . 4 ЭТАП.

ВИДЕО ПО ЭТОМУ ДОМУ;

ПРИМЕР ЭСКИЗНОГО ПРОЕКТА МОЖНО ПОСМОТРЕТЬ НА НАШЕМ САЙТЕ Architect-rs.com

СВЯЗАТЬСЯ С НАМИ МОЖНО ЧЕРЕЗ ФОРМУ НА САЙТЕ Architect-rs.com