Добавить в корзинуПозвонить
Найти в Дзене
GALLYAMV

Доступный шаг в архитектуре и дизайне: разбор типового эконом-варианта дома

Привет! Это мой первый пост, и я рада начать делиться с вами мыслями об архитектуре и дизайне. Здесь я буду разбирать популярные планировки, анализировать их плюсы и минусы, давать советы по строительству и интерьеру.  Сегодня поговорим о типовом эконом-варианте дома – одном из самых востребованных проектов среди тех, кто берет жилье в ипотеку или строит дом с ограниченным бюджетом. Эти проекты привлекают доступной ценой и простотой, но действительно ли они удобны для жизни? Давайте разберем их подробнее.  Что предлагает типовой проект?  Обычно такой дом – это компактное строение площадью от 80 до 120 м², чаще всего с простой геометрией (прямоугольник или квадрат), двускатной крышей и стандартным набором помещений.  Основные характеристики:  1️⃣Гостиная, совмещенная с кухней – в таком формате пространство кажется больше, а зонирование можно выделить мебелью и освещением.  2️⃣2–3 спальни – минимальный, но достаточный набор для семьи с детьми.  3️⃣Один или два санузла – если планиров

Привет! Это мой первый пост, и я рада начать делиться с вами мыслями об архитектуре и дизайне. Здесь я буду разбирать популярные планировки, анализировать их плюсы и минусы, давать советы по строительству и интерьеру. 

Сегодня поговорим о типовом эконом-варианте дома – одном из самых востребованных проектов среди тех, кто берет жилье в ипотеку или строит дом с ограниченным бюджетом. Эти проекты привлекают доступной ценой и простотой, но действительно ли они удобны для жизни? Давайте разберем их подробнее. 

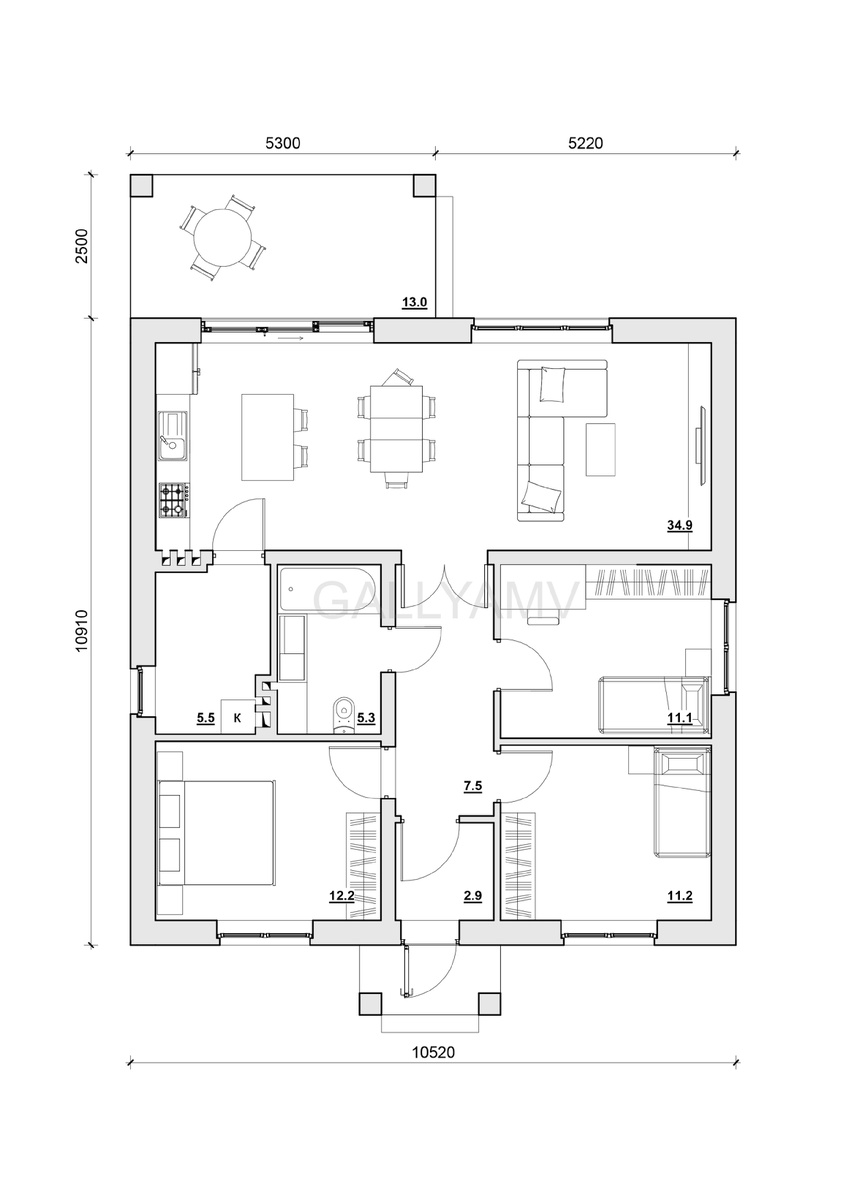
Что предлагает типовой проект? 

Вариант отделки фасада типового дома
Вариант отделки фасада типового дома

Обычно такой дом – это компактное строение площадью от 80 до 120 м², чаще всего с простой геометрией (прямоугольник или квадрат), двускатной крышей и стандартным набором помещений. 

Планировка дома
Планировка дома

Основные характеристики: 

1️⃣Гостиная, совмещенная с кухней – в таком формате пространство кажется больше, а зонирование можно выделить мебелью и освещением. 

2️⃣2–3 спальни – минимальный, но достаточный набор для семьи с детьми. 

3️⃣Один или два санузла – если планировка удачная, будет отдельный гостевой туалет, но чаще всего в эконом-вариантах только один санузел. 

4️⃣Простая конструкция крыши и фасада – чем меньше сложных узлов, тем дешевле строительство. 

Такие дома действительно доступны по цене, но комфортность их эксплуатации зависит от множества факторов. 

Плюсы такой планировки 

Доступность – чем проще дом, тем дешевле материалы и работа строителей. 

Быстрота строительства – такие дома можно возвести за один сезон, особенно если использовать современные технологии (например, каркасное или газобетонное строительство). 

Экономия на отоплении – компактные дома с продуманным утеплением требуют меньше энергии на обогрев. 

Простота в эксплуатации – небольшая площадь снижает расходы на содержание, уборку и ремонт. 

Универсальность – такой дом подойдет как для молодой семьи, так и для пожилых людей, которым не нужна большая площадь. 

Но вместе с этим есть и недостатки, которые важно учитывать. 

Минусы, о которых важно знать 

Маленькие комнаты – в попытке сэкономить закладываются минимальные размеры помещений, что может быть неудобно для жизни.

Один санузел на всех – если в доме живет семья из 3–4 человек, это может вызвать неудобства, особенно утром. 

Маленький тамбур и узкий коридор.

Отсутствие кладовой и гардеробной – без дополнительных зон хранения со временем накапливается хаос(к счастью в нашей планировке есть котельная, которая отчасти может использоваться как кладовка для кухни).

Типовой внешний вид – многие дома выглядят однообразно, но это можно исправить за счет фасадных решений. 

Понимая эти моменты заранее, можно продумать, как улучшить планировку или предусмотреть изменения еще на стадии проектирования. 

Вид со стороны двора
Вид со стороны двора

Типовой дом – это хорошая отправная точка, но его всегда можно доработать под себя. В следующих постах я разберу, как адаптировать такие проекты, какие интерьерные решения подойдут для небольших пространств и как сделать дом не только удобным, но и стильным. 

А вы сталкивались с типовыми проектами? Что в них нравится, а что хотелось бы изменить? Делитесь своими мыслями в комментариях!