Найти в Дзене
GREY HOUSE

Приглашаем на просмотр дома 8 и 9 марта

Дом по проекту Химос с 2-мя спальнями. Место просмотра:📍П. Семейный Некст 2, Солнечногорский р-н, Московская обл. Запись на просмотр обязательна! 1. Бригады: постоянные, история строительства (фотоотчеты), можно выбрать понравившуюся бригаду, можно посетить строящиеся объекты, почитать отзывы клиентов 2. Документация: детальная смета, чертежи дома в соответствии с нормами, разработанные конструктором 3. Премиальное качество и разумная цена Стоимость дома - https://grey-house.ru/object/next/ ***
Все новости читайте в нашем телеграм-канале Подписывайтесь на нашу группу Вконтакте И, конечно же, подписывайтесь на нас в «Дзене» Наши контакты:
Телефон: 8-495-504-71-33
mail@grey-house.ru
Сайт: grey-house.ru
Оглавление

Дом по проекту Химос с 2-мя спальнями.

Место просмотра:📍П. Семейный Некст 2, Солнечногорский р-н, Московская обл.

Запись на просмотр обязательна!

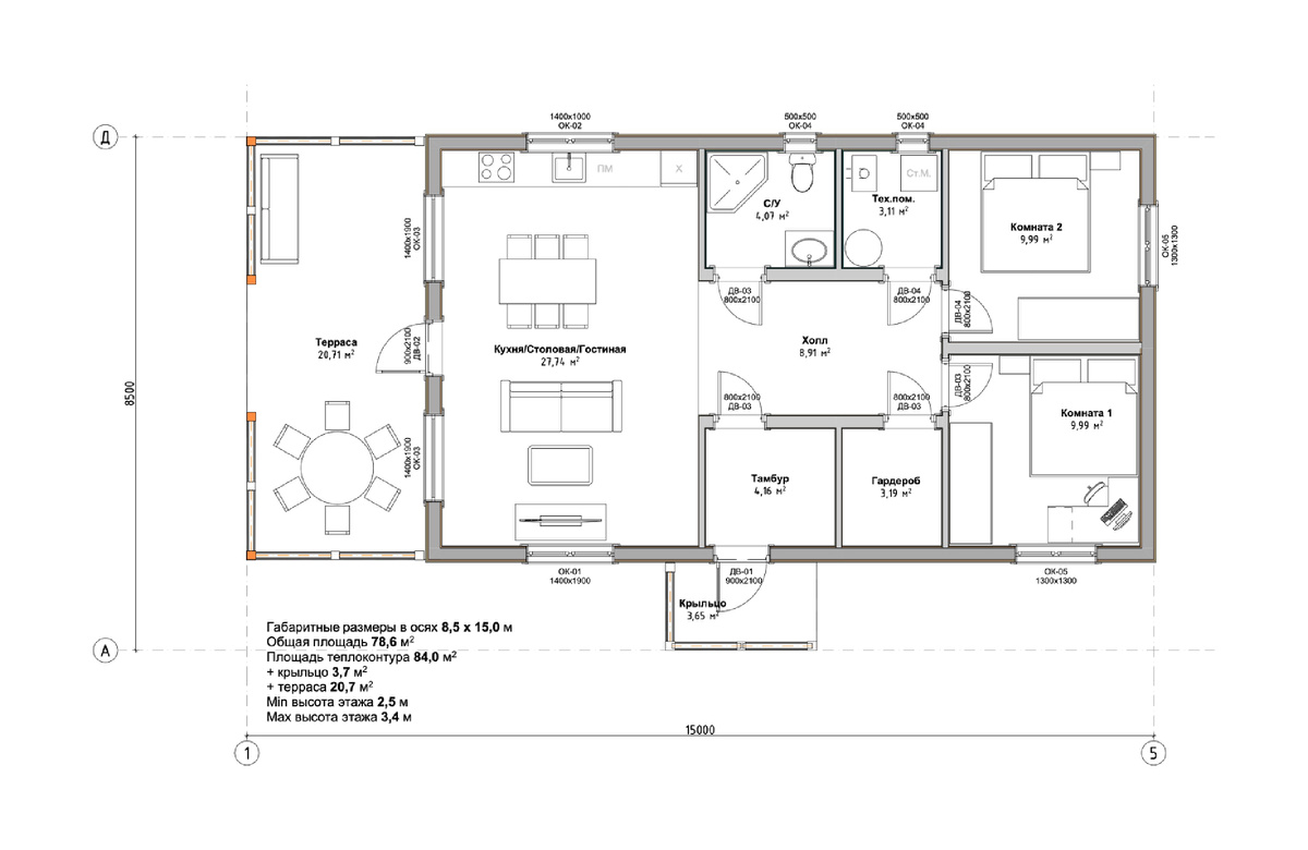
Планировка дома
Планировка дома

Фото дома

-2
-3
-4
-5
-6
-7

Комплектация дома для круглогодичного проживания с внутренней отделкой

  • Фундамент - Ж/б сваи 150х150х3000мм
  • Сетка от грызунов
  • Каркас дома сухой строганный 35х195мм
  • Ветрозащита - JUTAVEK 115
  • Пароизоляция Ютафол Н110+скотч Delta
  • Отделка снаружи - скандинавская доска 21мм с заводской покраской
  • Утепление - пол и кровля - 200 мм Кнауф, наружные стены 200 мм Технониколь Роклайт, перегородки 100 мм Кнауф
  • Внутренняя отделка: стены и потолок евровагонка, пол - ОСП
  • Отделка пола на террасе лиственницей 28мм
  • Кровля - Металлочерепица 0,45мм
  • Окна ПВХ Rehau Grazio толщиной 60мм двойной стеклопакет
  • Дверь входная - ПВХ Rehau толщиной 60мм
  • Вентиляционный выход на кровлю в кухне и с/у: утепленный Vilpe D125мм 2 шт.

Наши преимущества:

1. Бригады: постоянные, история строительства (фотоотчеты), можно выбрать понравившуюся бригаду, можно посетить строящиеся объекты, почитать отзывы клиентов

2. Документация: детальная смета, чертежи дома в соответствии с нормами, разработанные конструктором

3. Премиальное качество и разумная цена

Стоимость дома - https://grey-house.ru/object/next/

***
Все новости читайте в нашем телеграм-канале

Подписывайтесь на нашу группу Вконтакте

И, конечно же, подписывайтесь на нас в «Дзене»

Наши контакты:
Телефон:
8-495-504-71-33
mail@grey-house.ru
Сайт:
grey-house.ru