Найти в Дзене

Проект одноэтажного дома из газобетона 90 м2 с террасой

Проект этого дома наши архитекторы и проектировщики разработали самостоятельно. Это самый популярный проект среди наших заказчиков: его покупают примерно 15-20 раз в месяц. Почему же он так популярен? Давайте посмотрим. Каждая комната имеет оптимальную площадь: это создает уютную и функциональную обстановку внутри дома. Данный проект частного дома строится из газобетона. Этот материал обеспечивает надежность и долговечность конструкции. Газобетон имеет хорошую теплоизоляцию, помогает сохранить комфортную температуру внутри дома в любое время года. Добавим, что газобетон выбирают чаще всего еще по одной причине: он бюджетнее кирпича и при этом лишь немного уступает ему в свойствах. Она является отличным дополнением к дому. Здесь вы сможете проводить свободное время на свежем воздухе, наслаждаться красивыми видами и природой. Терраса идеальна для проведения семейных вечеров и встреч с друзьями. Заметим, что мы разработали проект в один этаж не случайно. В двухэтажных домах многих заказ
Оглавление

Проект этого дома наши архитекторы и проектировщики разработали самостоятельно. Это самый популярный проект среди наших заказчиков: его покупают примерно 15-20 раз в месяц.

Почему же он так популярен? Давайте посмотрим.

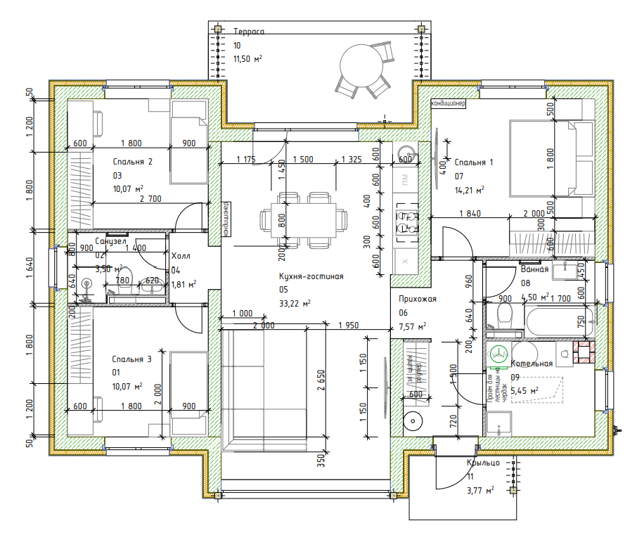
Планировка дома:

  • три изолированные спальни,
  • два санузла,
  • ванная комната,
  • помещение под котельную,
  • терраса.

Каждая комната имеет оптимальную площадь: это создает уютную и функциональную обстановку внутри дома.

-2

Материал

Данный проект частного дома строится из газобетона. Этот материал обеспечивает надежность и долговечность конструкции. Газобетон имеет хорошую теплоизоляцию, помогает сохранить комфортную температуру внутри дома в любое время года.

Добавим, что газобетон выбирают чаще всего еще по одной причине: он бюджетнее кирпича и при этом лишь немного уступает ему в свойствах.

Терраса

Она является отличным дополнением к дому. Здесь вы сможете проводить свободное время на свежем воздухе, наслаждаться красивыми видами и природой. Терраса идеальна для проведения семейных вечеров и встреч с друзьями.

-3

Заметим, что мы разработали проект в один этаж не случайно. В двухэтажных домах многих заказчиков "напрягают" лестницы. Одни считают, что носить вещи с этажа на этаж проблематично. Другие хотят обезопасить своих детей. Но большинство принимают решение о строительстве одноэтажного дома по причине экономии. Достройка второго этажа — деньги немаленькие. Плюс время.

-4

Посмотрите, каков красавец у нас получился! Согласны?

Компания «Пионер» строит дома по всей России, и уже реализовала более 332 проектов. Мы на рынке строительства загородной недвижимости с 2017 года. Нам и нашим проектным решениям можно доверять!

Оставляйте комментарии-вопросы по этому проекту. Подписывайтесь на наш канал и получайте еще больше информации о современном строительстве загородных домов.