Найти в Дзене
Все о ремонте квартир

ИДЕАЛЬНО! Ремонт квартиры в «сталинке» - фото до и после

Это лучшая квартира в «сталинском» доме, которую я видела за последнее время. Мне понравилось то, что здесь дизайнер Ольга Цурикова смогла сохранить не только множество старинных предметов мебели и других ретро вещей, но и саму аутентичную атмосферу исторического дома. Например, входную дверь сделали новую, но по точным эскизам оригинальной. И даже приятный оттенок синего в прихожей, появился не просто так, этот цвет задал старинный звонок, который мы видим над дверью. 2-комн. Квартира 56 м. кв. в Москве досталась от бабушки по наследству, некоторое время стояла пустой и в ней никто не жил. И вот в 2024 году внучка решила сделать здесь капитальный ремонт и вместе с супругом переехать в нее на постоянное место жительство. С дизайнером Ольгой Цуриковой заказчица познакомилась по рекомендации коллеги по работе и, заключила с ней договор на дизайн-проект «под ключ». То есть после согласования планировочного решения и визуализации, Ольга полностью взяла на себя сопровождение ремонта, компле
Оглавление

Это лучшая квартира в «сталинском» доме, которую я видела за последнее время. Мне понравилось то, что здесь дизайнер Ольга Цурикова смогла сохранить не только множество старинных предметов мебели и других ретро вещей, но и саму аутентичную атмосферу исторического дома.

Например, входную дверь сделали новую, но по точным эскизам оригинальной. И даже приятный оттенок синего в прихожей, появился не просто так, этот цвет задал старинный звонок, который мы видим над дверью.

2-комн. Квартира 56 м. кв. в Москве досталась от бабушки по наследству, некоторое время стояла пустой и в ней никто не жил. И вот в 2024 году внучка решила сделать здесь капитальный ремонт и вместе с супругом переехать в нее на постоянное место жительство.

С дизайнером Ольгой Цуриковой заказчица познакомилась по рекомендации коллеги по работе и, заключила с ней договор на дизайн-проект «под ключ». То есть после согласования планировочного решения и визуализации, Ольга полностью взяла на себя сопровождение ремонта, комплектацию проекта и оформление интерьера вплоть до декорирования.

По словам Ольги, заказчица ни разу не была в квартире с начала ремонта и до того момента, когда были сделаны фото квартиры.

Ольга сама отмывала раритетные предметы: вазочки, светильники, звонок, книги и т. д., что-то окрашивала, что-то отдавала на реставрацию. И благодаря ее трепетному отношению к старинным вещам и потрясающему вкусу, квартира заиграла новыми красками той эпохи – наших дедушек и бабушек.

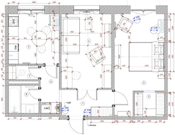
Планировку в квартире не меняли, единственное на месте спальни оформили гостиную, а соответственно спальня переехала в прежнюю гостиную. И так как место позволяло, в новой спальне организовали гардеробную.

План квартиры после ремонта и установки мебели
План квартиры после ремонта и установки мебели

До ремонта квартира была в запущенном состоянии, но не нам судить – иногда люди преклонного возраста не позволяют родственникам ни то, чтобы делать ремонт, но и даже наводить порядок…

В процессе ремонта: демонтировали все старые покрытия с пола, стен, потолка; залили стяжку, выровняли и подготовили поверхности стен и потолка под покраску; заменили все коммуникации; установили новые межкомнатные двери и окна - ориентируясь на оригинальные, на пол в прихожей и кухне сделали плитку, в комнатах паркетную доску.

Начнем с прихожей, про дверь я уже рассказала, но здесь есть еще кое-что интересное. Вешалка и даже шляпа, которую мы видим на ней – это все досталось по наследству. Ольга все отмыла, почистила и подарила им новую жизнь.

-3
Этикетка на подкладке шляпы
Этикетка на подкладке шляпы

Кстати, этот проект Ольга назвала «С любовью к наследию!»

Пуф и консоль  - это уже современные элементы, которые прекрасно вписались в интерьер и отлично смотрятся в композиции с ретро-телефоном и хрустальной вазой бабушки
Пуф и консоль - это уже современные элементы, которые прекрасно вписались в интерьер и отлично смотрятся в композиции с ретро-телефоном и хрустальной вазой бабушки

Кухня

Так выглядела кухня до ремонта

-6
-7

И фото после ремонта

Вся посуда, которую мы видим на фото - осталась от бабушки. В квартире, по словам Ольги, было очень много хрусталя.
Вся посуда, которую мы видим на фото - осталась от бабушки. В квартире, по словам Ольги, было очень много хрусталя.
Красивое сочетание персикового и голубого на фоне теплого белого оттенка.
Красивое сочетание персикового и голубого на фоне теплого белого оттенка.
Какой красивый старинный буфет, он остался в первозданном виде, заменили лишь столешницу
Какой красивый старинный буфет, он остался в первозданном виде, заменили лишь столешницу
Стулья также остались от старшего поколения, они были в хорошем состоянии, единственное претянули обивку.
Стулья также остались от старшего поколения, они были в хорошем состоянии, единственное претянули обивку.

Гостиная

Здесь очень светло и уютно. Настоящий персидский ковер, который раньше висел на стене, после чистки, переселился на пол в зону отдыха к современному дивану. Хрустальные люстры, как и назначение комнат поменялись местами из гостиной в спальню и наоборот.

Розетку и карниз на потолок, конечно, установили новые, но в духе той эпохи
Розетку и карниз на потолок, конечно, установили новые, но в духе той эпохи

Старинный книжный шкаф тоже занял достойное место в новом интерьере

Шикарная библиотека в шкафу - прекрасное наследство для внуков и правнуков
Шикарная библиотека в шкафу - прекрасное наследство для внуков и правнуков
Какая же красивая и качественная была мебель - она может прослужить еще многие годы.
Какая же красивая и качественная была мебель - она может прослужить еще многие годы.
С какой любовью, Ольга декорировала эту квартиру, даже старые фотографии она бережно оформила в рамики и повесила на видное место. Думаю, родственники оценят все это и сохранят памятные вещи, которые будут переходить и дальше от поколения к поколению
С какой любовью, Ольга декорировала эту квартиру, даже старые фотографии она бережно оформила в рамики и повесила на видное место. Думаю, родственники оценят все это и сохранят памятные вещи, которые будут переходить и дальше от поколения к поколению
Красота да и только
Красота да и только

Спальня

До ремонта

-17

Это комната меня просто очаровала: окно, люстра, панно над изголовьем кровати, трюмо...

Очень классно сюда подошла и модель кровати и цвет, и текстиль
Очень классно сюда подошла и модель кровати и цвет, и текстиль
Кстати, это панно Ольга сделала сама, она в квартире нашла салфетку, которую возможно вышивала бабушка, отстирала ее, погладила, купила рамку со стеклом и покрасила.
Кстати, это панно Ольга сделала сама, она в квартире нашла салфетку, которую возможно вышивала бабушка, отстирала ее, погладила, купила рамку со стеклом и покрасила.
Трюмо - это тоже бабушкино наследство
Трюмо - это тоже бабушкино наследство
Прикроватная тумба из одного комплекта с трюмо, настольная лампа, книга - это все было в квартире.
Прикроватная тумба из одного комплекта с трюмо, настольная лампа, книга - это все было в квартире.
Арочная форма входа в гардеробную повторяет форму окна с выходом на балкон.
Арочная форма входа в гардеробную повторяет форму окна с выходом на балкон.
На стеллаже при входе в спальню предметы, которыми не так давно пользовались дедушка и бабушка. Ностальгия... - у меня тоже есть несколько вещей, которые остались от любимой бабулечки, я ими очень дорожу, думаю, как и многие из нас.
На стеллаже при входе в спальню предметы, которыми не так давно пользовались дедушка и бабушка. Ностальгия... - у меня тоже есть несколько вещей, которые остались от любимой бабулечки, я ими очень дорожу, думаю, как и многие из нас.

Ванная комната

Здесь ванну с раковиной поменяли местами. Тумбу купили на Авито - мебель 1977 года, ее окрасили в красивый ягодный цвет и покрыли лаком. Очень красиво она смотрится на фоне белой плитки 15х15 см. "Керама Марацци" с интересным принтом в стиле ретро от дизайнера Дарьи Васильковой.

Ванна чугунная
Ванна чугунная
Зеркало и светильник раньше висели в прихожей.
Зеркало и светильник раньше висели в прихожей.

Санузел

Нижнюю часть стены отделали плиткой, верх обоями. За дверками над унитазом находится узел коммуникаций и водонагреватель.

-26
Так выглядит маленький коридор из которого расположенны двери в санузлы и кухню.
Так выглядит маленький коридор из которого расположенны двери в санузлы и кухню.

На мой взгляд квартира получилась прекрасной, уютной, атмосферной. Интересно, а вам нравятся такие интерьеры, где царит эпоха прошлого века?!

Спасибо, что заглянули в мою студию! Понравилось ставьте лайки, пишите комментарии! И не забывайте подписываться!