Добавить в корзинуПозвонить
Найти в Дзене
GREY HOUSE

Строительство каркасного дома по льготной ипотеке с использованием эскроу-счета

Стартовало строительство дома по проекту Химос 2 - Площадь теплоконтура - 84 м2 - Габариты: 8,5х15 м - Высота потолка: 2,5 - 3,4 м - Количество спален - 3 - Терраса- 20 м2 Наши преимущества: 1. Бригады: постоянные, история строительства (фотоотчеты), можно выбрать понравившуюся бригаду, можно посетить строящиеся объекты, почитать отзывы клиентов
2. Документация: детальная смета, чертежи дома в соответствии с нормами, разработанные конструктором
3. Премиальное качество и разумная цена Стоимость дома - https://grey-house.ru/object/novinskoe/ ***
Все новости читайте в нашем телеграм-канале Подписывайтесь на нашу группу Вконтакте И, конечно же, подписывайтесь на нас в «Дзене» Наши контакты:
Телефон: 8-495-504-71-33
mail@grey-house.ru
Сайт: grey-house.ru
Оглавление

Стартовало строительство дома по проекту Химос 2

- Площадь теплоконтура - 84 м2

- Габариты: 8,5х15 м

- Высота потолка: 2,5 - 3,4 м

- Количество спален - 3

- Терраса- 20 м2

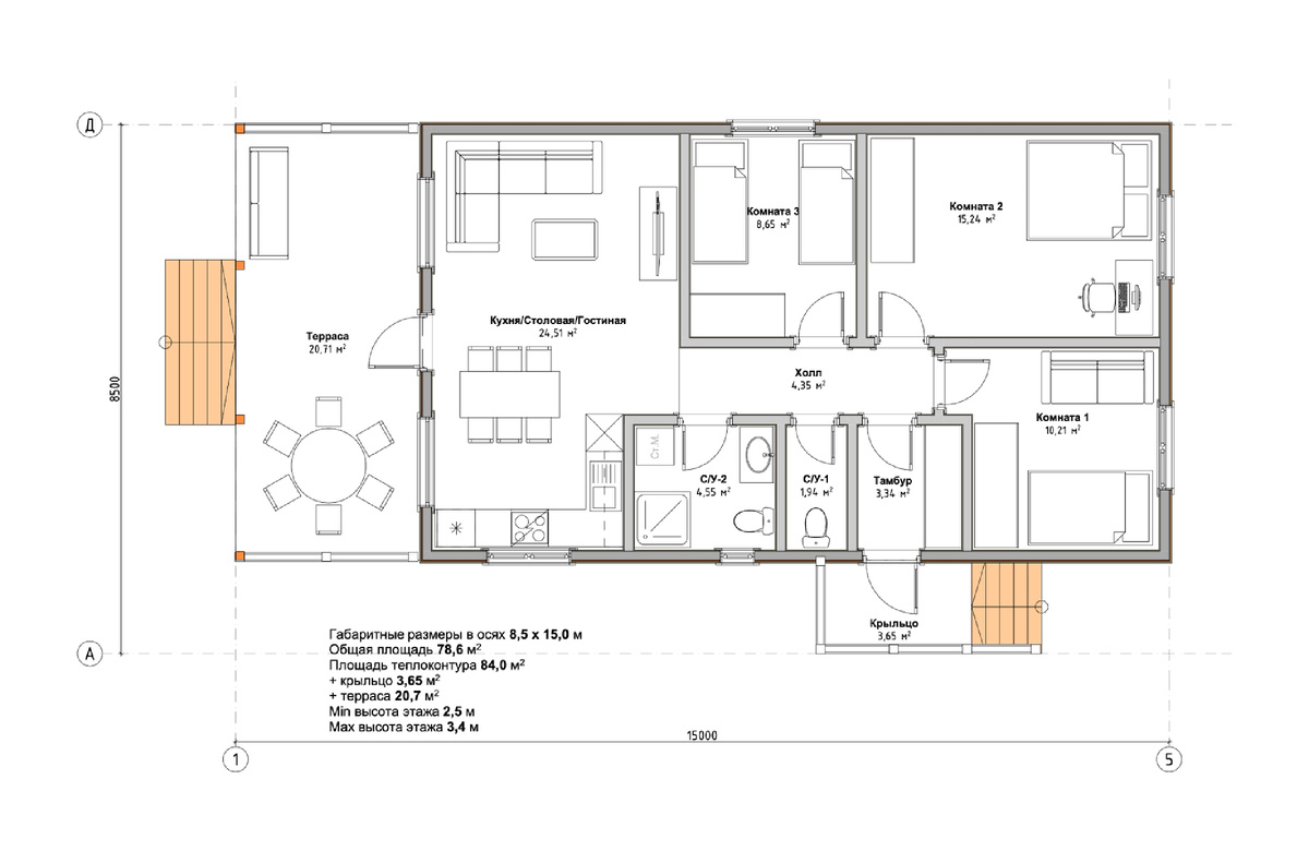
Планировка дома

Планировка дома Химос
Планировка дома Химос

Фотоотчет со стройки

Комплектация дома:

  • Фундамент - Железобетонные сваи 150х150х4000мм
  • Защитная сетка от грызунов
  • Каркас дома сухой строганный 45х195мм
  • Ветрозащита JUTAVEK 115
  • Пароизоляция Ютафол Н110+скотч Delta
  • Кровля - металлочерепица GrandLine 0,45 мм PE, подшивка весов кровли софиты Decke
  • Отделка снаружи - скандинавския доска с заводской покраской
  • Утепление Технониколь Роклайт - пол и кровля и наружние стены - 200 мм, перегородки 100 мм
  • Внутренняя отделка: стены и потолок имитация бруса 16 мм "АБ", пол - ОСП 22 мм
  • Отделка пола на террасе лиственницей толщиной 28мм
  • Кровля - Металлочерепица толщиной 0,45мм
  • Окна и входная дверь ПВХ толщиной 70мм
  • Ограждение террасы доска 45х95-145 мм
  • Ступени с поручнем
  • Снегозадержатели
  • Водосточная система
  • Электрика скрытая проводка 80 точек
  • Вентиляционный выход на кровлю

Наши преимущества:

1. Бригады: постоянные, история строительства (фотоотчеты), можно выбрать понравившуюся бригаду, можно посетить строящиеся объекты, почитать отзывы клиентов
2. Документация: детальная смета, чертежи дома в соответствии с нормами, разработанные конструктором
3. Премиальное качество и разумная цена

Стоимость дома - https://grey-house.ru/object/novinskoe/

***
Все новости читайте в нашем телеграм-канале

Подписывайтесь на нашу группу Вконтакте

И, конечно же, подписывайтесь на нас в «Дзене»

Наши контакты:
Телефон:
8-495-504-71-33
mail@grey-house.ru
Сайт:
grey-house.ru