Добавить в корзинуПозвонить
Найти в Дзене
Компания «Факел»

Аспирация для деревообработки: система, проектирование, фильтры и обслуживание

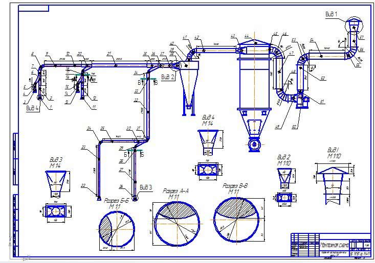
Аспирация для деревообработки — это система удаления древесной пыли, стружки и опилок, образующихся при работе деревообрабатывающих станков. Она необходима для поддержания чистоты в цехе, продления срока службы оборудования и защиты работников от вдыхания вредных частиц. Схема аспирации для деревообработки включает следующие компоненты: Основными источниками загрязнения являются деревообрабатывающие станки, ручные рабочие места, а также транспортные линии и конвейеры, на которых возможен выброс частиц в цех. Воздухозаборные магистрали соединяют эти зоны с основными элементами системы. К ним относятся воздуховоды, фильтры и вентиляторы, которые создают необходимый поток. В начале системы устанавливаются заборные устройства – отсосные колпаки, кожухи или трубопроводы, плотно прилегающие к рабочим узлам станков. Это позволяет захватывать стружку и пыль сразу в момент их образования, предотвращая их распространение. Для грубой очистки используются циклоны. Затем поток направляется в рукавн
Оглавление

Аспирация для деревообработки — это система удаления древесной пыли, стружки и опилок, образующихся при работе деревообрабатывающих станков. Она необходима для поддержания чистоты в цехе, продления срока службы оборудования и защиты работников от вдыхания вредных частиц.

Деревообрабатывающий цех
Деревообрабатывающий цех

Основные элементы и работа системы

Схема аспирации для деревообработки включает следующие компоненты:

  • Фильтры (рукавные, картриджные, стружкоотсосы) – задерживают мелкие частицы пыли.
  • Воздуховоды для аспирации деревообработки – транспортируют пыль от станков к фильтрующему оборудованию.
  • Вентиляторы – создают тягу для перемещения отходов.
  • Циклоны – отделяют крупные частицы стружки от воздуха.
  • Контейнеры или мешки для сбора отходов – накапливают собранные опилки.

Основными источниками загрязнения являются деревообрабатывающие станки, ручные рабочие места, а также транспортные линии и конвейеры, на которых возможен выброс частиц в цех.

Воздухозаборные магистрали соединяют эти зоны с основными элементами системы. К ним относятся воздуховоды, фильтры и вентиляторы, которые создают необходимый поток. В начале системы устанавливаются заборные устройства – отсосные колпаки, кожухи или трубопроводы, плотно прилегающие к рабочим узлам станков. Это позволяет захватывать стружку и пыль сразу в момент их образования, предотвращая их распространение.

Для грубой очистки используются циклоны. Затем поток направляется в рукавные или картриджные фильтры, где задерживается мелкодисперсная пыль. Очищенный воздух может возвращаться обратно в цех или выбрасываться наружу через вентиляцию.

Центром системы является вентиляторный блок, обеспечивающий стабильный поток газа. Производительность вентилятора рассчитывается исходя из количества точек аспирации, длины воздуховодов и уровня сопротивления фильтров. Для эффективной работы важно соблюдать баланс давления и регулярно чистить фильтры, чтобы не снижалась их пропускная способность.

Дополнительно аспирация может включать в себя устройства искрогашения и пожаротушения, особенно если в цехе работают с сухой древесиной, где высок риск самовозгорания частиц. В правильно спроектированной схеме аспирации все элементы работают в комплексе, обеспечивая чистоту воздуха и предотвращая скопление горючей пыли в помещении.

Виды аспирационных систем

  • Мобильные (передвижные) — подходят для небольших мастерских.
  • Стационарные (централизованные) — используются на крупных производствах.

Преимущества

✅ Уменьшение запылённости и улучшение условий труда.

✅ Снижение риска возгорания древесной пыли.

✅ Улучшение работы станков (меньше засоров и перегрева).

✅ Соответствие санитарным и экологическим нормам.

Проектирование

Проект аспирации деревообрабатывающего цеха разрабатывают специалисты в области промышленной вентиляции и экологии. В процессе участвуют инженеры-проектировщики, экологи, конструкторы.

Проект
Проект

Для разработки необходимо:

Провести анализ производственного помещения (размеры, расположение станков, особенности воздухообмена).

  1. Определить объем отходов, образующихся при деревообработке.
  2. Выбрать тип фильтрации и способы удаления отходов.
  3. Разработать схему воздуховодов, учитывая оптимальные маршруты для снижения потерь давления.
  4. Рассчитать необходимую мощность вентилятора.
  5. Подготовить чертежи и техническую документацию для согласования и монтажа.

Расположение компонентов

Центральный фильтрующий модуль размещается в отдельном помещении или в цеху. Воздуховоды прокладываются над станками с минимальными изгибами для снижения сопротивления. Контейнеры для сбора отходов располагаются в удобном месте для выгрузки и утилизации.

Требования к монтажу и эксплуатации

  • Установить датчики давления для контроля работы.
  • Проводить регулярное обслуживание пылеуловителей и контейнеров.
  • Избегать скопления пыли в воздуховодах.
  • Учитывать пожарную безопасность: предусмотреть искрогасители.

Проект системы аспирации для деревообработки разрабатывается индивидуально под предприятие и может дополнительно включать: экономический расчёт, оценку энергопотребления, интеграцию с производством, автоматизацию и управление, а также смету и сроки реализации.

Расчет

Расчет аспирации деревообработки включает 5 ключевых этапов:

  1. Определение объемов удаляемого воздуха. Для этого оценивают, сколько пыли и стружки выделяет каждое деревообрабатывающее оборудование. Исходя из этих данных, рассчитывают общий объем воздуха, который необходимо удалить из цеха.
  2. Выбор скорости движения воздуха в воздуховодах. Стружка и опилки требуют высокой скорости, чтобы не оседать внутри труб. Пыль можно транспортировать при меньших скоростях. Исходя из этих параметров, подбирается оптимальный диаметр воздуховодов.
  3. Расчет длины и потерь давления в воздуховодах. Важно учитывать, что чем длиннее система и больше в ней изгибов, тем большее сопротивление создается, требуя более мощного вентилятора.
  4. Выбор пылеуловителей. Если отходы в основном крупные, устанавливаются циклоны. Для мелкой пыли используют рукавные или картриджные агрегаты.
  5. Определение мощности вентилятора. Она зависит от количества удаляемого воздуха, длины воздуховодов, количества фильтров и сопротивления системы. Чем больше потерь давления, тем мощнее должен быть вентилятор.

Расчет аспирации деревообрабатывающего цеха должен производиться только специалистами в сфере вентиляции и очистки воздуха. Неверные данные, как правило, приводят к авариям. Их устранение требуют новых финансовых вложений.

Пылеуловители

Качественная аспирация деревообрабатывающих цехов удаляет 99,9% пыли из воздуха. Подбор фильтров здесь играет важную роль, так как это один из главных элементов системы. При выборе установки ориентироваться следует не только на стоимость, но и на технические характеристики аппаратов, которые рассчитываются индивидуально.

После оценки состава и свойств загрязнённой газовоздушной смеси следует подобрать аспирационные установки.

Циклоны

Циклонный пылеулавливающий агрегат для деревообработки применяется для отделения крупных частиц, таких как опилки, стружка и древесная щепа.

Аппараты работают по принципу центробежной силы: поток газа закручивается, и более тяжелые частицы оседают в бункере. Обладают высокой пропускной способностью, но не задерживают мелкую пыль.

Часто используются как первая ступень очистки перед более тонкими фильтрами.

Схема циклона
Схема циклона

Рукавные пылеуловители для деревообрабатывающих станков

Предназначены для улавливания мелкодисперсной древесной пыли. Очистка газа осуществляется путем его прохождения через тканевые или синтетические рукава. Эффективность очистки достигает 99%, но требуется регулярная регенерация элементов. Подходят для цехов с высокой концентрацией пыли и непрерывным производством.

📌 Рукавные фильтры от производителя

Схема рукавного пылеуловителя
Схема рукавного пылеуловителя

Картриджные фильтры

Обладают более высокой степенью очистки. Фильтрующий элемент выполнен из складчатого материала, что увеличивает площадь фильтрации и снижает сопротивление потоку воздуха. Отличаются компактностью и высокой эффективностью улавливания мелкой пыли (включая частицы размером до 0,3 мкм).

📌 Каталог картриджных фильтров

Стружкоотсосы

Стружкоотсосы представляют собой мобильные или стационарные устройства, предназначенные для локального удаления опилок и стружки непосредственно от станков. Стружкоотсос для деревообработки особенно полезны для небольших производств, где нет сложной системы воздуховодов, а также для оборудования, выделяющего преимущественно крупные частицы. Они работают по принципу создания воздушного потока, который засасывает отходы в мешок-накопитель или циклон. По сравнению с полноценными аспирационными установками, стружкоотсосы проще в монтаже, занимают меньше места и требуют минимального обслуживания.

Однако у них есть ограничения: они не так эффективны в улавливании мелкой пыли, как рукавные или картриджные фильтры, и не подходят для централизованных систем аспирации больших цехов. Поэтому их часто используют в сочетании с другими пылеуловителями для обеспечения полной газоочистки.

Фильтр к деревообрабатывающим станкам подбирается в зависимости от типа отходов, образующихся при работе оборудования. Если станок выделяет в основном крупные частицы, такие как стружка и опилки, чаще всего используют циклоны или стружкоотсосы. Они эффективно отделяют тяжелые частицы за счет центробежной силы и направляют их в мешки-накопители.

Для удаления мелкодисперсной древесной пыли используется система аспирации для деревообработки, схема которой включает циклонные и рукавные аппараты.

Во многих деревообрабатывающих цехах ФВУ комбинируют: сначала циклон или стружкоотсос удаляет крупные частицы, затем воздух проходит через рукавные или картриджные агрегаты для тонкой очистки. Такой подход позволяет продлить срок службы фильтров и обеспечить максимальную чистоту в помещении.

Обслуживание

Для эффективной и бесперебойной работы системы аспирации в деревообрабатывающем цехе необходимо регулярное сервисное обслуживание. Основные правила включают:

1. Контроль работы системы

  • Проверка стабильности воздушного потока и уровня разрежения в воздуховодах.
  • Осмотр вентиляторов на предмет износа лопастей и посторонних шумов.
  • Мониторинг давления (разности давлений до и после фильтра), чтобы своевременно выявить их засорение.

2. Очистка фильтрующих элементов

Циклоны — очистка бункеров от накопленных отходов, проверка герметичности соединений.
Картриджные и рукавные пылеуловители — проверка работы устройств регенерации сжатым воздухом или встряхиванием, замена изношенных рукавов.

3. Проверка воздуховодов и заслонок

  • Очистка воздуховодов от скопившейся пыли, которая может снижать эффективность.
  • Контроль состояния заслонок и клапанов, чтобы избежать дисбаланса воздушного потока.

4. Обслуживание вентиляторов и электродвигателей

  • Очистка лопастей крыльчатки от налипшей пыли и стружки.
  • Проверка натяжения ременной передачи (если есть), замена при износе.
  • Контроль состояния подшипников, смазка при необходимости.

5. Безопасность и пожарная профилактика

  • Проверка искрогасителей, если они установлены.
  • Осмотр системы заземления для предотвращения накопления статического электричества.
  • Контроль температуры двигателя и подшипников во избежание перегрева и возгорания.

6. Ведение журнала технического обслуживания

  • Фиксация всех выполненных работ и выявленных неисправностей.
  • Планирование профилактических мероприятий, чтобы избежать аварийных простоев.

Систематическое обслуживание аспирации не только продлевает срок службы оборудования, но и снижает риски пылевых взрывов и загрязнения рабочей зоны.

Если перед вами стоит вопрос: «Как рассчитать аспирацию в деревообрабатывающий цех, чтобы обеспечить эффективное удаление пыли и стружки, учитывая объем производства, тип оборудования и требования к воздухообмену?», оставьте свои контактные данные и мы поможем разобраться, проведем консультацию. Уже десятки компаний доверились нам, купили аспирацию для деревообработки и теперь довольны результатом.

8 (800) 101-34-26 Звонок бесплатный

Напишите нам info@fakel-f.ru

#аспирация для деревообработки #аспирация деревообрабатывающих цехов #фильтр к деревообрабатывающим станкам #пылеуловители #промышленная безопасность #очистка воздуха