Найти в Дзене

Небольшие дома 6х8 по фундаменту, имеют ли право на существование?!

Сегодняшний обзор посвящен проектам домов в 2 полноценных этажа, подходящих на участки с ограничением по строительству. Дано небольшой участок и пятно размером 6х8 кв.м для постройки дома, в нашем случае фундамент уже залит и нужно сделать проект и построить небольшой двухэтажный дом. Проектирование начинается с ТЗ: имеем на первом этаже кухня-гостиная, санузел, котельная, гардероб. На втором этаже 2 спальни и санузел. Чертим планировки Согласовываем с заказчиком и рисуем внешний вид будущего дома. Следующим этапом готовим проект для строительства с использованием счетов Эскроу и загружаем все документы на строим.дом.рф. Дальше покажем реализацию этого дома! Все актуальные проекты и цены вы можете получить на сайте Что же осталось за кадром? Мы в архитектурном отделе всегда делаем различные варианты отделки фасада и обустройства кровли, а какой из вариантов дома при этих условиях построили бы вы?

Сегодняшний обзор посвящен проектам домов в 2 полноценных этажа, подходящих на участки с ограничением по строительству.

Дано небольшой участок и пятно размером 6х8 кв.м для постройки дома, в нашем случае фундамент уже залит и нужно сделать проект и построить небольшой двухэтажный дом.

Проектирование начинается с ТЗ: имеем на первом этаже кухня-гостиная, санузел, котельная, гардероб. На втором этаже 2 спальни и санузел.

Чертим планировки

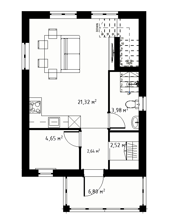
План первого этажа
План первого этажа
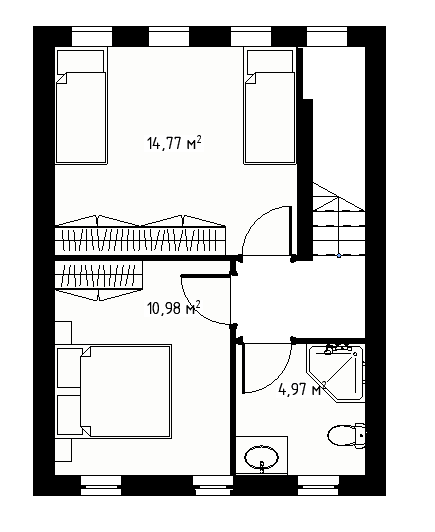
План второго этажа
План второго этажа

Согласовываем с заказчиком и рисуем внешний вид будущего дома.

Следующим этапом готовим проект для строительства с использованием счетов Эскроу и загружаем все документы на строим.дом.рф.

Дальше покажем реализацию этого дома!

Все актуальные проекты и цены вы можете получить на сайте

Что же осталось за кадром? Мы в архитектурном отделе всегда делаем различные варианты отделки фасада и обустройства кровли, а какой из вариантов дома при этих условиях построили бы вы?

-4
-5
-6
-7
-8