Добавить в корзинуПозвонить
Найти в Дзене
DIVAN.RU

40 кв.м: ультрамариновая однушка с кухней в коридоре

Позитив, легкая ирония, оригинальность и много-много синего — концепция этой квартиры в стиле мемфис. Проект получился ярким, со множеством деталей: необычные мебельные ручки, картины уральского художника, мебель в стиле хендмейд. Место: г. Екатеринбург, ЖК 4YOU Объект: евродвушка 40 кв.м Высота потолков: 2,75 м Авторы проекта: дизайнер Юлия Зубарева и хоумстейджер Анастасия Гавриленко Автор фото: Ксения Еремина Реализация: 2024 год «Это инвестиционная квартира, которую приобрели под сдачу в долгосрочную аренду, — рассказывает дизайнер. — Потенциальные арендаторы: молодой человек или девушка, пара в возрасте 25–35 лет, ценящие время и комфорт. Проект решено было сделать ярким, абстрактным и вдохновляющим, при этом учесть все детали и создать комфортное для жизни пространство». Квартира сдавалась в предчистовой отделке и сразу бросала вызов дизайнеру: все помещения — неправильной формы, кухня — в коридоре. Но перепланировку делать не стали, и сложные на первый взгляд исходные данные ста
Оглавление

Позитив, легкая ирония, оригинальность и много-много синего — концепция этой квартиры в стиле мемфис. Проект получился ярким, со множеством деталей: необычные мебельные ручки, картины уральского художника, мебель в стиле хендмейд.

Авторы проекта: дизайнер Юлия Зубарева и хоумстейджер Анастасия Гавриленко;  автор фото: Ксения Еремина
Авторы проекта: дизайнер Юлия Зубарева и хоумстейджер Анастасия Гавриленко; автор фото: Ксения Еремина

Место: г. Екатеринбург, ЖК 4YOU

Объект: евродвушка 40 кв.м

Высота потолков: 2,75 м

Авторы проекта: дизайнер Юлия Зубарева и хоумстейджер Анастасия Гавриленко

Автор фото: Ксения Еремина

Реализация: 2024 год

«Это инвестиционная квартира, которую приобрели под сдачу в долгосрочную аренду, — рассказывает дизайнер. — Потенциальные арендаторы: молодой человек или девушка, пара в возрасте 25–35 лет, ценящие время и комфорт. Проект решено было сделать ярким, абстрактным и вдохновляющим, при этом учесть все детали и создать комфортное для жизни пространство».

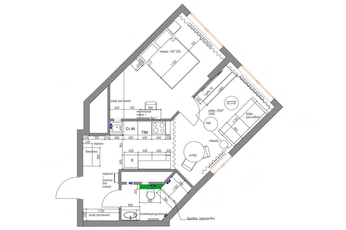
Логика планировки

Квартира сдавалась в предчистовой отделке и сразу бросала вызов дизайнеру: все помещения — неправильной формы, кухня — в коридоре. Но перепланировку делать не стали, и сложные на первый взгляд исходные данные стали фишкой проекта.

Кухня-коридор

Под кухню застройщик выделил всего 5,5 кв.м. Для столовой места здесь не хватило, поэтому ее вынесли в комнату. Гарнитур можно спрятать за плотной шторой, если не хочется наблюдать зону готовки во время отдыха в гостиной.

Авторы проекта: дизайнер Юлия Зубарева и хоумстейджер Анастасия Гавриленко;  автор фото: Ксения Еремина
Авторы проекта: дизайнер Юлия Зубарева и хоумстейджер Анастасия Гавриленко; автор фото: Ксения Еремина

Кухонный гарнитур заказали в белом цвете, чтобы визуально не перегружать помещение. В столовой зоне поставили компактный круглый стол с алыми стульями в тон ручкам-рыбкам на фасадах.

Кухня в квартире по сути является коридором и продолжением прихожей. На пол в этих зонах постелили одинаковый керамогранит, чтобы пространство выглядело единым целым. Гарнитур параллельный: с одной стороны — только нижний ярус с рабочей зоной, раковиной и техникой для готовки. С другой — двухъярусная система хранения со встроенным холодильником и СВЧ-печью.

Гостиная

Преимущество гостиной — два окна. В комнате много естественного света, за счет чего небольшое пространство выглядит визуально объемным. Кроме того, с их помощью органично зонировали гостиную и столовую зоны.

Авторы проекта: дизайнер Юлия Зубарева и хоумстейджер Анастасия Гавриленко; автор фото: Ксения Еремина
Авторы проекта: дизайнер Юлия Зубарева и хоумстейджер Анастасия Гавриленко; автор фото: Ксения Еремина

Диван Клаймар от бренда divan.ru стал логическим центром гостиной. Конечно, мы выбрали его за глубокий синий оттенок обивки, который идеально вписался в концепцию. Но решил не только цвет: у дивана модные округлые формы, комфортная посадка и надежный раскладной механизм. В роли обивки — велюр Ultra, он легко чистится от загрязнений.

Авторы проекта: дизайнер Юлия Зубарева и хоумстейджер Анастасия Гавриленко; автор фото: Ксения Еремина
Авторы проекта: дизайнер Юлия Зубарева и хоумстейджер Анастасия Гавриленко; автор фото: Ксения Еремина

▶️В кадре диван Клаймар от бренда divan.ru >>

☀️ Цены тают, как снег! Успейте за первыми весенними скидками до 70%. Выбирайте мебель и аксессуары для дома на распродаже в divan.ru >>

-7

Спальня

Спальня тоже оформлена в синих оттенках, но уже в более темных, чтобы создать атмосферу спокойствия и умиротворения. В синий здесь выкрасили потолок — это еще один способ «углубить» комнату. А чтобы визуально расширить пространство и добавить «воздуха», напротив окна установили зеркальный шкаф до потолка.

Авторы проекта: дизайнер Юлия Зубарева и хоумстейджер Анастасия Гавриленко; автор фото: Ксения Еремина
Авторы проекта: дизайнер Юлия Зубарева и хоумстейджер Анастасия Гавриленко; автор фото: Ксения Еремина

В комнате предусмотрели рабочее место. Зоны отдыха и работы «разделили» разным освещением. Спальное место — кровать с округлым изголовьем Молсон от бренда divan.ru. Кстати, модель на ножках — под основанием легко проезжает робот-пылесос.

▶️В кадре кровать Молсон 160 от бренда divan.ru >>

❤️ Выберите кровать, которая подарит чувство комфорта и сделает сон приятнее. Большая подборка со скидками до 45% ждет на divan.ru >>

-10

Прихожая

Отделка в прихожей светлая, чтобы создать максимальный контраст с яркой мебелью. Консоль необычной формы выполнена на заказ — ее «поддерживают» оригинальные ручки на фасадах шкафа и ритм орнамента под потолком. «Завершают» историю мягкий пуф Ринт в обивке из букле и зеркало неправильной формы.

▶️В кадре пуф Ринт от бренда divan.ru >>

Санузел

Санузел продолжает ультрамариновую концепцию синими стенами и черными деталями. Акцентами служат белые элементы: отдельно стоящая раковина, полотенцесушитель и душевая.

Авторы проекта: дизайнер Юлия Зубарева и хоумстейджер Анастасия Гавриленко; автор фото: Ксения Еремина
Авторы проекта: дизайнер Юлия Зубарева и хоумстейджер Анастасия Гавриленко; автор фото: Ксения Еремина

«Санузел небольшой, поэтому стиральную машинку мы перенесли на кухню, — рассказывает дизайнер. — А чтобы избавиться от напольной сушилки, для которой нет места, купили стиральную машину с функцией сушки».

==========

Оцените интерьер в комментариях, а если статья понравилась — не забудьте поставить лайк👍

🖤divan.ru — не только блог про интерьеры, но и производитель доступной дизайнерской мебели. Ищите новые идеи и переходите на сайт, чтобы воплотить их в жизнь.