Добавить в корзинуПозвонить
Найти в Дзене

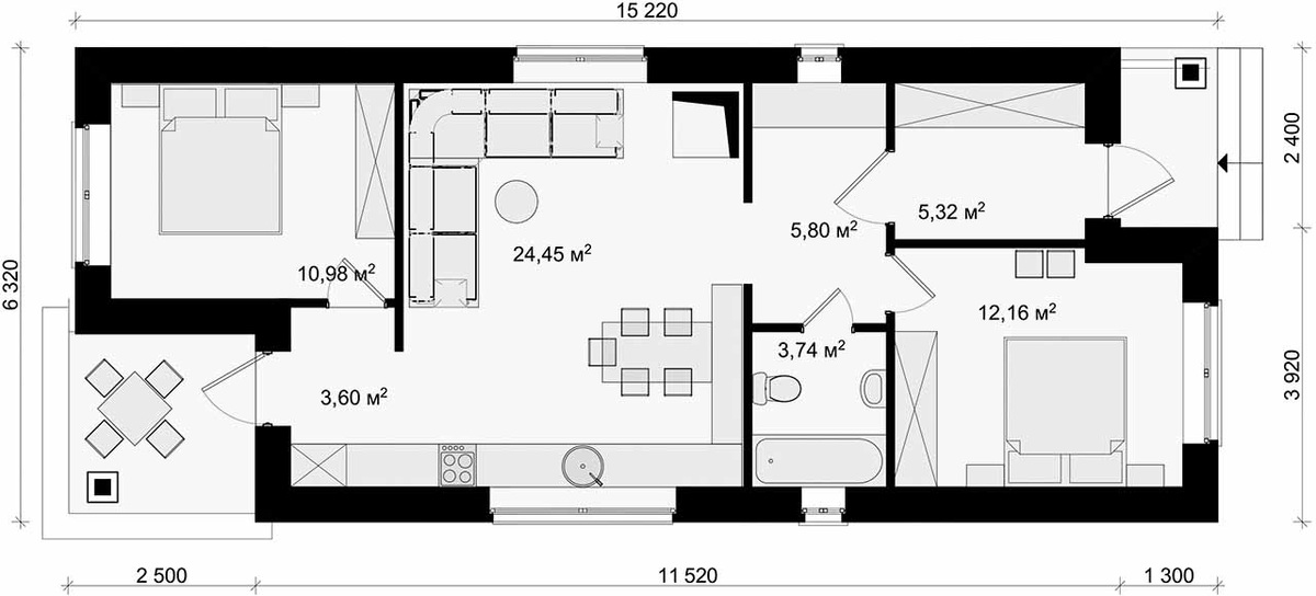
ДВИНА-1 65 м2 - проект простого двухкомнатного дома шириной 6 метров для узкого участка

✅ Проект готовый, условия заказа чертежей - на основном сайте Это проект простого в строительстве дома шириной 6 метров для участка от 12.5 метров. Стены дома из газобетона с облицовкой, внутри нет несущих конструкций, простая кровля с небольшим свесом позволяет не учитывать ее при расчете ширины пятна застройки. Этот дом - брат-близнец проекта НЕРИНГА, с тем отличием, что у НЕРИНГИ терраса и крыльцо с одной стороны, а у ДВИНЫ-1 они ориентированы на разные стороны. Кроме того, у ДВИНЫ стены тоньше, из блоков 300 мм (допустимо по нагрузкам и тепло) с облицовкой, за счет чего удалось выиграть 20 см. ширины и 2 м2 площади при том же внешнем габарите дома. Все помещения приняты такого размера, чтобы помещался необходимый и достаточный набор мебели. Середину плана занимает совмещенная кухня-гостиная с камином. Она достаточно просторна и уютна, и вы не почувствуете, что живете в узком доме. • Если вы любите эффектные интерьеры, обратите внимание на вариант дома ПАЛАНГА, с такой же планировко

✅ Проект готовый, условия заказа чертежей - на основном сайте

Это проект простого в строительстве дома шириной 6 метров для участка от 12.5 метров. Стены дома из газобетона с облицовкой, внутри нет несущих конструкций, простая кровля с небольшим свесом позволяет не учитывать ее при расчете ширины пятна застройки.

КОМФОРТНАЯ ПЛАНИРОВКА

Этот дом - брат-близнец проекта НЕРИНГА, с тем отличием, что у НЕРИНГИ терраса и крыльцо с одной стороны, а у ДВИНЫ-1 они ориентированы на разные стороны. Кроме того, у ДВИНЫ стены тоньше, из блоков 300 мм (допустимо по нагрузкам и тепло) с облицовкой, за счет чего удалось выиграть 20 см. ширины и 2 м2 площади при том же внешнем габарите дома.

Все помещения приняты такого размера, чтобы помещался необходимый и достаточный набор мебели. Середину плана занимает совмещенная кухня-гостиная с камином. Она достаточно просторна и уютна, и вы не почувствуете, что живете в узком доме.

• Если вы любите эффектные интерьеры, обратите внимание на вариант дома ПАЛАНГА, с такой же планировкой, но отделкой штукатуркой и красивым (но дорогим) мансардным потолком.

В кухне помещается обеденный стол, кухонная линия !ШЕСТЬ! метров. Можно ещё её завернуть туда, где стол, будет восемь. Окно кухни поднято, чтобы над ним повесить шкафчики. С уголке у выхода на террасу предполагается размещение отопительного навесного или простого котла. В доме, несмотря на отсутствие кладовок, достаточно много мест хранения.

-2

Спальни устроены ближе к торцам дома, в каждой может поместиться двуспальная кровать, двухметровый шкаф и ещё что-то из мебели (кресло или небольшое рабочее место). Ширина их меньше ширины гостиной, что позволило запроектировать входное крыльцо и терраску в габаритах плана дома, чтобы не растягивать дом в длину. Дом подходит для супружеской пары или молодой семьи с одним-двумя детьми.

Большие окна спален обращены в палисадник и в сад, и подарят красивый вид, а не картину соседа в майке.

• Все проекты длинных узких одноэтажных домов можно посмотреть в статье-подборке

Узкие длинные одноэтажные дома для длинных участков - подборка проектов | Инваполис - проекты рациональных домов | Дзен
Напоминаем, у нас есть каталог 👀 https://www.invapolis.ru/project-house/ из более чем 200 готовых проектов домов

► Чтобы не пропускать публикации, палец 👍, и подписывайтесь на канал :)

► В Телеграмм и ВК публикуем анонсы новых статей и краткие обзоры проектов