Найти в Дзене

Большой каркасный дом 8х15. Фото, планировка, цена от 1 450 800 ₽

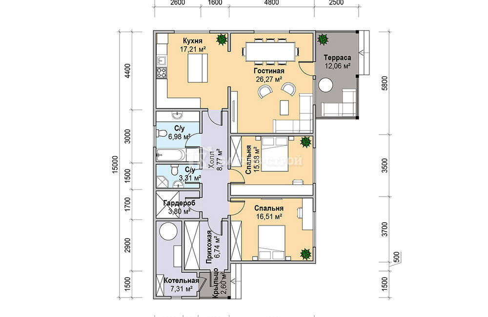
«Садко» - каркасный одноэтажный дом 8х15м с террасой 12,06м² и крыльцом 2,6м². Общая площадь дома 141м². Планировкой предусмотрено: 2 спальни, кухня, гостиная, 2 сан.узела, холл, прихожая, гардероб, котельная. • Площадь: 141 м2
• Размер: 9х15 м
• Этажность: 1
• Оплата: Без предоплаты
• Доставка: Индивидуально
• Сроки стр-ва: 12-14 дней 1. Без отделки: • Каркас 100 мм - 1 450 800 ₽ • Каркас 150 мм - 1 483 500 ₽ • Каркас 200 мм - 1 614 300 ₽ 2. С отделкой: • Каркас 100 мм - 3 052 000 ₽ • Каркас 150 мм - 3 259 100 ₽ • Каркас 200 мм - 3 509 800 ₽ Посмотреть комплектацию на сайте:
https://bagrovstroy.ru/karkasnye-doma/kd-sadko В комплектацию «с отделкой» входит все, что перечислено в комплектации «без отделки» + то, что перечислено на слайдах в карусели.
____________________
В каждую комплектацию УЖЕ ВКЛЮЧЕНА стоимость материалов, работа бригады, фотоотчет и мой личный контроль за строительством) Доставка рассчитывается так же отдельно.
В карусели вы увидите что конкретно входит в каждый
Оглавление

«Садко» - каркасный одноэтажный дом 8х15м с террасой 12,06м² и крыльцом 2,6м². Общая площадь дома 141м². Планировкой предусмотрено: 2 спальни, кухня, гостиная, 2 сан.узела, холл, прихожая, гардероб, котельная.

• Площадь: 141 м2
• Размер: 9х15 м
• Этажность: 1
• Оплата: Без предоплаты
• Доставка: Индивидуально
• Сроки стр-ва: 12-14 дней

Планировка:

-2

👉 СТОИМОСТЬ (цены актуальны на момент публикации):

1. Без отделки:

• Каркас 100 мм - 1 450 800 ₽

• Каркас 150 мм - 1 483 500 ₽

• Каркас 200 мм - 1 614 300 ₽

2. С отделкой:

• Каркас 100 мм - 3 052 000 ₽

• Каркас 150 мм - 3 259 100 ₽

• Каркас 200 мм - 3 509 800 ₽

Посмотреть комплектацию на сайте:
https://bagrovstroy.ru/karkasnye-doma/kd-sadko

👉🏻Что входит в каждую комплектацию?

В комплектацию «с отделкой» входит все, что перечислено в комплектации «без отделки» + то, что перечислено на слайдах в карусели.
____________________

В каждую комплектацию УЖЕ ВКЛЮЧЕНА стоимость материалов, работа бригады, фотоотчет и мой личный контроль за строительством) Доставка рассчитывается так же отдельно.

В карусели вы увидите что конкретно входит в каждый вариант :)

По вашему пожеланию, можно учесть доп.опции, убрать или заменить: фундамент, коммуникации, заменить окна на пластиковые, изменить внешнюю отделку дома и другие.

Понравился дом? Свяжитесь с нами, мы сделаем для вас расчет стоимости или подберем подходящий проект под ваши пожелания.

📍 Наши контакты:

• Сайт: bagrovstroy.ru
• Группа VK:
vk.com/bagrovstroy
• Telegram-канал:
t.me/bagrovstroy