Добавить в корзинуПозвонить
Найти в Дзене
DIVAN.RU

25 кв.м: зонирование цветом и личное «солнце» в московской студии

Концепция этого интерьера — «день/ночь». Зона сна («ночь») выделена темным, а в «дневной» всегда светит солнце. Объект: студия 25 кв.м, ЖК «Кронштадский 9» Авторы проекта: дизайнер Евгения Акимова, автор фото Екатерина Гейц Бюджет ремонта: 2 млн рублей Застройщик сдавал студию с отделкой white box: была разведена электрика по стенам, проложена трасса кондиционера до технического помещения под внешние блоки. Сантехнику пришлось делать с нуля, электрику тоже корректировали под задачи проекта. Самое главное в студиях — умудриться разместить все функциональные зоны, необходимые для жизни, и при этом оставить возможность двигаться, — рассказывает автор проекта. — Я против дополнительных перегородок: считаю, что они съедают пространство, хорошо выглядят только на фото, а в реальности не нужны. Поэтому зонирование осуществлялось только с помощью декоративных приемов. Пол во всей квартире застелили кварц-винилом, стены покрыли краской. Концептуально квартира разделена на «день»: кухня-столовая
Оглавление

Концепция этого интерьера — «день/ночь». Зона сна («ночь») выделена темным, а в «дневной» всегда светит солнце.

Автор проекта: дизайнер Евгения Акимова, автор фото Екатерина Гейц
Автор проекта: дизайнер Евгения Акимова, автор фото Екатерина Гейц

Объект: студия 25 кв.м, ЖК «Кронштадский 9»

Авторы проекта: дизайнер Евгения Акимова, автор фото Екатерина Гейц

Бюджет ремонта: 2 млн рублей

Исходные данные

Застройщик сдавал студию с отделкой white box: была разведена электрика по стенам, проложена трасса кондиционера до технического помещения под внешние блоки. Сантехнику пришлось делать с нуля, электрику тоже корректировали под задачи проекта.

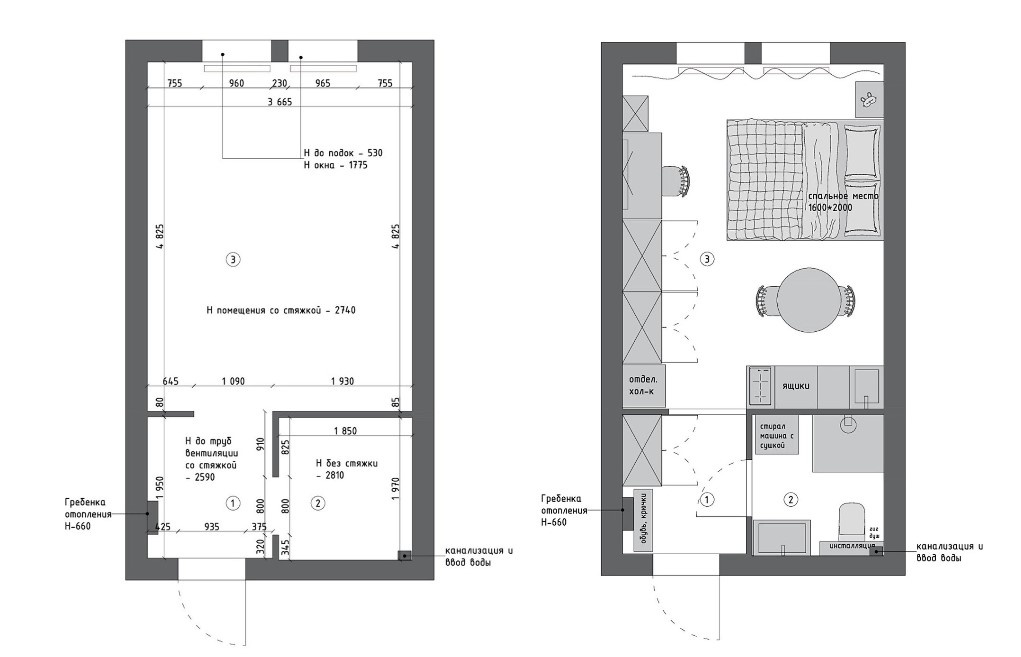
Обмерный план и итоговая расстановка мебели
Обмерный план и итоговая расстановка мебели
Самое главное в студиях — умудриться разместить все функциональные зоны, необходимые для жизни, и при этом оставить возможность двигаться, — рассказывает автор проекта. — Я против дополнительных перегородок: считаю, что они съедают пространство, хорошо выглядят только на фото, а в реальности не нужны. Поэтому зонирование осуществлялось только с помощью декоративных приемов.

Пол во всей квартире застелили кварц-винилом, стены покрыли краской. Концептуально квартира разделена на «день»: кухня-столовая и «ночь»: зона спальни и рабочее пространство.

Кухня и обеденная зона

Пространство кухни-столовой выделили в концепцию «день» оттенками белого: это стены ,плитка на фартуке, кухонный гарнитур. Интересным решением было разместить постер с личным «солнцем», который акцентирует на себе внимание и за счет подсветки создает теплую атмосферу в квартире.

Автор проекта: дизайнер Евгения Акимова, автор фото Екатерина Гейц
Автор проекта: дизайнер Евгения Акимова, автор фото Екатерина Гейц

Компактный кухонный гарнитур вмещает всю необходимую бытовую технику, кроме духового шкафа. От него отказалась заказчица, так как редко готовит. Отдельностоящий холодильник расположили на противоположной стене.

Зона спальни и рабочее место

Концептуальная зона «ночь» окрашена в оттенок зеленого, графитовые шторы и темная мебель добавляют пространству глубину. Для усиления эффекта на кровати темное постельное белье.

Автор проекта: дизайнер Евгения Акимова, автор фото Екатерина Гейц
Автор проекта: дизайнер Евгения Акимова, автор фото Екатерина Гейц
Вся темная мебель в квартире была найдена на Диван.ру: кровать Ингрид в графитовом оттенке и прикроватная тумба Шелтон составляют идеальную пару в зоне отдыха, — рассказывает дизайнер. Рабочее место организовали у противоположной стены. Письменный стол и стеллаж с рифлеными фасадами — из той же коллекции, что и тумба. Ярко-оранжевый пуф «разбавляет» серые оттенки и добавляет настроения.
Я фанат большого количества мест для хранения. Когда вижу студию с одним шкафом при входе, всегда задаюсь вопросами: Почему так сделано? Мы сейчас не в том мире, когда люди переезжали с одним картонным чемоданчиком, в котором умещались все вещи, — считает автор проекта. — Поэтому я всегда стараюсь организовать хранение по максимуму.
Идеально, если есть возможность сделать закрытую гардеробную. В этой студии так не получалось, пришлось обойтись тремя шкафами. Внешне они одинаковы, но по-разному спланированы внутри, исходя из задач. Кроме того, есть глубокий ящик под матрасом у кровати, для мелочей предусмотрена тумба с выдвижными ящиками. Ящики есть и у рабочего стола, и у стеллажа с открытым и закрытым хранением. Поместится все — от чемодана до коллекции любимых книг.

Санузел

В санузле на полу уложили крупногабаритный керамогранит с геометрическим рисунком, стены покрыли краской для влажных помещений нежно-зеленого оттенка. Душевую, стены перед инсталляцией и над раковиной выложили крупногабаритным керамогранитом серого цвета.

Местом для хранения здесь выступает подвесная тумба под раковиной и пенал над стиральной машиной. Было принято решение установить именно стирально-сушильную машину, так как места, чтобы разложить сушилку, в студии нет.

Автор проекта: дизайнер Евгения Акимова, автор фото Екатерина Гейц
Автор проекта: дизайнер Евгения Акимова, автор фото Екатерина Гейц

Прихожая

В прихожей установили вместительный распашной шкаф для верхней одежды и открытую вешалку с обувницей. Стены покрасили в такой же оттенок зеленого, как и в зоне спальни.

Автор проекта: дизайнер Евгения Акимова, автор фото Екатерина Гейц
Автор проекта: дизайнер Евгения Акимова, автор фото Екатерина Гейц

☀️ Цены тают, как снег! Успейте за первыми весенними скидками до 70%. Выбирайте мебель и аксессуары для дома на распродаже в divan.ru >>

-8

==========

Оцените интерьер в комментариях, а если материал понравился — не забудьте поставить лайк👍

🖤divan.ru — не только блог про интерьеры, но и производитель доступной дизайнерской мебели. Ищите новые идеи и переходите на сайт, чтобы воплотить их в жизнь.