Добавить в корзинуПозвонить
Найти в Дзене

Проект двухэтажного дома в стиле хай-тек «Пилар»

Дом в стиле хай-тек «Пилар» с общей площадью 496.67 м² Основные характеристики проекта: Размеры 15x19 м 3 спальни 3 санузла Гараж на 2 автомобиля с выходом в котельную площадью 57.13 м² Эксплуатируемая крыша 35.80 м² Крыльцо 10.91 м² Терраса площадью 15.24 и 75.5 м² На первом этаже расположен гараж, который удобно соединен с котельной. Просторный холл ведет в уютную гостиную с выходом на террасу. Кухня находится рядом. На втором этаже находятся три спальни, а также просторная терраса и большая эксплуатируемая крыша. Благодаря второму свету пространство наполняется естественным освещением. Как построить дом в Тюмени? Как построить дом в Москве? Готовые дома в Тюмени Готовые дома в Москве Земельные участки в Тюмени Задать вопрос в ТГ И подписывайтесь на наш канал, чтобы не пропустить новые интересные проекты. #проектдома #проектдвухэтажногодома #построитьдом #купитьдом #двухэтажныйдом #лучшиедвухэтажныедома #дом #новыедома

Дом в стиле хай-тек «Пилар» с общей площадью 496.67 м²

Основные характеристики проекта:

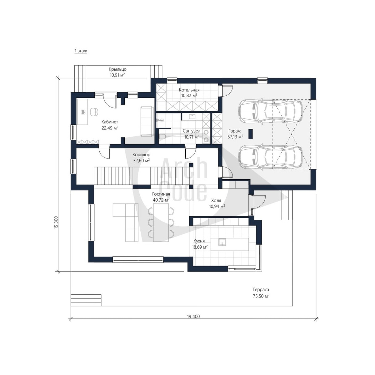
Размеры 15x19 м

3 спальни

3 санузла

Гараж на 2 автомобиля с выходом в котельную площадью 57.13 м²

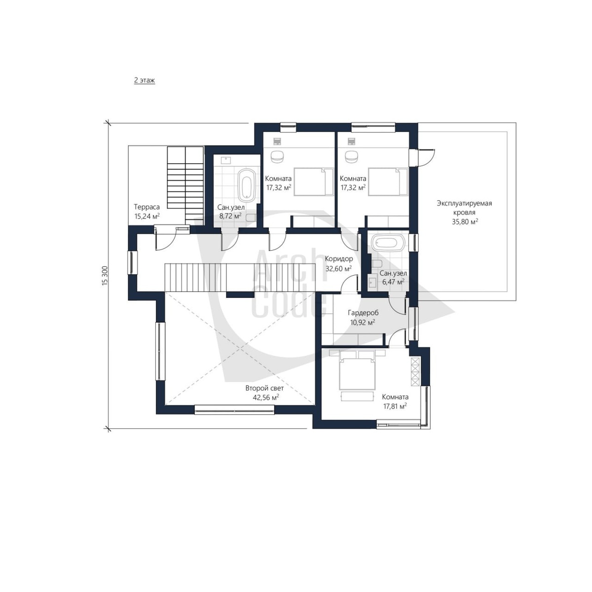
Эксплуатируемая крыша 35.80 м²

Крыльцо 10.91 м²

Терраса площадью 15.24 и 75.5 м²

На первом этаже расположен гараж, который удобно соединен с котельной. Просторный холл ведет в уютную гостиную с выходом на террасу. Кухня находится рядом.

На втором этаже находятся три спальни, а также просторная терраса и большая эксплуатируемая крыша. Благодаря второму свету пространство наполняется естественным освещением.

Понравился проект? Заказать проект или выбрать подобный можно по телефону: +79323212510. Звоните или пишите. Заявки принимаются по вотцап, телеграмм. Готовы рассчитать для вас смету!

Как построить дом в Тюмени?

Как построить дом в Москве?

Готовые дома в Тюмени

Готовые дома в Москве

Земельные участки в Тюмени

Задать вопрос в ТГ

И подписывайтесь на наш канал, чтобы не пропустить новые интересные проекты.

#проектдома #проектдвухэтажногодома #построитьдом #купитьдом

#двухэтажныйдом #лучшиедвухэтажныедома #дом #новыедома