Добавить в корзинуПозвонить
Найти в Дзене
Новгородский строитель

Загородная мечта: дом, в котором хочется остаться

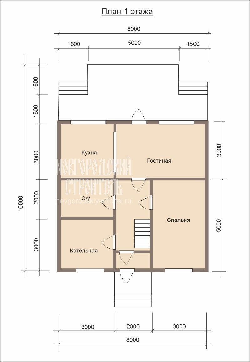
Дом из бруса «Липецк» — это не просто квадратные метры, а пространство, которое подстраивается под вас. Просторный, теплый, уютный — он идеально подходит и для тех, кто давно мечтает перебраться за город, и для тех, кто ищет дачу, где действительно хочется проводить время. Продуманная планировка для комфортной жизни Размер 8×8 м — оптимальный для семьи. Здесь 128 м² продуманного пространства, в котором каждый найдет свое место. Входная зона ведет в прихожую, откуда можно попасть в просторную гостиную. Это не просто комната — это центр дома, где собираются близкие, где звучат разговоры и смех. Окна наполняют пространство светом, а дышащие деревянные стены создают особую атмосферу. Рядом — отдельная кухня. Открытая планировка придает пространству дополнительное удобство. Рядом расположена спальня — теплая и уединенная. Она идеально подойдет для гостей, пожилых родителей или кабинета, если вы работаете из дома. Также на первом этаже есть место для котельной и отдельного санузла. На втором

Дом из бруса «Липецк» — это не просто квадратные метры, а пространство, которое подстраивается под вас. Просторный, теплый, уютный — он идеально подходит и для тех, кто давно мечтает перебраться за город, и для тех, кто ищет дачу, где действительно хочется проводить время.

Продуманная планировка для комфортной жизни

Размер 8×8 м — оптимальный для семьи. Здесь 128 м² продуманного пространства, в котором каждый найдет свое место. Входная зона ведет в прихожую, откуда можно попасть в просторную гостиную. Это не просто комната — это центр дома, где собираются близкие, где звучат разговоры и смех. Окна наполняют пространство светом, а дышащие деревянные стены создают особую атмосферу.

Рядом — отдельная кухня. Открытая планировка придает пространству дополнительное удобство. Рядом расположена спальня — теплая и уединенная. Она идеально подойдет для гостей, пожилых родителей или кабинета, если вы работаете из дома. Также на первом этаже есть место для котельной и отдельного санузла.

-2

На втором этаже — три спальни. Здесь можно устроить детские комнаты, гостевые или тихий уголок для чтения. Гардеробная избавляет от необходимости загромождать пространство шкафами, а второй санузел делает утренние сборы намного удобнее.

-3

И, конечно, загородный дом невозможно представить без террасы. Она просторная, удобная, идеально подходит для семейных вечеров и теплых встреч с друзьями. А балкон второго этажа добавляет дому дополнительный уют и возможность наслаждаться видами на окружающую природу.

Дом, в котором дышится легко

Дом выполнен из профилированного бруса (150×150 мм или 200×150 мм) — это не только надежность, но и комфорт. Дерево регулирует влажность, наполняет воздух свежестью и создает ощущение уюта. Зимой в таком доме тепло, а летом — прохладно.

-4

Дом по проекту «Липецк», который мы построили в Ленинградской области

Лаги пола выполнены из бруса камерной сушки, а все деревянные элементы обработаны антисептиком, что защищает их от влаги и вредителей. Для полов, перекрытий, потолка используется утеплитель Knauf. Второй этаж каркасный, с утеплением каменной ватой Rockwool, что делает дом теплым даже в морозную зиму.

-5

Внутренняя отделка — настоящая находка для любителей натуральных материалов. Потолки и стены обшиты сухой «Евровагонкой», создавая уютную атмосферу деревенского дома, где пахнет древесиной и теплом. Полы — двойные: черновой настил из обрезной доски, а сверху — качественная шпунтованная доска 27 мм. Ходить по такому полу — одно удовольствие!

-6

Отдельного внимания заслуживают окна пвх, двухкамерные стеклопакеты обеспечивают отличную теплоизоляцию, наполняя дом светом. А лестница на второй этаж с резными перилами и точеными балясинами напоминает о традициях русского зодчества.

-7

Пространство, которое вдохновляет

Этот дом — не просто место для жизни, а маленький мир, который становится вашим. Утренний кофе на просторной террасе, вечерние разговоры на балконе, ароматы леса или сада за окном — здесь все подчинено ритму природы и вашему комфорту.

-8

Если у вас остались вопросы, можете задать их по телефону: 8-880-777-35-72.
А если хотите оставить заявку на расчет стоимости, тогда переходите по ссылке:
https://novgorodskiy-stroitel.ru/doma-brus/lipetsk