Найти в Дзене

Ремонт для молодой семьи: как уложиться в бюджет и не затянуть сроки

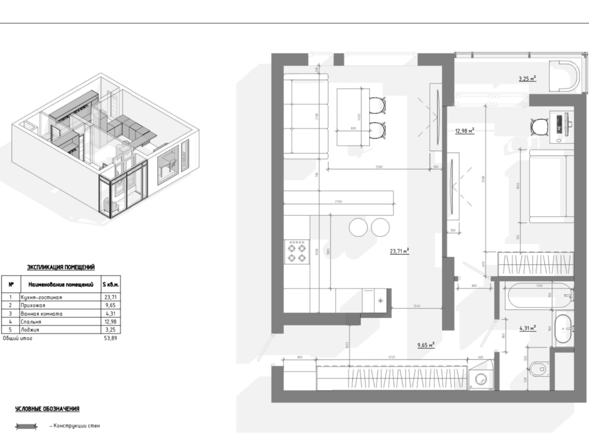
О чем больше всего переживают люди, которые планируют ремонт квартиры: Молодожены Олег и Яна живут в старой бабушкиной квартире. Естественно, интерьер не нравился молодым людям, ведь они мечтали о стильном пространстве, куда не стыдно было бы пригласить друзей. Вопрос назрел, но молодожены сомневались, что смогут правильно рассчитать затраты и опасались скандалов, которые зачастую сопровождают ремонт, проверяя отношения на прочность. Поэтому Олег с Яной решили отказаться от управления ремонтными работами и обратились к нам, чтобы вернуться позже в уже готовую квартиру.Что помогло не выйти за рамки семейного бюджета Выяснив, каким видит свое уютное гнездышко молодая семья, мы предложили варианты, которые помогли не выбиться из сметы, и при этом создать эргономичное и красивое пространство. ☑️ Если сохраните себе эти лайфхаки, они помогут вам уложиться в бюджет и сократить период ремонта. Чтобы понять, как долго продлятся ремонтные работы, нужно знать, сколько времени занимает каждый эт
Оглавление

О чем больше всего переживают люди, которые планируют ремонт квартиры:

  • хватит ли у них денег
  • насколько это может затянуться.

Молодожены Олег и Яна живут в старой бабушкиной квартире. Естественно, интерьер не нравился молодым людям, ведь они мечтали о стильном пространстве, куда не стыдно было бы пригласить друзей. Вопрос назрел, но молодожены сомневались, что смогут правильно рассчитать затраты и опасались скандалов, которые зачастую сопровождают ремонт, проверяя отношения на прочность. Поэтому Олег с Яной решили отказаться от управления ремонтными работами и обратились к нам, чтобы вернуться позже в уже готовую квартиру.Что помогло не выйти за рамки семейного бюджета

Выяснив, каким видит свое уютное гнездышко молодая семья, мы предложили варианты, которые помогли не выбиться из сметы, и при этом создать эргономичное и красивое пространство.

  1. Оптимальный выбор“ремонт под ключ”. Когда все этапы выполняются одним подрядчиком, получается и дешевле, и быстрее.
  2. Вместо отдельно стоящих шкафов строим перегородки в нишах для гардеробной. Отказ от дорогостоящих фасадов (которые изначально хотели наши молодожены) помог сэкономить и, к тому же, придает интерьеру стиль и функциональность.
  3. Придерживаемся одной цветовой гаммы во всей квартире. Все цвета нейтральные и гармоничные. Когда захочется сменить обстановку, достаточно будет просто разбавить привычный интерьер аксессуарами (новые шторы, пледы, ковер).
  4. Для более рационального использования бюджета заказчика возводим межкомнатные перегородки не из блоков, а из кирпича (покрывая в дальнейшем лаком, отказавшись от штукатурки и шпаклевки).
☑️ Если сохраните себе эти лайфхаки, они помогут вам уложиться в бюджет и сократить период ремонта.

Сколько времени реально занимает ремонт

Чтобы понять, как долго продлятся ремонтные работы, нужно знать, сколько времени занимает каждый этап.
-2

Стоит сказать, каждый проект индивидуален и его длительность зависит от набора тех изменений, которые хочется реализовать заказчику. Где-то ремонт возможно осуществить за 3 месяца, а где-то только на согласование изменений несущей стены уйдет от 2 до 6 месяцев.

В среднем этапы ремонта, который мы осуществляем выглядят так:

Что поможет ускорить ремонт
Что поможет ускорить ремонт

Свод правил, чтобы ремонт не затянулся

  • 1) Составить смету, так как без нее невозможно создать проект, соответствующий ожиданиям. Советуем заложить в нее неочевидные траты. Например, подъем на этаж и монтаж зеркала могут стоить дороже самого зеркала.
-4
  • 2) Соблюдение последовательности и порядка выполнения работ. Спешка и попытки завершить ремонт “к праздникам” могут привести к некачественным результатам.
  • 3) Четкое составление технического задания поможет избежать непредвиденных расходов и экстренных доработок. Еще на этапе планирования важно понимать, какой вместимости нужна посудомойка и где будет стоять/висеть телевизор.

4) Не нужно заранее ходить по магазинам и присматривать “симпатичные” светильники, розетки, смесители. Ваша задача — утвердить дизайн-проект. Под него будут куплены чистовые материалы, мебель и декор. Вам не придется тратить время на поиски и закупки.

5) Ну и конечно же, своевременная поэтапная закупка материалов помогает избежать досадных проволочек (если вы контролируете продвижение ремонта своими силами).

Не затянуть сроки переезда в обновленное гнездышко Олегу и Яне помогло решение заказать ремонт под ключ. Когда все детали были согласованы, молодой семье осталось лишь дождаться обозначенного в договоре срока, а все хлопоты по контролю качественного выполнения работ на каждом этапе ремонта мы взяли на себя.
Не забудьте ее себе забрать, ведь она помогла уже тысячам людей!
Не забудьте ее себе забрать, ведь она помогла уже тысячам людей!