Добавить в корзинуПозвонить
Найти в Дзене

Проект особняка в стиле хай-тек — «Лагуна»

Проект особняка в стиле хай-тек — «Лагуна» Загородный дом площадью 553 м². 1 этаж - Кухня-гостиная (57,13 м²) — центр дома, объединяющий зону для отдыха и приготовления пищи. - Гостевая комната (14,40 м²) — уютное пространство для посещений друзьями и близкими. - Санузел (3,91 м²) — удобно расположен рядом с гостевой комнатой. - Гардеробная (6,48 м²) — предназначена для хранения верхней одежды. - Прихожая (9,80 м²) — встречает гостей комфортом и продуманной организацией. - Гараж (42,00 м²) — вмещает два автомобиля. - Котельная (16,80 м²) — инженерное сердце дома. Банный комплекс: - Комната отдыха (28,43 м²) — уютное место для расслабления. - Сауна (4,28 м²) и хамам (4,28 м²) — роскошные зоны для спа-процедур. - Душевая (2,60 м²) — для комфортного очищения после банных сеансов. - Терраса (35,03 м²) — идеально подходит для летних встреч на свежем воздухе. 2 этаж - Мастер-спальня (23,46 м²) с гардеробной (16,83 м²) и собственным санузлом (12,54 м²). - Вторая спальня (24,45 м²) — просторна

Проект особняка в стиле хай-тек — «Лагуна»

Загородный дом площадью 553 м².

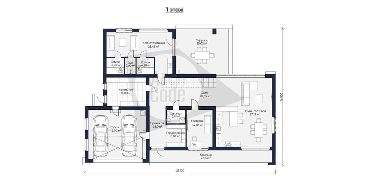
1 этаж

- Кухня-гостиная (57,13 м²) — центр дома, объединяющий зону для отдыха и приготовления пищи.

- Гостевая комната (14,40 м²) — уютное пространство для посещений друзьями и близкими.

- Санузел (3,91 м²) — удобно расположен рядом с гостевой комнатой.

- Гардеробная (6,48 м²) — предназначена для хранения верхней одежды.

- Прихожая (9,80 м²) — встречает гостей комфортом и продуманной организацией.

- Гараж (42,00 м²) — вмещает два автомобиля.

- Котельная (16,80 м²) — инженерное сердце дома.

Банный комплекс:

- Комната отдыха (28,43 м²) — уютное место для расслабления.

- Сауна (4,28 м²) и хамам (4,28 м²) — роскошные зоны для спа-процедур.

- Душевая (2,60 м²) — для комфортного очищения после банных сеансов.

- Терраса (35,03 м²) — идеально подходит для летних встреч на свежем воздухе.

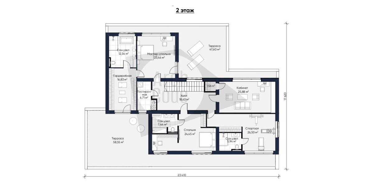
2 этаж

- Мастер-спальня (23,46 м²) с гардеробной (16,83 м²) и собственным санузлом (12,54 м²).

- Вторая спальня (24,45 м²) — просторная и светлая.

- Третья спальня (18,63 м²) — идеальна для семьи или гостей.

- Кабинет (25,88 м²) — пространство для продуктивной работы.

- Спортзал (26,50 м²) — домашнее фитнес-пространство.

- Прачечная (6,7 м²) — удобная зона для ухода за бельем.

- Дополнительные санузлы (7,44 м² и 5,94 м²) — для комфорта всей семьи.

- Террасы (58,55 м² и 47,60 м²) — эксплуатируемая крыша с лаунж-зонами.

Дом «Лагуна» представляет собой уникальное сочетание минимализма и современных технологий. Четкие геометрические линии, панорамные окна и использование природных материалов в сочетании с металлом создают впечатляющий экстерьер, выделяющийся элегантностью и функциональностью. Благодаря большим окнам внутренние пространства плавно сливаются с окружающим ландшафтом, наполняя дом естественным светом.

Понравился проект? Заказать проект или выбрать подобный можно по телефону: +79323212510. Звоните или пишите. Заявки принимаются по вотцап, телеграмм. Готовы рассчитать для вас смету!

Как построить дом в Тюмени?

Как построить дом в Москве?

Готовые дома в Тюмени

Готовые дома в Москве

Земельные участки в Тюмени

Задать вопрос в ТГ

И подписывайтесь на наш канал, чтобы не пропустить новые интересные проекты.

#проектдома #проектдвухэтажногодома #построитьдом #купитьдом

#двухэтажныйдом #лучшиедвухэтажныедома #дом #новыедома