Добавить в корзинуПозвонить
Найти в Дзене

ПРИЁМЫ КОМФОРТНОЙ ПЛАНИРОВКИ УЗКИХ ДОМОВ

*Прочитать эту статью вы также можете в блоге на сайте ИНВАПОЛИС. Узкие дома, несмотря на свои неудобные габариты, могут стать образцом эргономики и уюта, если грамотно подойти к планировке. Ключевая задача — создать функциональные зоны, сохранив ощущение простора и света. Рассмотрим стратегии, которые помогут эффективно распределить помещения и избежать эффекта «тоннеля». ✔️ В узком пространстве важно разделить зоны так, чтобы они не мешали друг другу, но оставались визуально связанными: ✔️ Динамика «дневная–ночная зона»: Первый этаж отдайте под активное использование: кухня-гостиная, столовая, входная группа. И, желательно одна спальня, хоть малюсенькая. Верхние этажи выделите под спальни, кабинет или детские, обеспечив приватность. ✔️ Ориентация по сторонам света:  Это прекрасно, конечно, но в случае узкого участка не до жиру. Нельзя впихать невпихиваемое. Не думайте об этом. Все проекты узких домов ИНВАПОЛИС - в подборке на сайте Статья об освоении длинного участка Все помещения вы
Оглавление

*Прочитать эту статью вы также можете в блоге на сайте ИНВАПОЛИС.

Узкие дома, несмотря на свои неудобные габариты, могут стать образцом эргономики и уюта, если грамотно подойти к планировке. Ключевая задача — создать функциональные зоны, сохранив ощущение простора и света.

Рассмотрим стратегии, которые помогут эффективно распределить помещения и избежать эффекта «тоннеля».

1. Принципы зонирования: от общего к частному

✔️ В узком пространстве важно разделить зоны так, чтобы они не мешали друг другу, но оставались визуально связанными:

✔️ Динамика «дневная–ночная зона»: Первый этаж отдайте под активное использование: кухня-гостиная, столовая, входная группа. И, желательно одна спальня, хоть малюсенькая. Верхние этажи выделите под спальни, кабинет или детские, обеспечив приватность.

✔️ Ориентация по сторонам света:  Это прекрасно, конечно, но в случае узкого участка не до жиру. Нельзя впихать невпихиваемое. Не думайте об этом.

Все проекты узких домов ИНВАПОЛИС - в подборке на сайте

Статья об освоении длинного участка

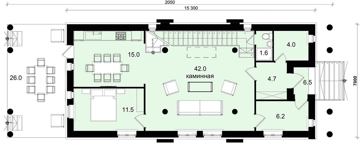
2. Два основных типа удобных планировок

✔️ Линейная схема:

Все помещения вытянуты вдоль. План разделен на две длинных полосы, - одна сторона разделена на мелкие помещения (спальни или хозяйственное), другая - вход и дневная зона. Это удобно реализуется в домах шириной 8 метров и более, и при этом получается очень чёткое зонирование на приватную и общую часть.

Это план проекта дома МЕНОРКА

✔️ Центральная схема:

Широкая гостиная посередине, а комнаты впереди и сзади, по торцам. Это подходит для самых узких домов, шириной 5-7 метров. Две полноценных полосы комнат на такой ширине не помещаются:

-2

это трёхэтажный РИО-ВИКИНГ

Если дом двух- или трёхэтажный, то хорошо сделать двусветное пространство. Визуальное объединение гостиной и части пространства второго этажа добавляет воздуха и широты в узком доме.

3. Коридоры: как избежать бесполезных метров

О коридоры! Жупел нашего сердца! О них можно говорить бесконечно. А в длинном доме вам и так длинно, так и надо ещё протискиваться куда-то по длинному коридору. Нам сегодня как раз такой страшный сон снился.

В узких домах длинные коридоры — главный враг. Сведите их к минимуму:

✔️ Если в зоне крыльца и террасы дом уже, чем в середине, вход получается не совсем в конце дома, а тоже ближе к середине. Благодаря этому коридор, даже если он и есть, слишком длинным не будет. Зрительно сократить коридор помогут просветы, световые карманы. В указанном доме планировочно коридор есть, но вы никогда не подумаете на этот коридор, что он коридор. Скорее, ниша.

-3

Это проект длинного дома МАЛАГА

✔️ Совмещайте функции: например, лестница может стать частью гостиной, а не отдельным проходом.

✔️ Декорируйте: зеркала, картины или подсветка превратят проход в арт-зону.

4. Многофункциональные помещения

Одна комната может служить для разных целей:

✔️ Гостевая спальня + кабинет: раскладной диван и откидной стол экономят место.

Кухня с барной стойкой, которая используется как место для готовки, завтраков и как разделитель зон.
Кухня с барной стойкой, которая используется как место для готовки, завтраков и как разделитель зон.

6. Вертикальные коммуникации

Лестница в узком доме должна быть компактной, но не тесной:

✔️ одномаршевая длинная лестница вдоль одной стены в гостиной, а под ступенями — дополнительное место для хранения, пара кресел или телевизор.

«Гусиный шаг» (ступени разной ширины) подходит для небольших проемов. Мнение ИНВАПОЛИС: это надо комплектовать двумя парами костылей. Одни на первом этаже, другие на втором.

✔️ Винтовая лестница экономит место и становится арт-объектом. Но она не слишком удобна.

2. Методы разделения пространства без стен

Физические перегородки «съедают» площадь, поэтому вместо них используйте альтернативные приемы:

✔️ Цветовые акценты: разные оттенки на стенах или полу визуально отделяют зоны (например, кухню от гостиной), а окраска в один цвет (особенно тёмный) объединяет пространства в единое целое. Важно сохранять единую цветовую базу, добавляя контраст локально.

✔️  Игра уровнями: Перепад высот потолка (например, в двусветной гостиной гостиной), или конструкции кровли в интерьере создают архитектурный интерес.

Подиумы или ступени выделяют зону столовой или рабочего места. Это также круто, как гусиная лестница. Не надо так делать. Подиумы - зло. У кого подиумы - у того мизинцы на ногах в гипсе, и на лбу синяки.

✔️ Мебель как граница: Стеллажи, диваны или барные стойки мягко разделяют пространство, не блокируя свет.  Сквозные полки сохраняют ощущение открытости.

5. Свет и воздух: визуальное расширение границ

✔️ Сквозное освещение: окна на противоположных стенах создают эффект бесконечности. Но важно, чтобы не оказаться окна в окна с соседями.

✔️ Стеклянные перегородки между кухней и гостиной сохраняют световой поток.

Итог

Главный секрет комфорта в узком доме — баланс между открытостью и функциональностью. Используйте зонирование цветом, уровнем и светом, превращайте недостатки в преимущества (например, длинная стена — больше не стена, а галерея), а каждый уголок — в полезное пространство.

Помните: даже ограниченные метры могут стать уютным домом, если продумать каждую деталь до миллиметра.

Перечисленные задачи - не слишком простые, но вполне решаемые. Особенно при помощи архитектора.

► Чтобы не пропускать публикации, палец 👍, и подписывайтесь на канал :)