Добавить в корзинуПозвонить
Найти в Дзене
DIVAN.RU

Хотели перекрасить стены и поменять мебель, а сделали капитальный ремонт

Главный герой этой квартиры — терракотовый диван, с которого и началось преображение. Посмотрим, что получилось в итоге. Объект: евротрешка 90,34 кв.м в г. Тюмень Авторы проекта: дизайнер Максимова Елена, автор фото Андрей Быданов Это семейная квартира: здесь живут супруги с дочерью-подростком 17 лет. Владельцы обратились к дизайнеру с просьбой улучшить эргономику пространства: расставить мебель, обновить (перетянуть/отремонтировать) старую и докупить новую, а также перекрасить стены в квартире в светлые оттенки, чтобы впустить в комнаты больше света. В квартире есть просторная кухня-гостиная, изолированная спальня и отдельная комната подростка. К достоинствам планировки можно отнести наличие гардеробной и балкона. К недостаткам — высоту потолков: всего 2,4 м. Белые фасады кухонного гарнитура под потолок «растворились» на фоне белых стен и потолка. Ярким акцентом стал фартук под камень, который создает эффект глубины и визуально увеличивает пространство. Проблемой этого пространства бы
Оглавление

Главный герой этой квартиры — терракотовый диван, с которого и началось преображение. Посмотрим, что получилось в итоге.

Автор проекта: дизайнер Елена Максимова, автор фото: Андрей Быданов
Автор проекта: дизайнер Елена Максимова, автор фото: Андрей Быданов

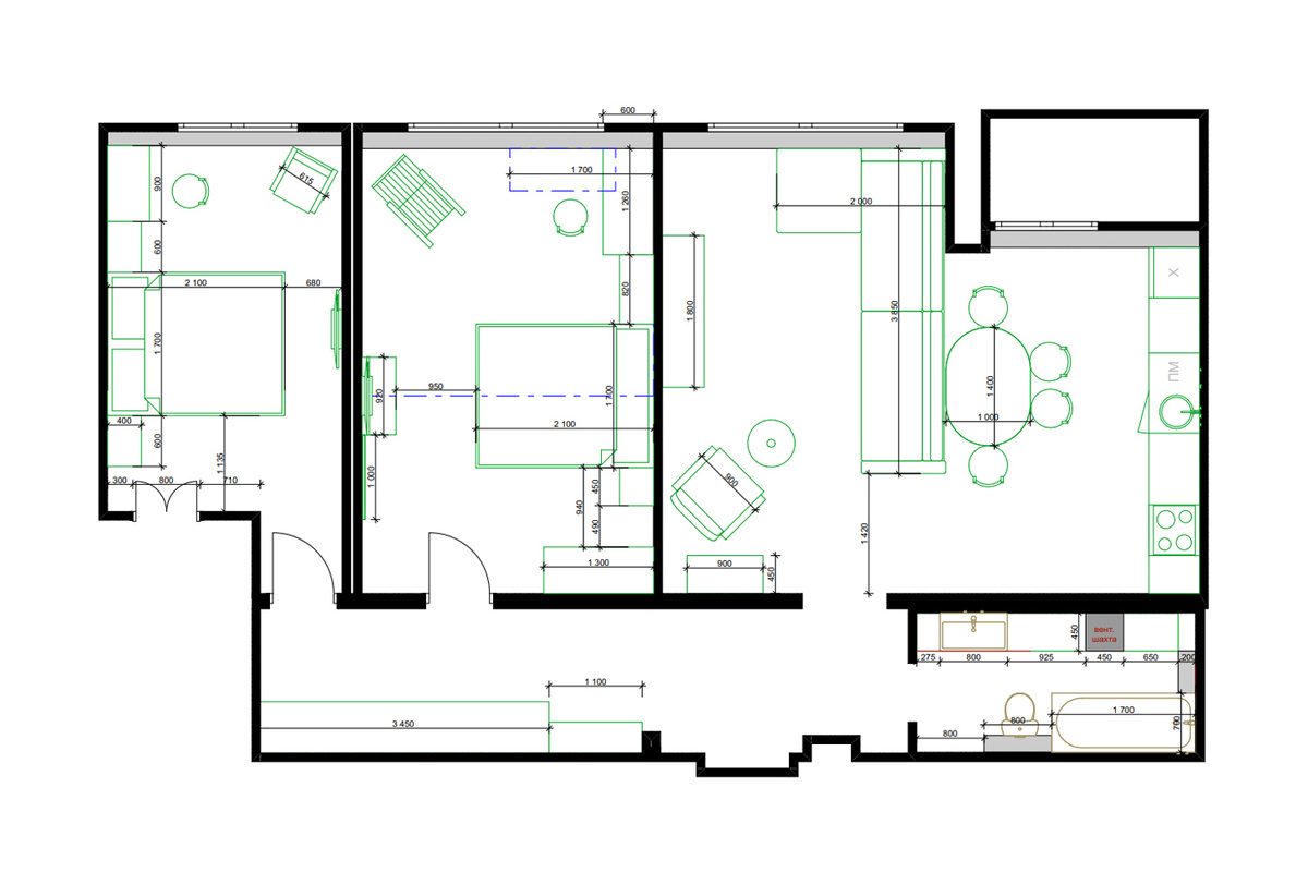
Объект: евротрешка 90,34 кв.м в г. Тюмень

Авторы проекта: дизайнер Максимова Елена, автор фото Андрей Быданов

Это семейная квартира: здесь живут супруги с дочерью-подростком 17 лет. Владельцы обратились к дизайнеру с просьбой улучшить эргономику пространства: расставить мебель, обновить (перетянуть/отремонтировать) старую и докупить новую, а также перекрасить стены в квартире в светлые оттенки, чтобы впустить в комнаты больше света.

Планировочное решение

В квартире есть просторная кухня-гостиная, изолированная спальня и отдельная комната подростка. К достоинствам планировки можно отнести наличие гардеробной и балкона. К недостаткам — высоту потолков: всего 2,4 м.

-2

Кухня-гостиная

Белые фасады кухонного гарнитура под потолок «растворились» на фоне белых стен и потолка. Ярким акцентом стал фартук под камень, который создает эффект глубины и визуально увеличивает пространство.

Проблемой этого пространства были низкие потолки — всего 2,4 м. Чтобы визуально вытянуть пространство наверх, по периметру потолка пустили 12-сантиметровый карниз белого цвета.

Смысловым центром комнаты стал яркий угловой диван Этен от divan.ru. Он модульный — собирается из отдельных элементов до нужной конфигурации, как конструктор. А еще посмотрите на ткань — это модный велюр в рубчик, как на «тех самых» вельветовых брюках. Природную тему продолжает кресло Витио в цвете изумруд, а солнышко олицетворяют желтые шторы.

➡️ В кадре модульный диван Этен от бренда divan.ru >>

💟️ Этот диван сейчас можно приобрести со скидкой до 29 000₽*! Выбирайте мебель и аксессуары по выгодным ценам на распродаже в divan.ru >>

-5

Спальня

Насыщенные цвета в спальне — выбор заказчиков, — рассказывает автор проекта. — Владелец квартиры очень хотел терракотовую стену, а его супруга — зеленую кровать. Получилось гармоничное и теплое сочетание цветов.

Спальное место выбрали максимально широкое — кровать Вайлор от divan.ru заказали под матрас 180 см. В удобном «Конструкторе» на сайте бренда можно не только менять габариты модели, но и выбирать обивку, а также добавлять полезные опции — например, подъемный механизм.

➡️ В кадре кровать Вайлор 180 от бренда divan.ru >>

По обеим сторонам кровати расположили подвесные тумбы для личного хранения, у окна подвесная тумба плавно переходит в туалетный столик с зеркалом и мягким пуфиком. В нише разместили вместительную гардеробную.

Комната для подростка

Комната была полностью преображена: ранее здесь преобладали ярко-салатовые и оранжевые цвета, стояло большое количество мебели, которая загораживала дневной свет, льющийся из окон. Сейчас это светлое просторное пространство с продуманным зонированием для девушки-подростка 17 лет.

Она мечтала о кровати (на ее месте прежде стоял диван) и о большом гардеробном шкафе. Все получилось реализовать. Рабочее место у окна — это стол-трансформер Аксель от divan.ru, который можно сложить в обычный комод одним движением и освободить пространство.

➡️ В кадре стеллаж Алвис от бренда divan.ru >>

💟️ Этот стеллаж сейчас можно купить со скидкой до 13 000₽*! Выбирайте мебель и аксессуары по выгодным ценам на распродаже в divan.ru >>

-8

Санузел

Самой долгожданной для владельцев была трансформация санузла. Раньше здесь располагался только душ, эргономика пространства была не соблюдена. В ходе ремонта установили полноценную ванну, сделали на заказ шкафы, поменяли всю сантехнику.

Автор проекта: дизайнер Елена Максимова, автор фото: Андрей Быданов
Автор проекта: дизайнер Елена Максимова, автор фото: Андрей Быданов

Прихожая

Входная зона визуально стала просторнее после покраски стен в светлый оттенок и установки встроенных шкафов — все вещи наконец нашли свои места, пропал «визуальный шум».

Автор проекта: дизайнер Елена Максимова, автор фото: Андрей Быданов
Автор проекта: дизайнер Елена Максимова, автор фото: Андрей Быданов

==========

Оцените интерьер в комментариях, а если материал понравился — не забудьте поставить лайк👍

🖤divan.ru — не только блог про интерьеры, но и производитель доступной дизайнерской мебели. Ищите новые идеи и переходите на сайт, чтобы воплотить их в жизнь.