Найти в Дзене

Каркасный дом 10х11 для ПМЖ. Фото, планировка, цена от 1 793 100 ₽

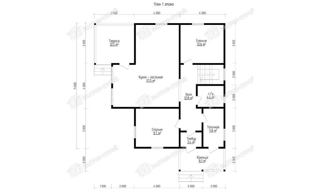
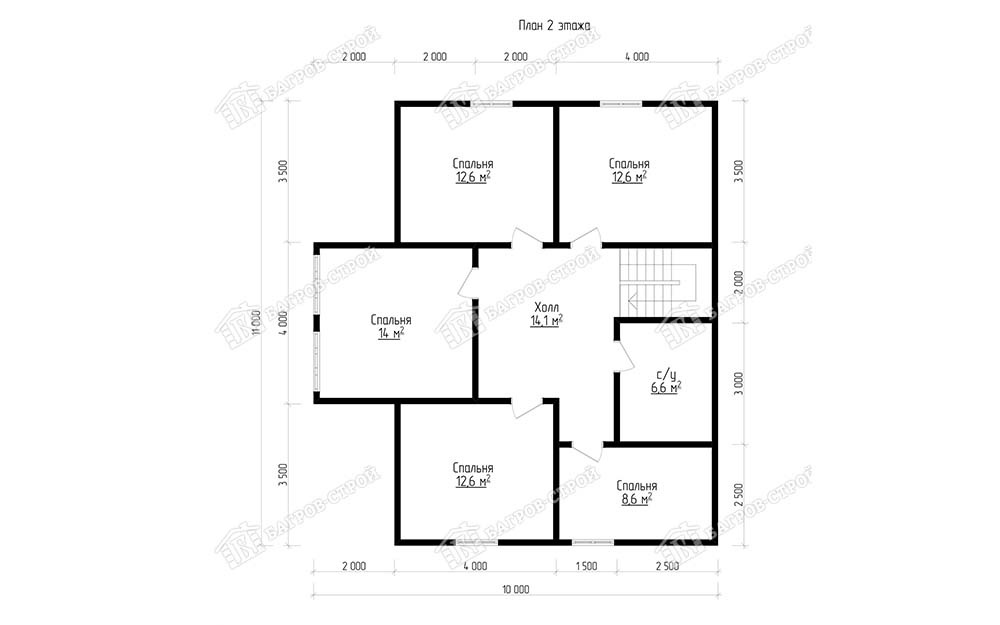
Петр — двухэтажный каркасный дом, размером 10х11м, с балконом и террасой. Планировкой предусмотрено 9 просторных помещений и 2 входа в дом. Терраса 12,5м2. Видеообзор построенного дома:
https://dzen.ru/video/watch/6394f3300adf8360a532d88a • Площадь: 174 м2
• Размер: 10х11 м
• Этажность: 2
• Оплата: Без предоплаты
• Доставка: Индивидуально
• Сроки стр-ва: 12-14 дней 1. Без отделки: • Каркас 150 мм - 1 793 100 ₽
• Каркас 200 мм - 2 147 300 ₽ 2. С отделкой: • Каркас 150 мм - 4 169 300 ₽
• Каркас 200 мм - 4 708 800 ₽ Посмотреть комплектацию на сайте: https://bagrovstroy.ru/karkasnye-doma/kd-petr В комплектацию «с отделкой» входит все, что перечислено в комплектации «без отделки» + то, что перечислено на слайдах в карусели.
____________________
В каждую комплектацию УЖЕ ВКЛЮЧЕНА стоимость материалов, работа бригады, фотоотчет и мой личный контроль за строительством) Доставка рассчитывается так же отдельно.
В карусели вы увидите что конкретно входит в каждый вариант :)
По вашему пожеланию
Оглавление

Петр — двухэтажный каркасный дом, размером 10х11м, с балконом и террасой. Планировкой предусмотрено 9 просторных помещений и 2 входа в дом. Терраса 12,5м2.

Видеообзор построенного дома:
https://dzen.ru/video/watch/6394f3300adf8360a532d88a

• Площадь: 174 м2
• Размер: 10х11 м
• Этажность: 2
• Оплата: Без предоплаты
• Доставка: Индивидуально
• Сроки стр-ва: 12-14 дней

Планировка:

👉 СТОИМОСТЬ (цены актуальны на момент публикации):

1. Без отделки:

• Каркас 150 мм - 1 793 100 ₽
• Каркас 200 мм - 2 147 300 ₽

2. С отделкой:

• Каркас 150 мм - 4 169 300 ₽
• Каркас 200 мм - 4 708 800 ₽

Посмотреть комплектацию на сайте: https://bagrovstroy.ru/karkasnye-doma/kd-petr

👉🏻Что входит в каждую комплектацию?

В комплектацию «с отделкой» входит все, что перечислено в комплектации «без отделки» + то, что перечислено на слайдах в карусели.
____________________

В каждую комплектацию УЖЕ ВКЛЮЧЕНА стоимость материалов, работа бригады, фотоотчет и мой личный контроль за строительством) Доставка рассчитывается так же отдельно.

В карусели вы увидите что конкретно входит в каждый вариант :)

По вашему пожеланию, можно учесть доп.опции, убрать или заменить: фундамент, коммуникации, заменить окна на пластиковые, изменить внешнюю отделку дома и другие.

Понравился дом? Свяжитесь с нами, мы сделаем для вас расчет стоимости или подберем подходящий проект под ваши пожелания.

📍 Наши контакты:

• Сайт: bagrovstroy.ru
• Группа VK:
vk.com/bagrovstroy
• Telegram-канал:
t.me/bagrovstroy