Добавить в корзинуПозвонить
Найти в Дзене
G-Art Studio

Что такое комплексный подход к дизайну интерьеров

Сейчас в сфере дизайна интерьеров в приоритете комплексный подход. Это действительно очень важная стратегия для достижения успеха. Сегодня вместе с вами разберемся, что это за подход и почему он так важен в процессе создания дизайна. Комплексный подход к дизайну — это методология, которая рассматривает проект в целом, принимая во внимание различные аспекты и составляющие, связанные с созданием дизайн-проекта. Такой подход требует интеграции разных дисциплин и областей знаний. Наша дизайн-студия работает именно в таком ключе, мы понимаем, что для человека, который планирует дизайн-проект в премиальном пространстве, очень важно получить полный спектр услуг. И поэтому работает только в такой парадигме. На первом этапе происходит детальное изучение запросов и потребностей клиента. Это может включать анкетирование, беседы или наблюдение за тем, как человек использует пространство. Важно понять, для каких целей будет использоваться интерьер, какую атмосферу необходимо создать и какие элеме
Оглавление

Сейчас в сфере дизайна интерьеров в приоритете комплексный подход. Это действительно очень важная стратегия для достижения успеха.

фото и проект автора
фото и проект автора

Сегодня вместе с вами разберемся, что это за подход и почему он так важен в процессе создания дизайна.

фото и проект автора
фото и проект автора

Комплексный подход к дизайну — это методология, которая рассматривает проект в целом, принимая во внимание различные аспекты и составляющие, связанные с созданием дизайн-проекта. Такой подход требует интеграции разных дисциплин и областей знаний. Наша дизайн-студия работает именно в таком ключе, мы понимаем, что для человека, который планирует дизайн-проект в премиальном пространстве, очень важно получить полный спектр услуг. И поэтому работает только в такой парадигме.

Начнем, пожалуй, с этапов этого самого комплексного подхода.

фото и проект автора
фото и проект автора

На первом этапе происходит детальное изучение запросов и потребностей клиента.

Это может включать анкетирование, беседы или наблюдение за тем, как человек использует пространство. Важно понять, для каких целей будет использоваться интерьер, какую атмосферу необходимо создать и какие элементы будут наиболее важными. Нам нужно понять, что в приоритете у заказчика, как он мыслит, сколько человек живет в доме, какие у них интересы. Это очень важно для того, чтобы соблюсти грамотную эргономику пространства.

После сбора информации разрабатывается концепция дизайна.

На этом этапе создаются коллажи, мудборды и эскизы, которые помогут клиенту визуализировать конечный результат. Концепция включает выбор стиля, цветовой гаммы, текстур и материалов, которые будут использоваться в проекте. И это касается вообще всего. Всех помещений в доме. Причем, мы еще всегда предлагаем полный, детальный анализ даже с названиями брендов, чтобы заказчику не нужно было самому ничего искать. И только так.

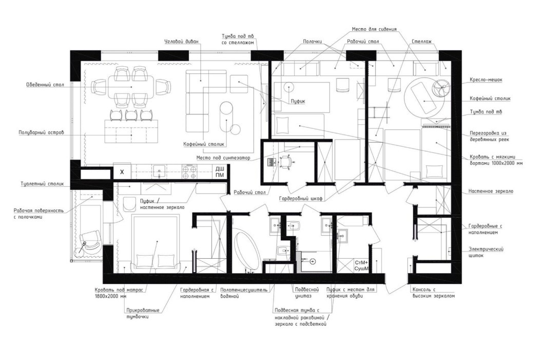
На основе концепции разрабатывается планировка помещений, где будут продуманы функциональные зоны, расположение мебели, а также минимизация проходов и создание удобного к движению пространства.

фото и проект автора
фото и проект автора

Здесь важно учитывать не только эстетические, но и практические аспекты, такие как освещение, вентиляция и акустика. Самое сложное - это когда речь идет о перепланировке всего помещения. Тут и согласования с разными структурами, и сложные переговоры с заказчиком, и нужная документация. Но это неотъемлемая часть каждого проекта.

После утверждения планировки дизайнер приступает к выбору материалов, мебели и декора.

фото и проект автора
фото и проект автора

Этот этап требует глубоких знаний о каждом элементе, его свойствах, преимуществах и недостатках. Это тоже один из самых важных этапов, потому что очень часто бывает так, что заказчик растерян, не знает, что ему выбрать, поэтому всегда делается определенная выборка разных вариантов, чтобы у человека была возможность выбора.

На последнем этапе осуществляется реализация проекта, который может включать как работу с подрядчиками для выполнения строительных и отделочных работ, так и выбор элементов декора.

фото и проект автора
фото и проект автора

Дизайнер должен следить за тем, чтобы каждый этап выполнялся в соответствии с утвержденной концепцией и планом. Это самый сложнейший этап. Потому что здесь речь идет и об инженерных коммуникациях, и об отделочных работах, и обо всем остальном в комплексе. И здесь нужно всегда быть начеку, нужно всегда знать, что и за чем идет, здесь ничего нельзя упустить.

Почему комплексный подход так важен?

фото и проект автора
фото и проект автора

Каждый клиент уникален, и его потребности и предпочтения могут значительно различаться.

Комплексный подход позволяет учитывать эти индивидуальные характеристики, что в конечном счете сказывается на удовлетворенности клиента. Хороший дизайнер умеет слушать и учитывать мнения клиента на каждом этапе проектирования.

фото и проект автора
фото и проект автора

Снижение рисков. Это вообще одна из самых важных составляющих.

При проектировании интерьеров часто возникают непредвиденные ситуации, такие как несоответствие выбранных материалов или мебели с требованиями помещения. Комплексный подход позволяет снизить количество таких рисков благодаря тщательному анализу на каждом этапе. И здесь важна каждая деталь, каждый нюанс помогает снижать эти самые риски, и если все схвачено, то никаких форс-мажоров точно не случится.

фото и проект автора
фото и проект автора

Мы всегда говорим, что важно учитывать все аспекты, которые влияют на конечный результат. А он зависит всегда от команды профессионалов, которые способны создать большую и цельную концепцию всего пространства.

А вы когда-нибудь работали с дизайн-студией? Поделитесь в комментариях!

-----------------------------

Спасибо вам большое за то, что читаете наш блог, не забывайте, пожалуйста, на него подписываться!

А если вам нужен дизайн-проект, переходите по ссылке на наш сайт, мы обязательно с вами свяжемся!