Найти в Дзене

Новый интерьер для старой 3-комнатной квартиры

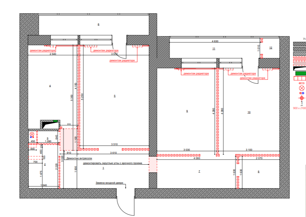
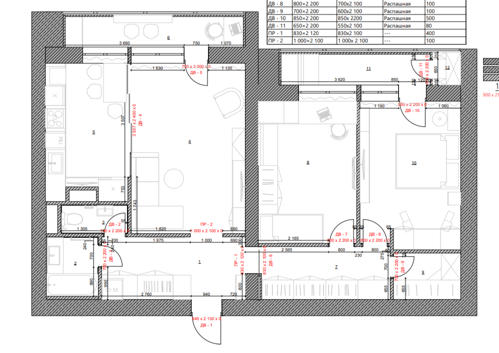
Сегодняшний проект – это квартира в старом фонде, но с достаточно удачной планировкой. Расскажем о проведенной перепланировке, доступной в данном конкретном случае, и выбранном дизайне для квартиры 90 м2, в которой будет жить семья с ребенком. Высота потолков небольшая – в среднем 240 см, поэтому главным цветом интерьера стал белый. Если у вас низкий потолок и вам нужно любыми способами его визуально приподнять, то первое, что стоит использовать – светлые стены, сливающиеся с потолком. Отсутствие четкой границы стен и потолка, которую создают контрастные цвета, зрительно делает потолок не таким низким. Если вы не любите холодный белый, то просто рассматривайте теплые оттенки, в сочетании с мягким, теплым светом и бежевыми текстурами он создает достаточно уютный, наполненный светом интерьер. Кухню и гостиную мы объединили, но оставили стеклянную перегородку, в любой момент можно отсечь запахи готовки и уменьшить шум вытяжки, чтобы не мешать тем, кто находится в гостиной. Площадь гостино

Сегодняшний проект – это квартира в старом фонде, но с достаточно удачной планировкой. Расскажем о проведенной перепланировке, доступной в данном конкретном случае, и выбранном дизайне для квартиры 90 м2, в которой будет жить семья с ребенком.

Высота потолков небольшая – в среднем 240 см, поэтому главным цветом интерьера стал белый. Если у вас низкий потолок и вам нужно любыми способами его визуально приподнять, то первое, что стоит использовать – светлые стены, сливающиеся с потолком. Отсутствие четкой границы стен и потолка, которую создают контрастные цвета, зрительно делает потолок не таким низким.

Портфолио Remplanner
Портфолио Remplanner

Если вы не любите холодный белый, то просто рассматривайте теплые оттенки, в сочетании с мягким, теплым светом и бежевыми текстурами он создает достаточно уютный, наполненный светом интерьер.

Кухню и гостиную мы объединили, но оставили стеклянную перегородку, в любой момент можно отсечь запахи готовки и уменьшить шум вытяжки, чтобы не мешать тем, кто находится в гостиной.

Портфолио Remplanner
Портфолио Remplanner

Площадь гостиной 18,4 м2, и они целиком отданы под зону отдыха. Здесь нет лишней мебели, все системы хранения расположились в других помещениях. Кроме дивана и кресла с пуфом здесь только журнальный столик и длинная тумба с декоративным стеллажом в ТВ-зоне.

-5

Оформление стены в ТВ-зоне сочетает фактуру скалы, созданную искусственно, и деревянные рейки в темном цвете. На их фоне эффектно смотрится кашпо латунного цвета с комнатным растением.

Портфолио Remplanner
Портфолио Remplanner

Кухня, отделенная раздвижной стеклянной перегородкой, сочетает в себе белый и изумрудный цвет с текстурой дерева.

Портфолио Remplanner
Портфолио Remplanner

Обивка стульев и акцентная штора из одной ткани, сочетание молочно-белого и изумрудного смотрится эффектно, поскольку в кухне самый высокий потолок – 250 см – столь четкие, выраженные вертикальные элементы интерьер не портят.

Портфолио Remplanner
Портфолио Remplanner

Слева от входа, находится встроенный холодильник и черная ниша с телевизором. Секрет решения прост – позади ТВ проходит вентиляционная шахта, ничего другого там разместить нельзя.

Портфолио Remplanner
Портфолио Remplanner

Кстати, благодаря объединению кухни с гостиной, мы смогли увеличить размер санузла. Его площадь была всего 0,7 м2, а за счет присоединения коридора, который вел в кухню, площадь увеличилась до 1,83 м2.

Портфолио Remplanner
Портфолио Remplanner

За счет этого в санузле удалось установить не только лоток для котика, но и небольшую раковину для рук. Сам санузел оформлен в светло-бежевом цвете и абсолютно лаконичен.

Рядом с ним расположена дверь в ванную комнату. Здесь использована тоже бежевая плитка, но с более выразительным рисунком.

Портфолио Remplanner
Портфолио Remplanner

В остальном, здесь тоже царит сдержанность и лаконичность: черная сантехника и ограждение с черным профилем, скрытые встроенные полки, заметные только со стороны ванны.

Под раковиной большая тумба – единственное место хранения в ванной комнате.

Портфолио Remplanner
Портфолио Remplanner

Основное хранение вынесено в холл и коридор. Большой встроенный шкаф, в торце которого притулилась «мягкая часть прихожей» (встроенная банкетка и открытая вешалка с мягкими панелями), это также место размещения стиральной машины.

Портфолио Remplanner
Портфолио Remplanner

Она располагается рядом со входом в ванную комнату. В этом же отсеке шкафа хранится корзина с бельем и всё для стирки.

Портфолио Remplanner
Портфолио Remplanner

Из холла две двери ведут в санузел и ванную комнату, а дверной проем – в гостиную и кухню. Еще один проем без двери ведет в коридор, можно сказать, что там расположена приватная часть квартиры: детская и спальня.

Портфолио Remplanner
Портфолио Remplanner

Свет попадает в холл из гостиной, а вот коридор освещается только искусственно. Благодаря цветовой гамме выглядит достаточно светлым и не кажется тесным.

Портфолио Remplanner
Портфолио Remplanner

При этом по правой стороне расположено 4 встроенных шкафа с распашными дверьми. В отличие от шкафов холла они не чисто белого цвета: фасады обрамляет бежевая полоса с фрезеровкой.

Портфолио Remplanner
Портфолио Remplanner

Здесь у нас три двери, прямо – гардеробная с функцией кладовки. Её площадь 3 м2, поэтому пространство достаточно вместительное, плюс Г-образная система хранения до потолка позволяет разместить всё необходимое.

Вторая кладовка площадью всего 0,8 м2 находится на одной из лоджий, всего их две. На первую можно попасть из гостиной, там оборудована зона отдыха с парой барных стульев и рабочее место.

Чтобы такая лоджия была всесезонной, важно качественно утеплить стены, пол и потолок, продумать вариант обогрева, а также не забыть про плотные шторы на окна, иначе летом маленькое пространство будет раскаляться на солнце.

Портфолио Remplanner
Портфолио Remplanner

Для этого проекта были выбраны плотные, бежевые римские шторы с эффектом блэкаут. Большое количество складок создает красивый эффект, при этом шторы можно полностью поднять, чтобы открыть створку окна.

Портфолио Remplanner
Портфолио Remplanner

Вход на лоджию с кладовой из спальни, в ней оборудована небольшая зона отдыха и всё. Оформление, как и во всей квартире, в светлых тонах.

Портфолио Remplanner
Портфолио Remplanner

Сама спальня в белом цвете – как упоминалось выше, высота потолка небольшая, поэтому белый цвет и много дневного света призваны сгладить этот эффект.

Портфолио Remplanner
Портфолио Remplanner

Кровать нежно-бирюзового цвета стала единственным цветным пятном в этом интерьере. Вся остальная мебель, в том числе встроенные шкафы, окрашены в белый. Кстати, мебель до потолка и шторы с креплением в закарнизной нише, тоже работают на «поднятие» уровня потолка.

Детская расположена рядом, площади у спальни и детской идентичны и составляют чуть меньше 13,5 м2. Светлые тона, мебель до потолка и вертикальный декор в ТВ-зоне призваны увеличить высоту пространства.

Портфолио Remplanner
Портфолио Remplanner

В детской важна организация полноценного места для учебы, поэтому вдоль всей стены с окном расположен стол-подоконник, встроенный с левой стороны в шкаф.

Портфолио Remplanner
Портфолио Remplanner

Для этой детской шкаф разделен на 4 секции: у кровати открытые полки, нижняя заменяет прикроватную тумбу, далее секция для хранения одежды, за ней декоративная секция с встроенным диванчиком и последняя секция – это еще один стеллаж с открытыми полками.

-29

Еще одна особенность – небольшой балетный станок под телевизором, необходимый элемент для домашних занятий.

Портфолио Remplanner
Портфолио Remplanner

Если ваша квартира не отличается высокими потолками, то лучшее, что вы можете сделать – отказаться от темных, контрастных обоев и впустить максимальное количество света в помещение. Также используйте выраженные вертикальные элементы, а вот горизонтальные линии стоит добавлять в минимальном количестве.

В нашем портфолио вы найдете примеры дизайна самых разных квартир, как по стилю, так и по площади и планировке. Если хотите рассчитать стоимость дизайн-проекта для вашей квартиры – оставляйте заявку на нашем сайте!