Добавить в корзинуПозвонить
Найти в Дзене
Татьяна SMART DESIGN

Обзор квартиры 64м2 в ЖК Скандинавия

Изначально планировка квартиры имеет очень удачное расположение. Из этой квартиры можно сделать : В нашем случае, стояла задача сделать квартиру для комфортного проживания двух семей. Чтобы у каждой семьи была своя приватная зона: свой санузел, комната и своя кухня. Мы предложили квартиру можно условно разделить на 2 независимые зоны. Объединяет 2 зоны прихожая. В прихожей достаточно места для размещения верхней одежды и удобная банкетка. В первую зону нас ведет дверь со стеклянными блоками сверху. На кухне мы разместили всю необходимую технику: посудомоечную машину, стиральную машину, духовой шкаф. СВЧ и ТВ встроили в верхние шкафы, для экономии пространства. Сразу из кухни-гостиной попадаем в комнату. Для того, чтобы хозяева себя чувствовали максимально комфортно, мы предложили использовать мебель-трансформер. Для встреч гостей комната преобразуется в гостиную с вместительным диваном. А вечером диван легким движением руки превращается в полноценную двуспальную кровать. Санузел и д

Изначально планировка квартиры имеет очень удачное расположение.

Из этой квартиры можно сделать :

  • полноценную двушку с кухней-гостиной,
  • трешку с просторной кухней и 3-мя спальнями
  • 2 квартиры для двух семей.
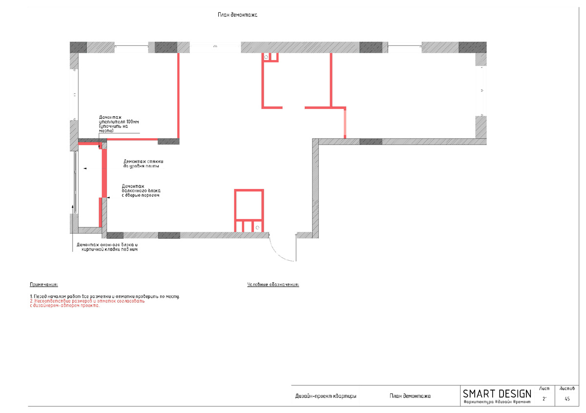
План квартиры до ремонта ЖК"Скандинавия" г. Москва
План квартиры до ремонта ЖК"Скандинавия" г. Москва

В нашем случае, стояла задача сделать квартиру для комфортного проживания двух семей. Чтобы у каждой семьи была своя приватная зона: свой санузел, комната и своя кухня.

Мы предложили квартиру можно условно разделить на 2 независимые зоны.

План с расстановкой мебели. ЖК "Скандинавия". Студия дизайна Татьяны Зотовой.
План с расстановкой мебели. ЖК "Скандинавия". Студия дизайна Татьяны Зотовой.

Объединяет 2 зоны прихожая. В прихожей достаточно места для размещения верхней одежды и удобная банкетка.

Прихожая. ЖК "Скандинавия". Студия дизайна Татьяны Зотовой.
Прихожая. ЖК "Скандинавия". Студия дизайна Татьяны Зотовой.

В первую зону нас ведет дверь со стеклянными блоками сверху.

На кухне мы разместили всю необходимую технику: посудомоечную машину, стиральную машину, духовой шкаф. СВЧ и ТВ встроили в верхние шкафы, для экономии пространства.

Сразу из кухни-гостиной попадаем в комнату. Для того, чтобы хозяева себя чувствовали максимально комфортно, мы предложили использовать мебель-трансформер. Для встреч гостей комната преобразуется в гостиную с вместительным диваном.

А вечером диван легким движением руки превращается в полноценную двуспальную кровать.

Санузел и душевая первой зоны также оформлен в сдержанных цветах.

Туалет и душевая. ЖК "Скандинавия". Студия дизайна Татьяны Зотовой.
Туалет и душевая. ЖК "Скандинавия". Студия дизайна Татьяны Зотовой.

Прихожая зоны 2.

Из общей прихожей мы попадаем в другую приватную зону.

Прихожая. ЖК "Скандинавия". Студия дизайна Татьяны Зотовой.
Прихожая. ЖК "Скандинавия". Студия дизайна Татьяны Зотовой.

Спальня с двумя рабочими местами, удобным диваном и местом для хранения вещей.

Спальня ЖК "Скандинавия". Студия дизайна Татьяны Зотовой.
Спальня ЖК "Скандинавия". Студия дизайна Татьяны Зотовой.

Спальня ЖК "Скандинавия". Студия дизайна Татьяны Зотовой.
Спальня ЖК "Скандинавия". Студия дизайна Татьяны Зотовой.
Ванная ЖК "Скандинавия". Студия дизайна Татьяны Зотовой.
Ванная ЖК "Скандинавия". Студия дизайна Татьяны Зотовой.

Такой интерьер у нас получился из 64 м2:

  • 3 комнаты
  • кухня
  • просторная прихожая
  • 2 санузла.

А вам хотелось бы жить в такой квартире?