Добавить в корзинуПозвонить
Найти в Дзене

Простые решения для сложных задач.

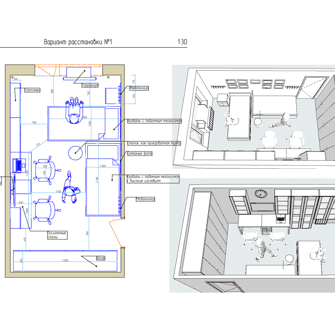
Как разместить 2-х подростков 18м2? Задача сложна, но тем и интереснее. И самое замечательно, что всегда можно найти отличные варианты, которые устроят всех обитателей этого пространства! Все начинается с анализа предпочтений жителей комнаты, их ритма, увлечений, отношений между собой, привычкам, родительских возможностей и потенциала самого пространства. Далее предлагаю варианты расстановки мебели. Опять анализируем, и если нужно компонуем комнату и того, что на данном этапе заказчик считает для себя оптимальным, удобным и отвечающим его требованиям. Так и в моем текущем проекте «комната для подростков». Молодые люди 9-ти и 15-ти лет делят одну комнату, каждый имеет свои увлечения, свой ритм, расписание, замечательно ладят друг с другом и с интересом проводят время вместе. Стояла задача разместить 2-е односпальные кровати, письменный стол, тв зону, места для хранения книг и оставить место для фотографий, доску почета. Зона хранения одежды была уже в комнате – это большой 3-х метровый

Как разместить 2-х подростков 18м2?

Задача сложна, но тем и интереснее.

И самое замечательно, что всегда можно найти отличные варианты, которые устроят всех обитателей этого пространства!

Все начинается с анализа предпочтений жителей комнаты, их ритма, увлечений, отношений между собой, привычкам, родительских возможностей и потенциала самого пространства. Далее предлагаю варианты расстановки мебели. Опять анализируем, и если нужно компонуем комнату и того, что на данном этапе заказчик считает для себя оптимальным, удобным и отвечающим его требованиям.

Так и в моем текущем проекте «комната для подростков». Молодые люди 9-ти и 15-ти лет делят одну комнату, каждый имеет свои увлечения, свой ритм, расписание, замечательно ладят друг с другом и с интересом проводят время вместе.

Стояла задача разместить 2-е односпальные кровати, письменный стол, тв зону, места для хранения книг и оставить место для фотографий, доску почета. Зона хранения одежды была уже в комнате – это большой 3-х метровый шкаф, поэтому этому моменту не уделялась особое внимание.

Еще немаловажным условием было оставить пространство в комнате, ребята любят погонять мяч, к ним заглядывают гости, и заставлять все кроватями было бы не логично.

-2

Вариант с двухъярусной кроватью, может показаться, был бы идеальным решением. Но я знаю не понаслышке, что спать под потолком очень тяжело, летом там невыносимо жарко, а зимой безжалостно сухо и не менее жарко. Да и потолок в данном помещении был всего 2 500 мм, так что этот вариант даже не рассматривали.

-3

Как я не старалась разместить компактно кровати, но после их установке, оставалось совсем мало места для творческой пустоты. А еще, самое важное, не было нейтральной зоны, где можно ощущать нейтралитет кожей, типа диванчика на котором никто не спит. Место, где можно посидеть, поболтать.

-4

Мне захотелось создать некую нейтральную территорию, на которой ребята могли смотреть тв, пообщаться, принять гостей и это не была бы чья-то кровать или диван.

-5

Для этого я предложила использовать мебель-транформер.

На мой взгляд она решала поставленную задачу: компактное размещение кроватей в комнате.

А еще:

- днем — диван и очень много места. Гости не сидят на спальных местах. Удобно смотреть телевизор. Создание той самой нейтральной территории.

- вечером — две полноценные кровати с ортопедическими матрасами. С заботой о детских позвоночникам и полноценный отдых.

Вид в собранном виде
Вид в собранном виде

Письменный стол принято оставить один, но большой. Так как ребята пользуются столом в разное время, поэтому не было необходимости делать рабочее место для каждого.

Нашлось место и для хранения книг над столом.

ТВ зону оформила 2-я комодами, каждому ребенку по секции, на стене за ТВ сделала место для фото и доску почёта, чтобы ребята могли повесить свои медали, которые им напоминали об их победах и мотивировали к новым достижениям.

Ребятам и их родителям идея с кроватью-трансформером понравилась, на ней и решили остановиться!

Вот так выстраивая приоритеты, зная предпочтения, можно создать удобное планировочное решение, отвечающее требованиям заказчика.

Как вам такое решения для детской?

#идеидлядетской

#решениезадачивдетской

#удобнаяпланирвкадлядетской

#подходящаяпланирвкадлядетской

#иннаклюсовадизайнеринтерьереа

#расстановкамебеливдетской