Добавить в корзинуПозвонить
Найти в Дзене
Про Schuco.

Алюминиевые профили Schuco - новые стандарты в области теплоизоляции

Энергосберегающие алюминиевые профили Schuco повышают энергоэффективность окон. Благодаря применению инновационных технологий и материалов, окна Schuco обладают отличными теплоизоляционными свойствами. Это позволяет снизить энергозатраты на обогрев или кондиционирование помещений и улучшить комфорт внутри жилого или рабочего пространства. Компания Schuco (Шуко) была основана в 1951 году. На сегодняшний день в ней трудятся более 5000 сотрудников, а успешное партнерство налажено с 12000 предприятий в более чем 78 странах. Штаб-квартира Schuco находится в городе Билефельд, а оборот компании в 2018 году составил 2,23 миллиарда евро. Schuco признана мировым лидером в производстве комплектующих для светопрозрачных конструкций. Продукция Schuco отличается долговечностью и будет служить как вам, так и вашим детям. Алюминиевые окна Schuco также отличаются высокой звукоизоляцией. Качество звукоизоляции окон играет важную роль для создания уютной атмосферы в помещении. Благодаря использованию спе

Энергосберегающие алюминиевые профили Schuco повышают энергоэффективность окон. Благодаря применению инновационных технологий и материалов, окна Schuco обладают отличными теплоизоляционными свойствами. Это позволяет снизить энергозатраты на обогрев или кондиционирование помещений и улучшить комфорт внутри жилого или рабочего пространства.

логотип компании Шуко
логотип компании Шуко

Компания Schuco (Шуко) была основана в 1951 году. На сегодняшний день в ней трудятся более 5000 сотрудников, а успешное партнерство налажено с 12000 предприятий в более чем 78 странах. Штаб-квартира Schuco находится в городе Билефельд, а оборот компании в 2018 году составил 2,23 миллиарда евро. Schuco признана мировым лидером в производстве комплектующих для светопрозрачных конструкций. Продукция Schuco отличается долговечностью и будет служить как вам, так и вашим детям.

Алюминиевые окна Schuco также отличаются высокой звукоизоляцией. Качество звукоизоляции окон играет важную роль для создания уютной атмосферы в помещении. Благодаря использованию специальных прокладок и стеклопакетов с улучшенными звукоизоляционными свойствами, окна Schuco обеспечивают тишину и покой внутри помещения, защищая от внешних шумов и звуков.

Схематичная структура алюминиевого окна Шуко AWS
Схематичная структура алюминиевого окна Шуко AWS

Модельный расчет уровней теплоизоляции окна из профиля AWS 90.SI+
Центр предоставляет широкий спектр услуг, включающих как отдельное тестирование строительно-физических параметров продуктов и систем, так и испытания комплексных объектов в соответствии с конкретными условиями их размещения. Это даже может включать моделирование экстремальных ситуаций, таких как ураганы, землетрясения и суровые климатические условия нашей зоны.

-3

Настоящее немецкое качество алюминиевых окон Schuco премиум-класса достигается благодаря обширным испытаниям, проводимым в технологическом центре Schuco в Билефельде, Германия.

Центр предоставляет широкий спектр услуг, включая тестирование строительно-физических параметров продукции и систем, а также испытания комплексных объектов с учетом конкретных условий эксплуатации, включая моделирование ураганов, землетрясений и суровых климатических условий.

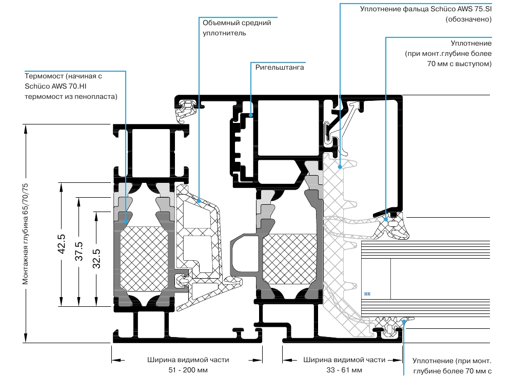
Расшифровка наименования продукции компании Шуко.

Основу каждого сокращения составляют 2-3 буквы, обозначающие соответствующую группу продукции. Затем следует технический параметр (например, монтажная глубина или ширина видимой части), а так же дополнительные характеристики конфигураций или функций.

Пример:

Schuco AWS 75 BS.HI

AWS - Aluminium Window System (алюминиевая оконная система)

75 - монтажная глубина

BS - Block System (блочная система)

HI - High Insulation ( повышенная теплоизоляция)

Расшифровка наименования продукции компании Шуко.
Расшифровка наименования продукции компании Шуко.

Инженеры концерна добились значительных успехов в области сохранения и экономии тепловой энергии. Благодаря использованию передовых технологий в производстве светопрозрачных конструкций, удается достичь высокой теплоизоляции при минимальной монтажной глубине профилей Schuco 70-75 мм: коэффициент Uf составляет 1,0-1,9 Вт/м²K (глубина наружной рамы до 75 мм).

закажите со скидкой 19%
закажите со скидкой 19%

Каталог алюминиевых профилей Schuco 2024 года для окон, дверей, фасадов:

Для окон:
система алюминиевых профилей для окон Schuco AWS 70.HI
Для окон: система алюминиевых профилей для окон Schuco AWS 70.HI

Макс. габариты створки (ширина х высота): 1000х2500 мм. или 1700х2100 мм.

Глубина наружной рамы: 70 мм.

Видимая ширина рамы и створки: 117 мм.

Высокая теплоизоляция: Uf 1,5 -1,9 Вт/м²K

Открывание внутрь или наружу

Цвет профиля: любой по шкале RAL

Максимальная толщина стеклопакета: 52 мм.

Максимальный вес створки: до 250 кг.

Угол открывания створки: до 180 градусов

Взломоустойчивость до класса WK3

Coвмecтимocть c двepнoй cиcтeмoй Schuco ADS 70

Для окон:
система алюминиевых профилей для окон ШУКО AWS 75.SI
Для окон: система алюминиевых профилей для окон ШУКО AWS 75.SI

Макс. габариты створки (ширина х высота): 1000х2500 мм. или 1700х2100 мм.

Глубина наружной рамы: 75 мм.

Видимая ширина рамы и створки: 117 мм.

Очень высокая теплоизоляция: Uf 0,9 - 1,6 Вт/м²K

Открывание внутрь или наружу

Цвет профиля: любой по шкале RAL

Максимальная толщина стеклопакета: 61 мм.

Максимальный вес створки: до 250 кг.

Угол открывания створки: до 180 градусов

Взломоустойчивость до класса WK3

Coвмecтимocть c двepнoй cиcтeмoй Schuco ADS 75

Для дверей:
алюминиевый профиль для дверей ШУКО ADS 70.HI
Для дверей: алюминиевый профиль для дверей ШУКО ADS 70.HI

Макс. габариты створки: ширина до 2500 мм. высота до 1250 мм.

Монтажная глубина рамы: 70 мм.

Монтажная глубина створки: 70 мм.

Ширина видимой части: 147 мм.

Теплоизоляция: повышенная Uf от 1,7 Вт/м²K

Звукоизоляция: до 48 dB

Водопроницаемость: 2 класс

Цвет профиля: любой по шкале RAL

Открывание внутрь или наружу

Толщина стеклопакета створки: 24-67 мм.

Толщина глухого остекления: 19-55 мм.

Максимальный вес створки: до 150 кг.

Угол открывания створки: до 180 градусов

Для дверей:
алюминиевый профиль для дверей ШУКО ADS 75.SI
Для дверей: алюминиевый профиль для дверей ШУКО ADS 75.SI

Макс. габариты створки: ширина до 3000 мм. высота до 1400 мм.

Монтажная глубина рамы: 75 мм.

Монтажная глубина створки: 75 мм.

Ширина видимой части: 147 мм.

Теплоизоляция: супертеплоизоляция Uf от 1,6 - 2,1 Вт/м²K

Звукоизоляция: до 43 dB

Водопроницаемость: 2 класс

Цвет профиля: любой по шкале RAL

Открывание внутрь или наружу

Толщина стеклопакета створки: 24-67 мм.

Толщина глухого остекления: 19-55 мм.

Максимальный вес створки: до 200 кг.

Угол открывания створки: до 180 градусов

Можно использовать накладные, скрытые или роликовые петли

Конструкторы, работающие в этом концерне, достигли впечатляющих результатов в области сохранения и эффективного использования тепловой энергии. Используя передовые технологии в производстве свето-прозрачных конструкций, они смогли достичь высокого уровня теплоизоляции при минимальной монтажной глубине профилей Schuco, всего 70-75 мм. Коэффициент теплопередачи Uf составляет невероятно низкие значения от 10,7 до 1,9 Вт/м²K (при глубине наружной рамы до 75 мм.).

Модельный расчет уровней теплоизоляции алюминиевых окон Schuco
(на примере конструкции из профиля AWS 70.HI )
Модельный расчет уровней теплоизоляции алюминиевых окон Schuco (на примере конструкции из профиля AWS 70.HI )

Высокое немецкое качество алюминиевых окон Schuco премиум-класса обеспечивается благодаря обширным испытаниям, которые проводятся в технологическом центре Schuco в Билефельде, Германия.

В спектр услуг центра входят как тестирование отдельных строительно-физических параметров продукции и систем, так и испытания комплексных объектов с учетом конкретных условий эксплуатации, включая моделирование ураганов, землетрясений и суровых климатических условий.

Инженеры концерна добились значительных успехов в области сохранения и экономии тепловой энергии. Благодаря использованию современных технологий в производстве светопрозрачных конструкций, удается достичь отличной теплоизоляции при минимальной монтажной глубине профилей Schuco 70-75 мм: коэффициент Uf составляет 1,0-1,9 Вт/м²K (глубина наружной рамы до 75 мм).

Алюминиевые профили Schuco обладают высокой прочностью и устойчивостью к внешним воздействиям. В связи с изменчивостью климатических условий, важно, чтобы окна были устойчивыми к ветрам, дождю и солнечному излучению. Благодаря использованию высококачественных материалов и специальной конструкции профилей, окна Schuco обеспечивают надежную защиту от воздействия окружающей среды и сохраняют свою функциональность и внешний вид на протяжении долгого времени.

Управление окнами Шуко из алюминиевого профиля
Управление окнами Шуко из алюминиевого профиля

Скрытая оконная фурнитура AvanTec SimplySmart, устанавливаемая в окна из алюминиевого профиля Schuco AWS, поддерживает все основные варианты открывания фрамуг и створок. Фурнитура Schuco TipTronic с электроприводом позволяет управлять положением створки дистанционно. Блок управления может быть встроен в дизайнерскую ручку или в отдельный пульт управления.

Тепло - окна Schuco AWS 70.HI обладают улучшенной теплоизоляцией при монтажной глубине 70 мм. Приведенное сопротивление теплопередаче конструкции достигает 0,71 м2·°С/Вт (при использовании двухкамерного стеклопакета с теплосберегающим стеклом). Отличные показатели достигаются благодаря расширенной зоне с многокамерными термомостами и оптимизированному многокамерному среднему уплотнителю. Окна Schuco AWS 70.HI рекомендованы для использования в климатических зонах с низкими зимними температурами.

Не дует - воздухопроницаемость окон Schuco AWS 70.HI соответствует классу А по ГОСТ 23166-99 (минимально возможное пропускание). Это позволяет устанавливать окна как в малоэтажных зданиях, так и в высотных сооружениях выше 75 метров, а также в условиях экстремальных ветровых нагрузок.

Сухо - водопроницаемость окон Schuco AWS 70.HI также соответствует классу А по ГОСТ 23166-99 (минимально возможное пропускание). Высокие показатели достигаются благодаря двойному контуру уплотнений из EPDM и надежной оконной фурнитуре Schuco. Это обеспечивает надежную изоляцию от атмосферных осадков.

Надежно - все элементы систем изготавливаются в соответствии с высокими стандартами компании. Schuco использует только оригинальную фурнитуру. Конструкции проходят многократные испытания в испытательном центре Schuco (Германия, г. Билефельд), что гарантирует их устойчивость к различным атмосферным воздействиям, перепадам температур и ударам, минимизируя эксплуатационные расходы.

Долговечно - высокая долговечность окон Schuco определяется долговечностью компонентов системы. Помимо долговечности алюминиевого профиля и покраски, особое внимание уделяется долговечности фурнитуры (не менее 20 000 циклов открывания-закрывания) и EPDM-уплотнителя (не менее 50 лет).

Окна Schuco также отличаются легкостью в уходе и долговечностью. Алюминиевые профили Шуко не подвержены воздействию окружающей среды, они не гниют и не требуют особого ухода. Достаточно регулярно протирать поверхность окон влажной тряпкой и они будут выглядеть как новые на протяжении многих лет.

Окна Schuco от компании https://yarmak.ru/ предлагают большую свободу в выборе дизайна и функциональности. Благодаря широкому ассортименту дизайнерских решений и элементов, окна Schuco могут быть индивидуально настроены под потребности любого клиента. Вы можете выбрать окна с разными типами открывания, стеклопакетами разной толщины и защитой от солнца. Также окна Schuco могут быть оснащены автоматическими системами управления и вентиляции, обеспечивая комфорт и удобство использования.

Алюминиевые окна Schuco - это не только прекрасный дизайн и функциональность, но и возможность сделать ваш дом или офис максимально комфортными и энергоэффективными. Смотрящие ухоженные окна Schuco будут радовать своим внешним видом и отличными характеристиками на протяжении многих лет.